模型详情
1/2
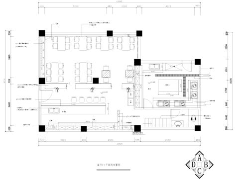
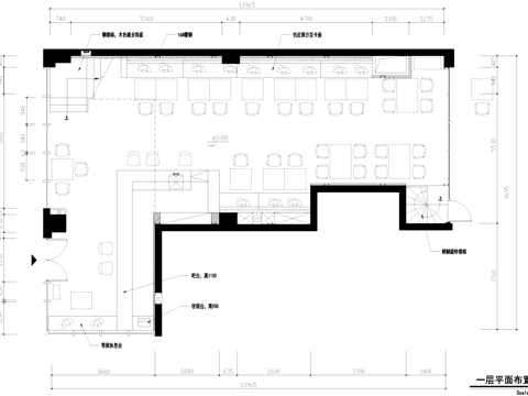
二层露营风餐厅 平面图 帐篷区cad施工图cad施工图
ID:
5411231
二层露营风餐厅 平面图 帐篷区cad施工图cad施工图 ID-5411231
所需欧币:
16
发布时间:
2026-02-24
下载请使用电脑登录欧模网,建议先收藏
收藏
分享
皮肤干燥
关注
为您推荐
露营餐厅 露营餐桌椅 露营风餐厅 帐篷 天幕 露营cad施工图
露营帐篷蒙古包CADcad施工图cad施工图
露营酒吧 平面图 餐厅帐篷烧烤吧台 酒馆清吧cad施工图
大帐篷 露营大帐篷 户外大型帐篷 工程帐篷 救灾帐篷cad施工图
露营房车帐篷营地景观CAD施工图集 9套cad施工图
二层餐厅饭店室内工装平面图CAD施工图cad施工图
二层会所室内工装平面图CAD施工图cad施工图
二层食堂建筑CAD施工图集cad施工图
二层别墅建筑CAD施工图cad施工图
户外露营设施帐篷张拉膜图块图库CAD施工图集 9套cad施工图
后厨平面图 员工食堂餐厅cad施工图cad施工图
二层西餐厅室内工装CAD施工图cad施工图
餐厅大堂室内工装平面图CAD施工图cad施工图cad施工图
二层独立别墅建筑平面CAD施工图cad施工图
二层商业楼建筑CAD施工图集cad施工图
二层咖啡馆建筑CAD施工图cad施工图
露营风餐厅 最新平面施工图合集cad施工图
营地露营图块CADcad施工图
二层烧烤吧餐厅室内工装CAD施工图cad施工图
二层职工餐厅建筑 员工餐厅食堂cad施工图
点击加载更多
分享到
复制链接
保存海报
取消
请选择收藏夹
+新增收藏夹
新增收藏夹
取消
确认
退出查看