模型详情
1/5
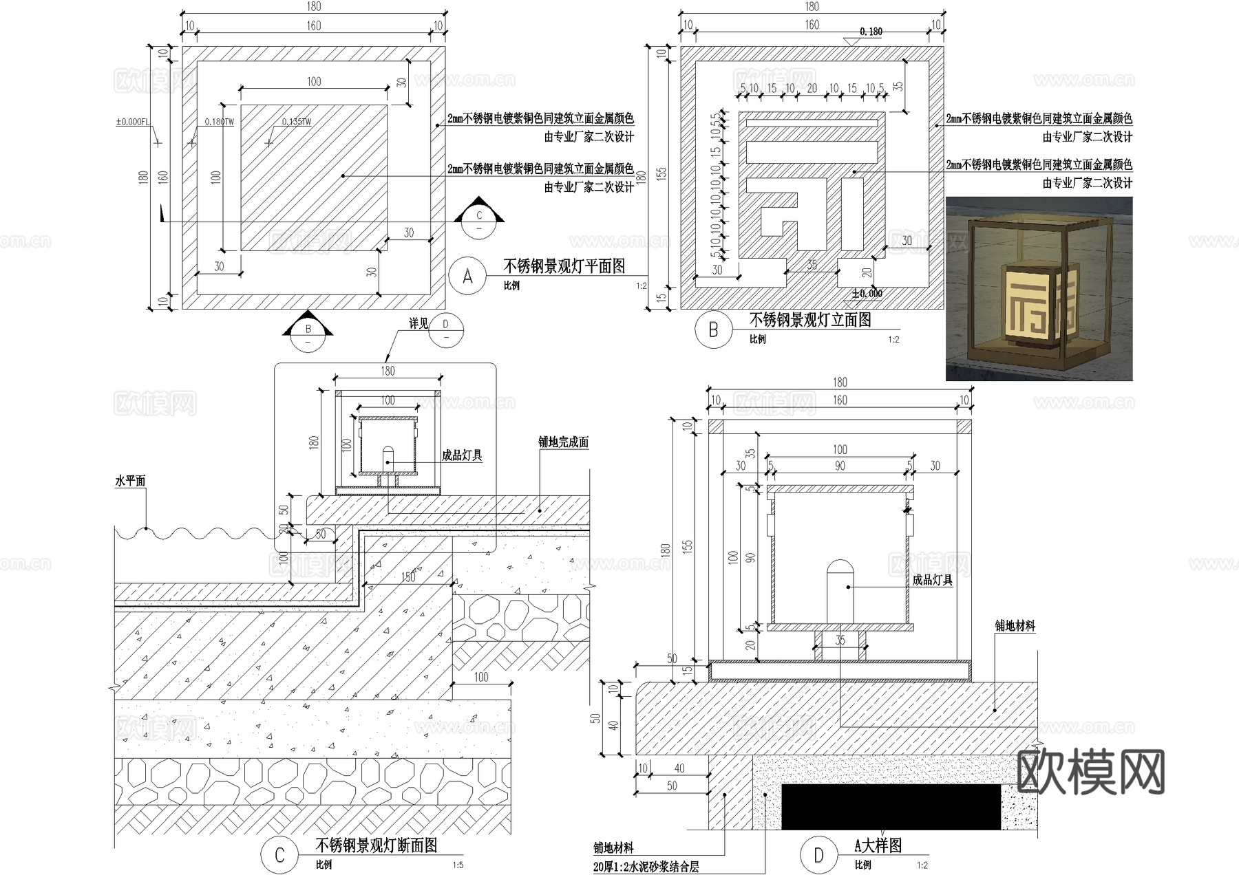
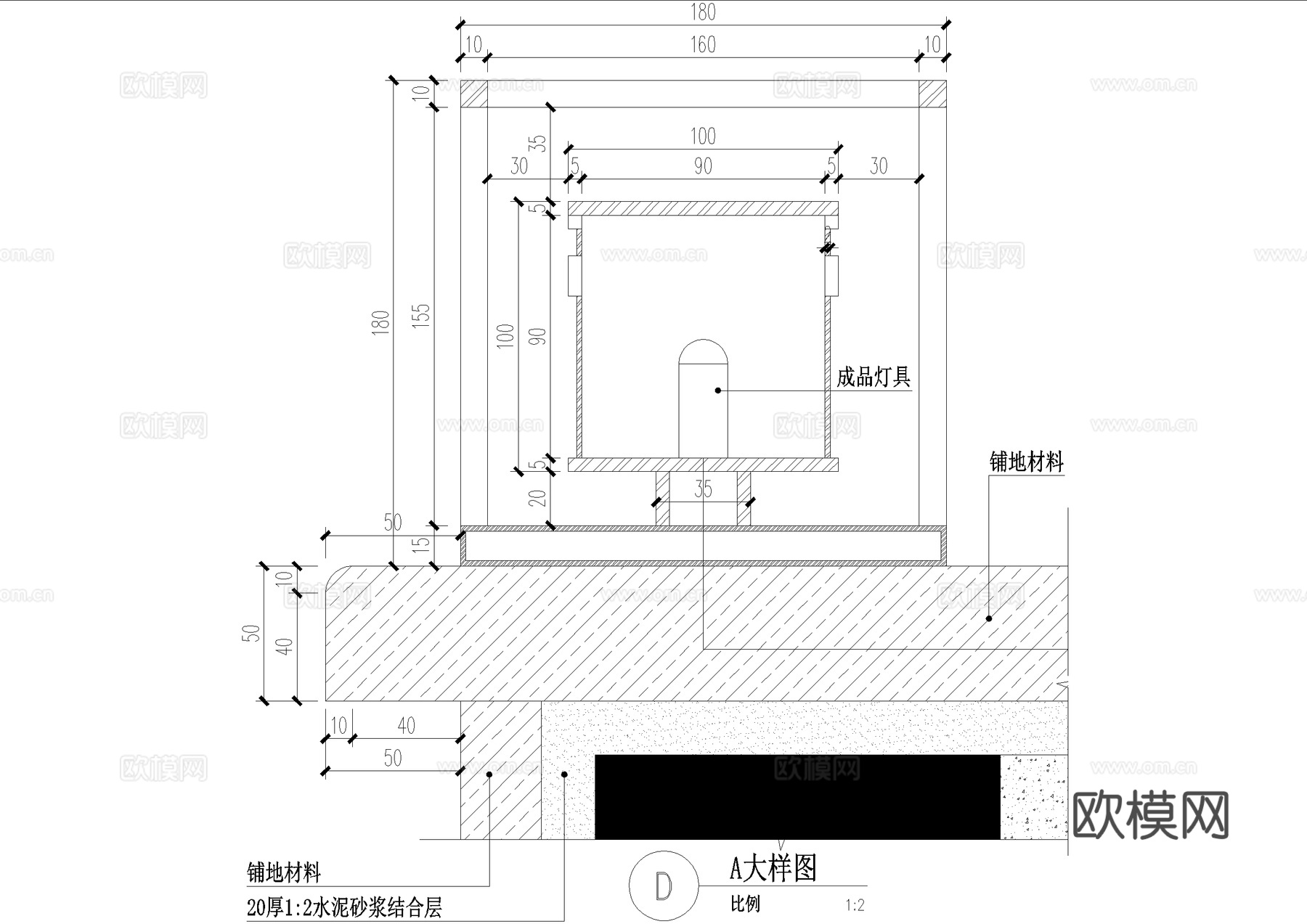
地灯 庭院灯 景观灯具cad施工图
ID:
5411502
地灯 庭院灯 景观灯具cad施工图 ID-5411502
所需欧币:
16
发布时间:
2026-02-24
下载请使用电脑登录欧模网,建议先收藏
收藏
分享
皮肤干燥
关注
为您推荐
庭院灯 景观灯具cad施工图
地灯 景观灯具cad施工图
草坪灯 庭院灯 景观灯具cad施工图
庭院灯 草坪灯 景观灯具cad施工图
庭院灯柱 户外景观灯具cad施工图
景观灯具灯柱庭院灯图块图库CAD施工图cad施工图
景观庭院灯CAD施工图cad施工图
庭院灯 景观灯 灯具 路灯 户外照明cad施工图
庭院灯 景观灯 灯具 路灯 户外照明cad施工图
庭院灯 景观灯 灯具 路灯 户外照明cad施工图
庭院灯 景观灯 灯具 路灯 户外照明cad施工图
庭院灯 景观灯 灯具 路灯 户外照明cad施工图
景观灯具草坪灯庭院灯灯柱图块图库CAD施工图cad施工图
景观灯具cad施工图
景观灯具图块CAD施工图集cad施工图
户外景观灯具庭院灯草坪灯节点CAD施工图集 17套cad施工图
景观灯具路灯草坪灯灯柱庭院灯图块图库CAD施工图cad施工图
落地灯灯具图块图库CAD施工图cad施工图
庭院灯cad施工图
园林景观灯具立面CAD施工图集cad施工图
点击加载更多
分享到
复制链接
保存海报
取消
请选择收藏夹
+新增收藏夹
新增收藏夹
取消
确认
退出查看