模型详情
1/1
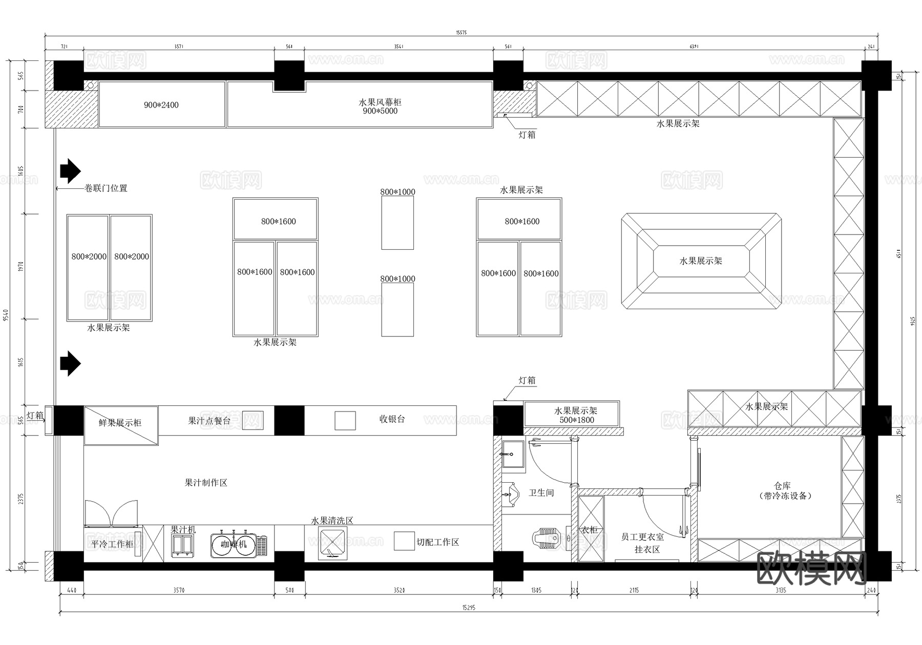
水果店 平面图 专卖店 果切果汁cad施工图
ID:
5411544
水果店 平面图 专卖店 果切果汁cad施工图 ID-5411544
所需欧币:
16
发布时间:
2026-02-24
下载请使用电脑登录欧模网,建议先收藏
收藏
分享
皮肤干燥
关注
为您推荐
水果店 平面图 专卖店 果切果汁cad施工图
水果店 平面图 专卖店 果切cad施工图
水果店 平面图 专卖店cad施工图
水果店 平面图 专卖店 果切榨汁cad施工图
水果店 平面图 专卖店 果切茶室cad施工图
水果店 平面图 专卖店 零食果切cad施工图
水果店 平面图 专卖店 果切零食休闲超市cad施工图
水果店果切专卖店室内工装CAD施工图cad施工图
拼豆店平面图 专卖店平面图 效果图cad施工图
15套水果店生鲜果蔬店生活超市CAD平面图施工图cad施工图
果汁房饮品店商铺建筑CAD施工图cad施工图
大型超市,生鲜果蔬店,水果店,超市,CAD施工图纸附效果图cad施工图
大型超市,生鲜果蔬店,水果店,超市,CAD施工图纸附效果图cad施工图
6套水果店生鲜果蔬超市CAD施工图附效果图cad施工图
9套手机专卖店华为苹果手机店CAD施工图效果图cad施工图
10套母婴店母婴专卖店CAD施工图配效果图cad施工图
苹果手机专卖店 最新全套施工图设计cad施工图
华为授权专卖店cad施工图
服装店专卖店 最新全套施工图 效果图合集cad施工图
服装店专卖店 最新全套施工图 效果图合集cad施工图
点击加载更多
分享到
复制链接
保存海报
取消
请选择收藏夹
+新增收藏夹
新增收藏夹
取消
确认
退出查看