模型详情
1/6
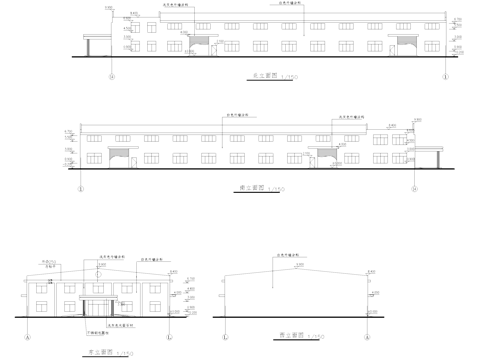
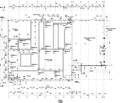
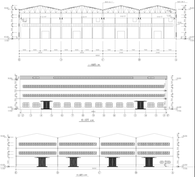
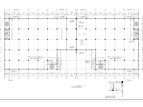
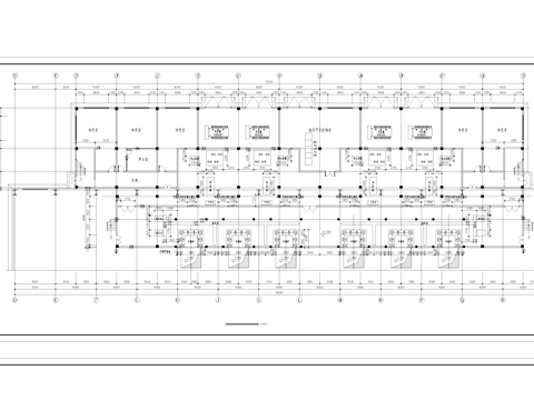
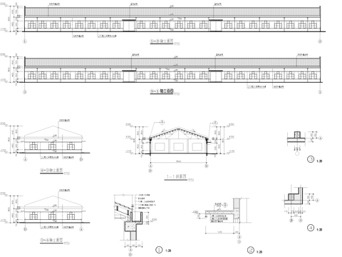
动力车间空压冷冻站循环冷却水站工业建筑CAD施工图集cad施工图
ID:
5411778
动力车间空压冷冻站循环冷却水站工业建筑CAD施工图集cad施工图 ID-5411778
所需欧币:
16
发布时间:
2026-02-24
下载请使用电脑登录欧模网,建议先收藏
收藏
分享
皮肤干燥
关注
为您推荐
二层动力站车间厂房工业建筑CAD施工图cad施工图
堆肥场车间厂房工业建筑做法CAD施工图集cad施工图
丙类六层车间厂房工业建筑CAD施工图集cad施工图
单层排架塑料加工车间厂房工业建筑CAD施工图集cad施工图
公交车站候车亭CAD施工图集cad施工图
单层轻钢生产厂房装桶车间工业建筑CAD施工图集cad施工图
单层纺织厂钢结构车间厂房工业建筑CAD施工图集cad施工图
车间厂房工业建筑CAD施工图cad施工图
单层车间工业建筑CAD施工图cad施工图
三层大型熔炼炉车间厂房工业建筑CAD施工图集cad施工图
单层钢筋混凝土排架厂房车间工业建筑CAD施工图集cad施工图
工业车间厂房建筑CAD施工图集cad施工图
单层车间厂房工业建筑CAD施工图cad施工图cad施工图
加工车间厂房工业建筑CAD施工图cad施工图cad施工图
装配检验车间工业建筑CAD施工图cad施工图cad施工图
厂房车间工业建筑CAD施工图cad施工图
生产车间厂房工业建筑CAD施工图cad施工图
单层车间厂房工业建筑CAD施工图cad施工图
电力公司标准厂房车间工业建筑CAD施工图集cad施工图
磨工车间厂房工业建筑CAD施工图cad施工图
点击加载更多
分享到
复制链接
保存海报
取消
请选择收藏夹
+新增收藏夹
新增收藏夹
取消
确认
退出查看