模型详情
1/5
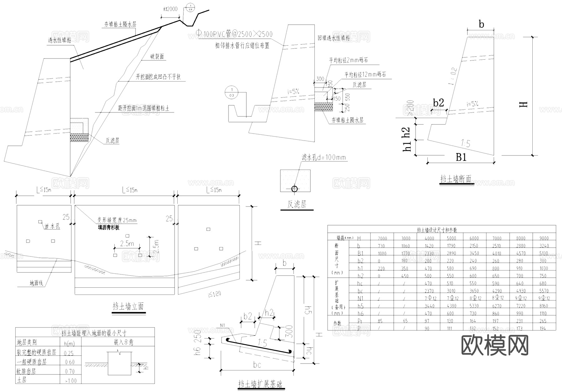
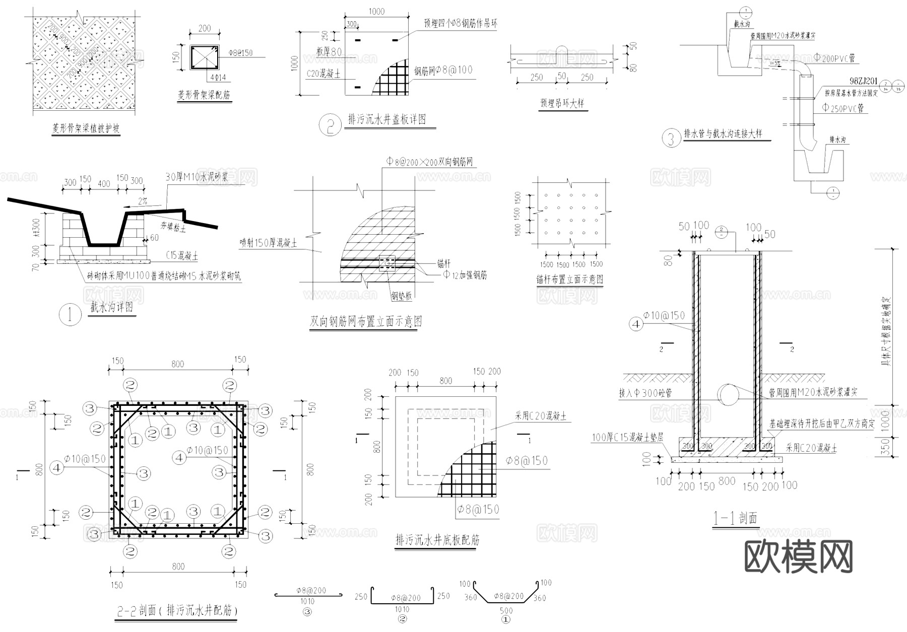
挡土墙边坡锚喷联合支护节点详图CAD施工图cad施工图
ID:
5411853
挡土墙边坡锚喷联合支护节点详图CAD施工图cad施工图 ID-5411853
所需欧币:
16
发布时间:
2026-02-24
下载请使用电脑登录欧模网,建议先收藏
收藏
分享
皮肤干燥
关注
为您推荐
景观雾喷CAD施工详图集cad施工图
青瓦铺装收边交接景观节点详图CAD施工图cad施工图cad施工图
坡屋顶 剖面节点cad施工图
坡屋顶 剖面节点cad施工图
瓦片分隔节点景观地面铺装收边交接详图CAD施工图cad施工图
道路边坡防护挡土墙锚索治理CAD施工图集 50套cad施工图
码头景观节点详图CAD施工图集cad施工图
挑檐详图 屋檐节点 CAD施工图cad施工图
门节点大样详图CAD施工图cad施工图
屋檐节点 檐沟详图cad施工图
景观园路铺装挡土墙驳岸节点CAD施工图cad施工图
天花节点大样详图cad施工图cad施工图
柱子节点大样CAD施工详图cad施工图
墙面节点大样CAD施工详图cad施工图
河道护坡边坡示意 公路自行车道护坡 挡土墙cad施工图
铺装通用节点大样详图CAD施工图cad施工图
主入口广场景观节点详图CAD施工图cad施工图
楼梯节点大样详图CAD施工图集cad施工图
木平桥景观节点结构详图CAD施工图cad施工图
景观平桥节点大样详图CAD施工图cad施工图
点击加载更多
分享到
复制链接
保存海报
取消
请选择收藏夹
+新增收藏夹
新增收藏夹
取消
确认
退出查看