模型详情
1/8
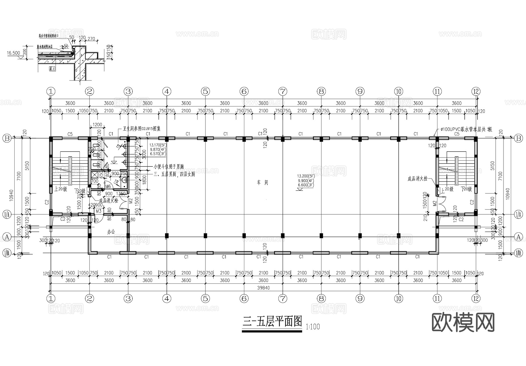
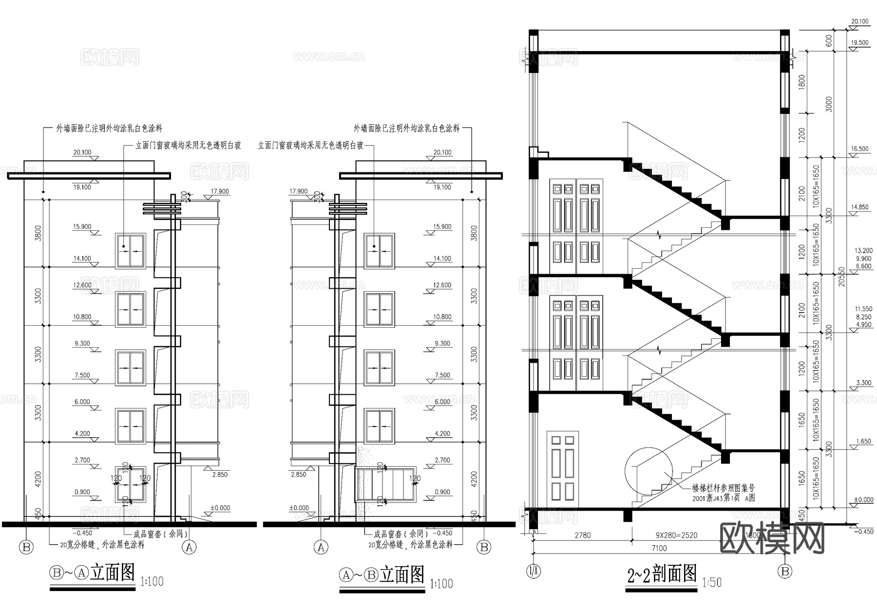
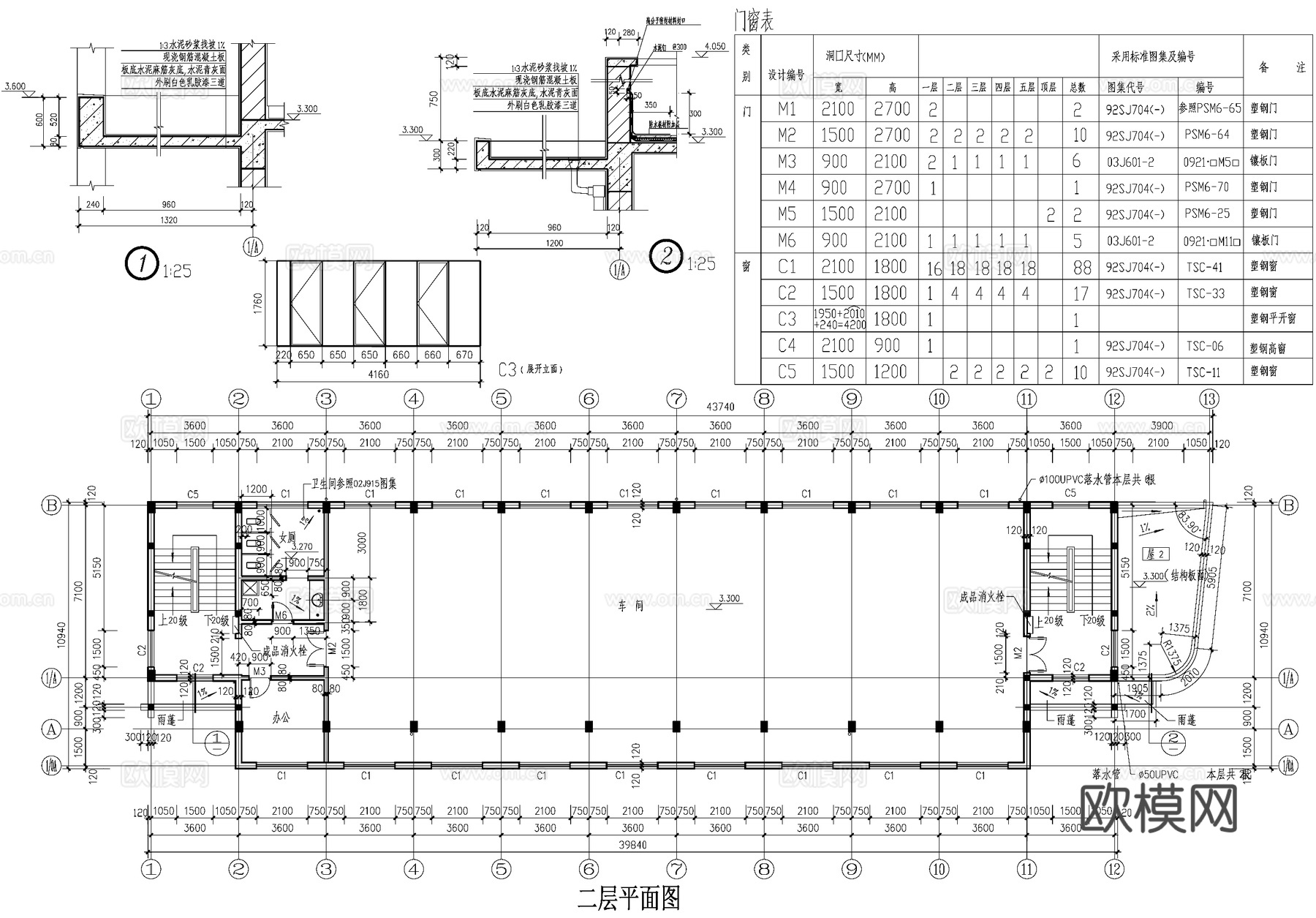
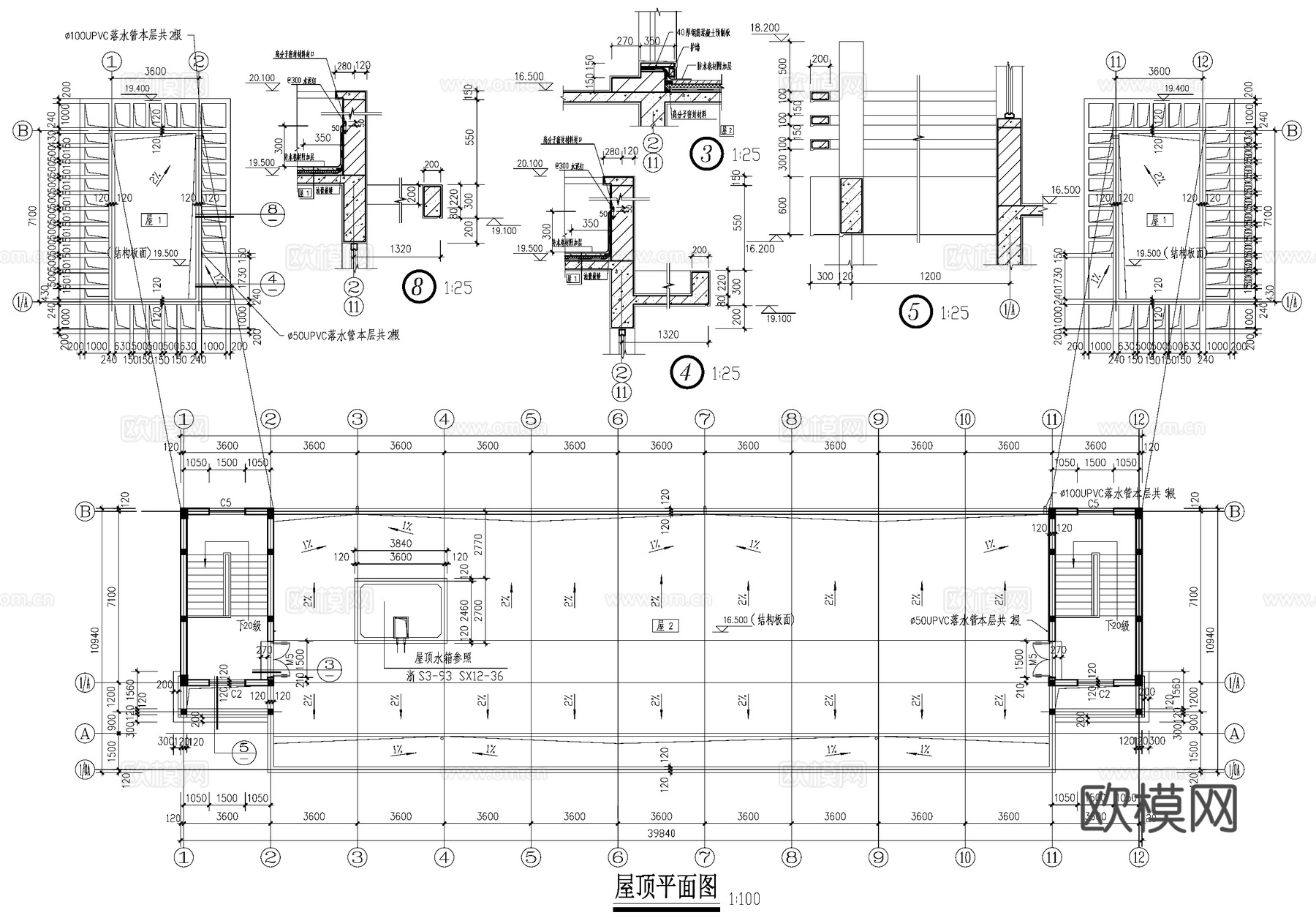
五层车间厂房工业建筑CAD施工图cad施工图
ID:
5411866
五层车间厂房工业建筑CAD施工图cad施工图 ID-5411866
所需欧币:
16
发布时间:
2026-02-24
下载请使用电脑登录欧模网,建议先收藏
收藏
分享
皮肤干燥
关注
为您推荐
车间厂房工业建筑CAD施工图cad施工图
厂房车间工业建筑CAD施工图cad施工图
单层车间厂房工业建筑CAD施工图cad施工图
生产车间厂房工业建筑CAD施工图cad施工图
磨工车间厂房工业建筑CAD施工图cad施工图
装具车间厂房工业建筑CAD施工图cad施工图
单层车间厂房工业建筑CAD施工图cad施工图cad施工图
加工车间厂房工业建筑CAD施工图cad施工图cad施工图
单层车间厂房工业建筑cad施工图
丙类车间厂房工业建筑CAD施工图cad施工图
厂房车间大厦工业建筑CAD施工图cad施工图
糖厂糖化车间厂房工业建筑CAD施工图cad施工图
单层车间厂房仓库工业建筑CAD施工图cad施工图
丁类车间厂房工业建筑CAD施工图cad施工图
生产车间厂房工业建筑规划CAD施工图cad施工图cad施工图
二层车间厂房工业建筑CAD施工图cad施工图
三层车间厂房工业建筑CAD施工图cad施工图
单层钢结构车间厂房工业建筑CAD施工图cad施工图
二层车间厂房工业建筑CAD施工图cad施工图
二层车间厂房工业建筑CAD施工图cad施工图
点击加载更多
分享到
复制链接
保存海报
取消
请选择收藏夹
+新增收藏夹
新增收藏夹
取消
确认
退出查看