模型详情
1/5
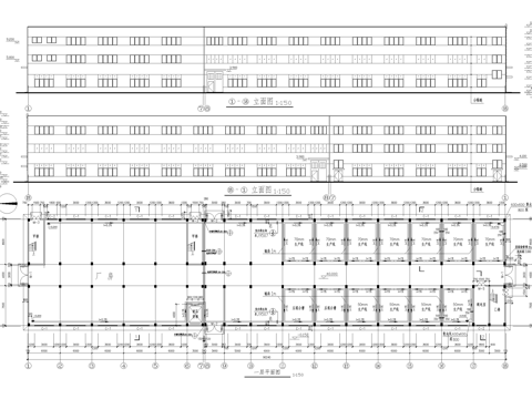
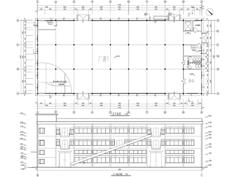
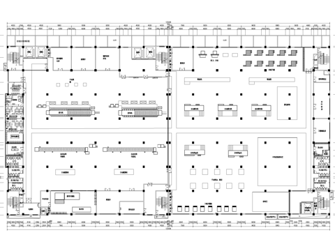
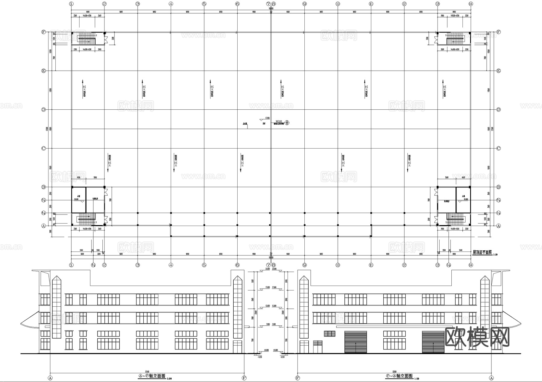
三层生产车间厂房工业建筑cad施工图
ID:
5411900
三层生产车间厂房工业建筑cad施工图 ID-5411900
所需欧币:
16
发布时间:
2026-02-24
下载请使用电脑登录欧模网,建议先收藏
收藏
分享
皮肤干燥
关注
为您推荐
厂房 三层生产加工车间 工业建筑生产线cad施工图
三层生产车间厂房工业建筑CAD施工图cad施工图
生产车间厂房工业建筑CAD施工图cad施工图
三层车间厂房工业建筑cad施工图
三层车间厂房工业建筑cad施工图
五层厂房生产车间工业建筑CAD施工图cad施工图
三层车间厂房工业建筑CAD施工图cad施工图
三层车间厂房工业建筑CAD施工图cad施工图
三层车间厂房工业建筑CAD施工图cad施工图
生产车间厂房工业建筑规划CAD施工图cad施工图cad施工图
钢结构厂房单层戊类生产车间工业建筑cad施工图
厂房平面图 印刷厂生产车间工业建筑cad施工图
单层轻钢生产厂房装桶车间工业建筑CAD施工图集cad施工图
二层塑料生产车间厂房排架结构工业建筑cad施工图
三层木工车间厂房工业建筑cad施工图
三层框排架车间厂房丁类工业建筑cad施工图
四层丙类生产厂房车间工业建筑CAD施工图cad施工图
钢结构厂房二层丙类生产车间工业建筑cad施工图
五层生产办公大楼厂房车间工业建筑cad施工图
厂房 平面图 车间 模组生产装配线 工业建筑cad施工图
点击加载更多
分享到
复制链接
保存海报
取消
请选择收藏夹
+新增收藏夹
新增收藏夹
取消
确认
退出查看