模型详情
1/7
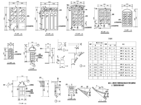
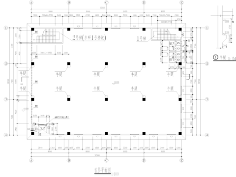
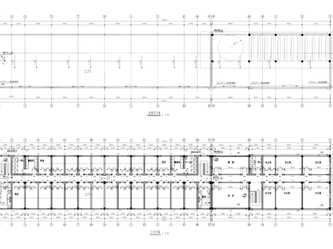
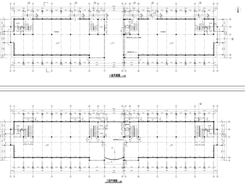
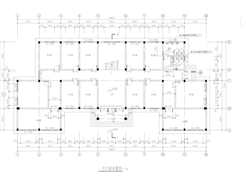
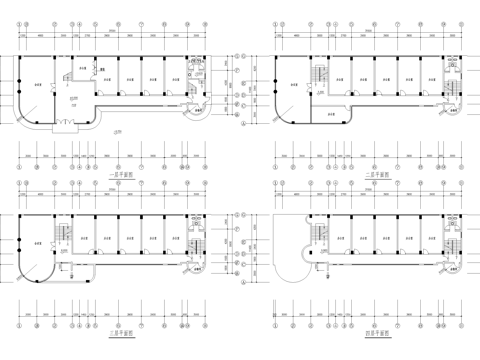
欧式多层办公楼建筑CAD施工图cad施工图
ID:
5411941
欧式多层办公楼建筑CAD施工图cad施工图 ID-5411941
所需欧币:
16
发布时间:
2026-02-24
下载请使用电脑登录欧模网,建议先收藏
收藏
分享
皮肤干燥
关注
为您推荐
欧式坡屋顶办公楼建筑CAD施工图cad施工图
多层厂房工业建筑CAD施工图cad施工图
多层办公楼建筑平面图cad施工图
欧式商住建筑CAD施工图集cad施工图cad施工图
多层住宅复式跃层居住建筑CAD施工图cad施工图
欧式高层办公楼建筑cad施工图
厂区办公楼建筑CAD施工图cad施工图
厂区办公楼建筑CAD施工图cad施工图
厂区办公楼建筑CAD施工图cad施工图
高层、多层、别墅住宅建筑平立剖CAD施工图集cad施工图
四层厂区办公楼建筑cad施工图cad施工图
童家淤小区多层别墅建筑结构CAD施工图集cad施工图
阳光花园多层住宅建筑CAD施工图+SU模型cad施工图
欧式艺术钟楼酒吧建筑CAD施工图cad施工图
欧式城堡餐厅饭店建筑CAD施工图cad施工图
欧式风格幼儿园建筑CAD施工图cad施工图
大学实验办公楼建筑平剖面CAD施工图cad施工图
多层车间厂房办公宿舍工业建筑CAD施工图cad施工图
欧式影楼礼品商店建筑CAD施工图cad施工图
五层办公楼建筑cad施工图
点击加载更多
分享到
复制链接
保存海报
取消
请选择收藏夹
+新增收藏夹
新增收藏夹
取消
确认
退出查看