模型详情
1/4
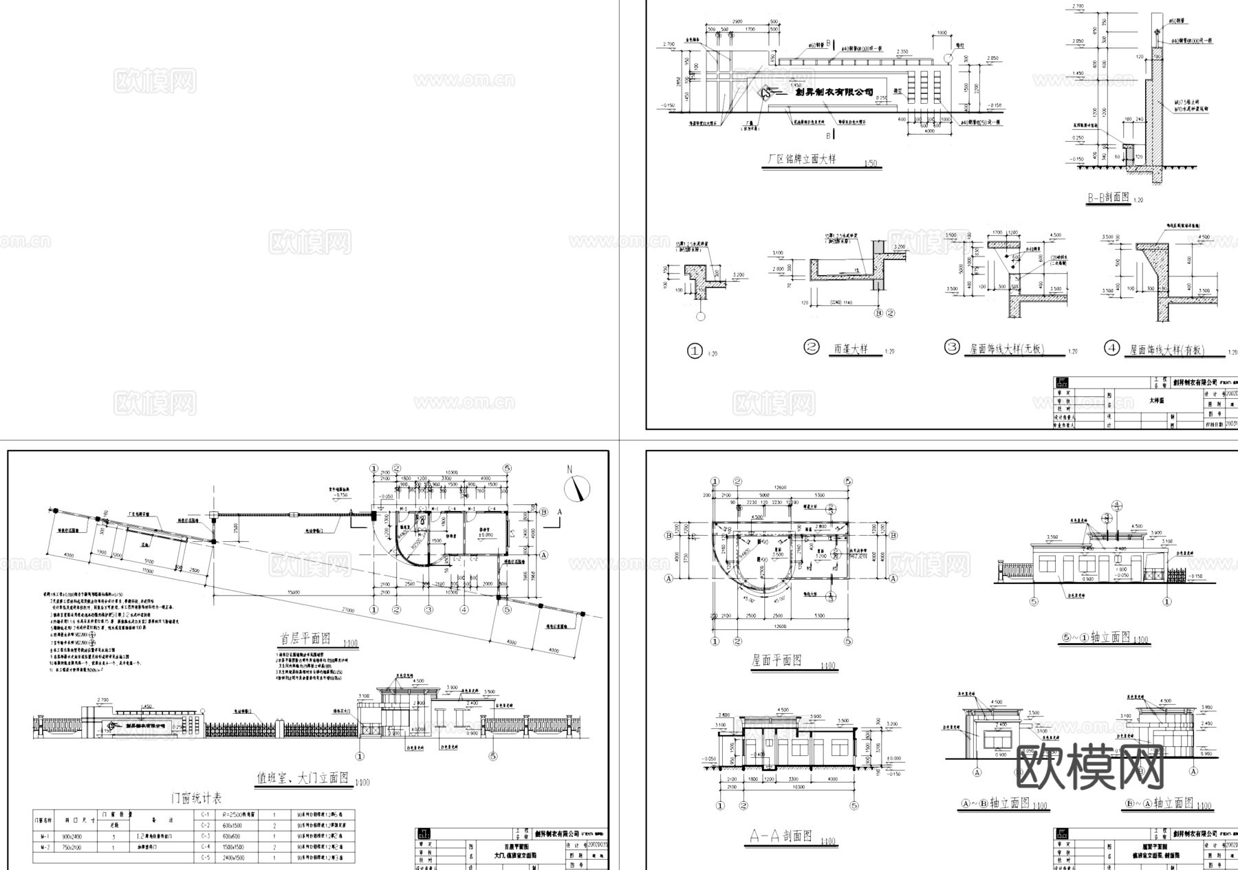
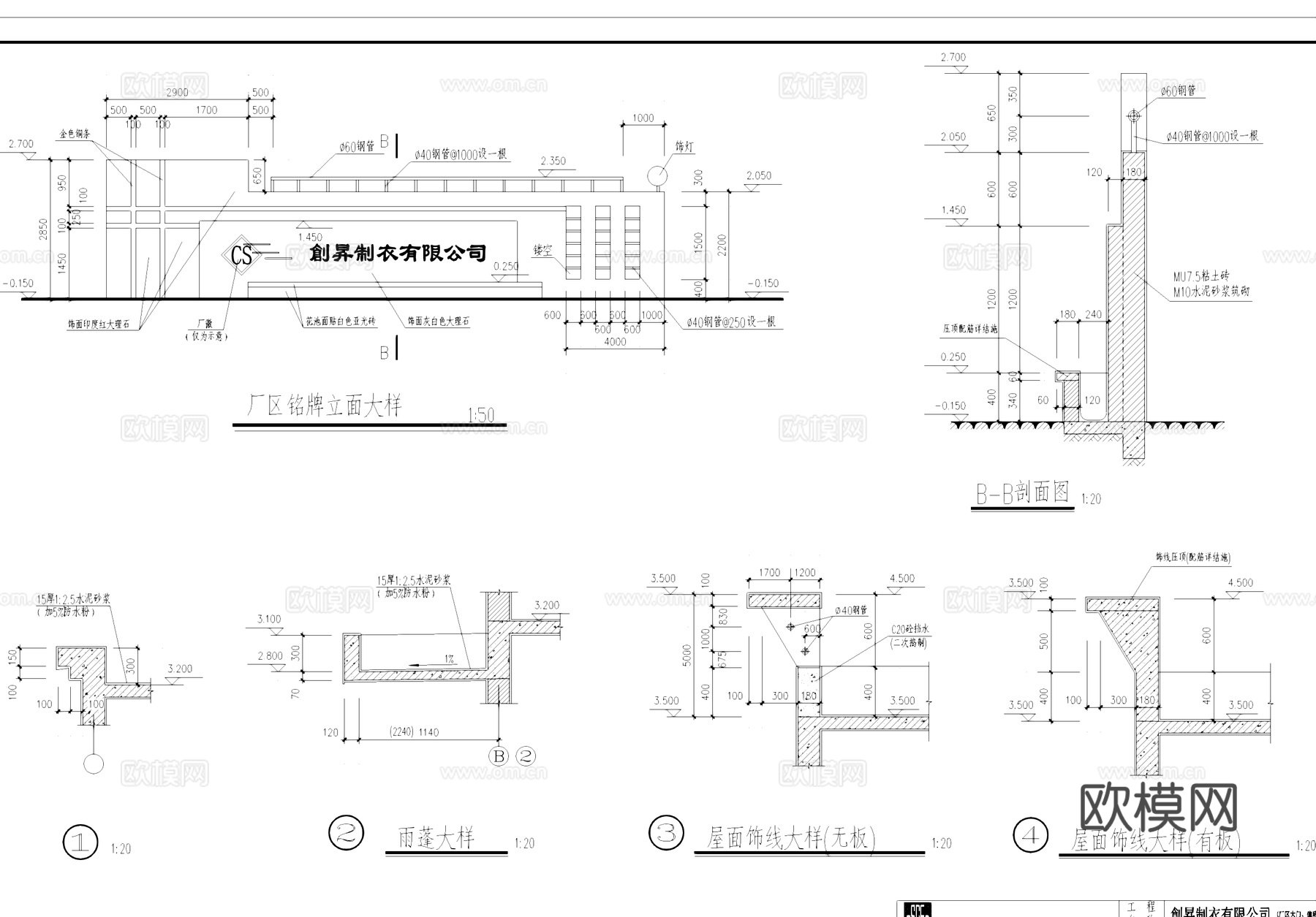
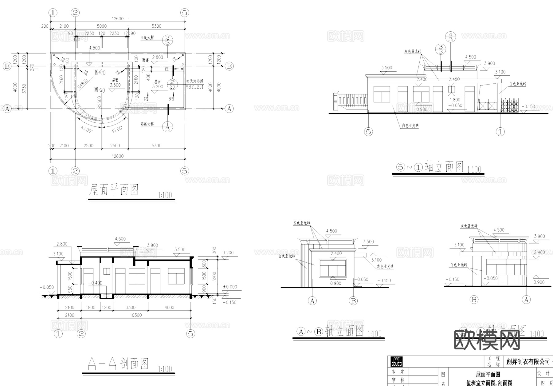
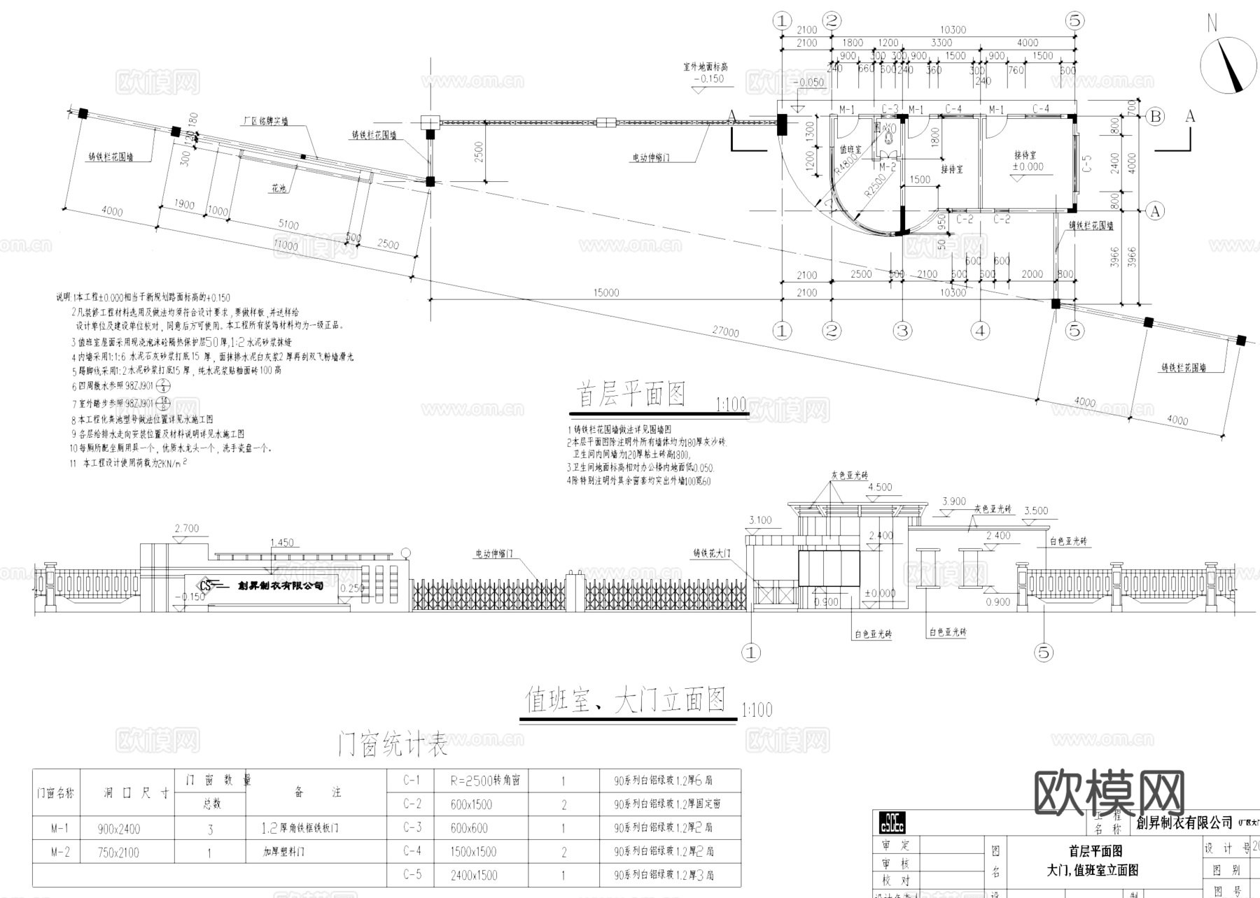
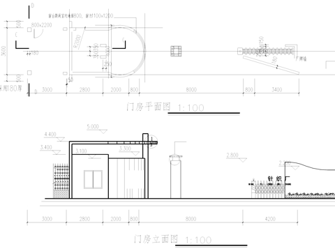
制衣厂值班室大门门卫室建筑CAD施工图cad施工图
ID:
5411950
制衣厂值班室大门门卫室建筑CAD施工图cad施工图 ID-5411950
所需欧币:
16
发布时间:
2026-02-24
下载请使用电脑登录欧模网,建议先收藏
收藏
分享
皮肤干燥
关注
为您推荐
门卫室建筑 入口大门 传达室门房值班室 警卫室cad施工图
公园大门学校大门值班室门卫室公司大门传达室门卫CAD素材图库cad施工图
九华制衣厂车间厂房工业建筑CAD施工图cad施工图
门卫室建筑 入口大门 传达休息室值班室 门房警卫室cad施工图
门卫室建筑 入口大门 休息值班室传达室 门房警卫室cad施工图
中山嘉士达制衣厂厂房办公楼工业建筑CAD施工图cad施工图
门卫室建筑 入口大门 传达休息值班室 消防控制室 门房警卫室cad施工图
门卫室建筑 入口大门 传达室保安室门房 值班室警卫室岗亭cad施工图
门卫室建筑 入口大门 门房传达室保安室 值班室警卫室cad施工图
门卫室建筑 入口大门 传达室门房值班室 警卫室 框架结构cad施工图
工厂门房门卫室建筑结构CAD施工图cad施工图
工业厂区门卫室传达室保安房建筑CAD施工图cad施工图
别墅建筑CAD施工图集cad施工图
现代住宅大门CAD施工图纸cad施工图
现代住宅大门CAD施工图纸cad施工图
现代住宅大门CAD施工图纸cad施工图
欧式商住建筑CAD施工图集cad施工图cad施工图
现代住宅大门CAD施工图纸cad施工图
现代住宅大门CAD施工图纸cad施工图
现代住宅大门CAD施工图纸cad施工图
点击加载更多
分享到
复制链接
保存海报
取消
请选择收藏夹
+新增收藏夹
新增收藏夹
取消
确认
退出查看