模型详情
1/8
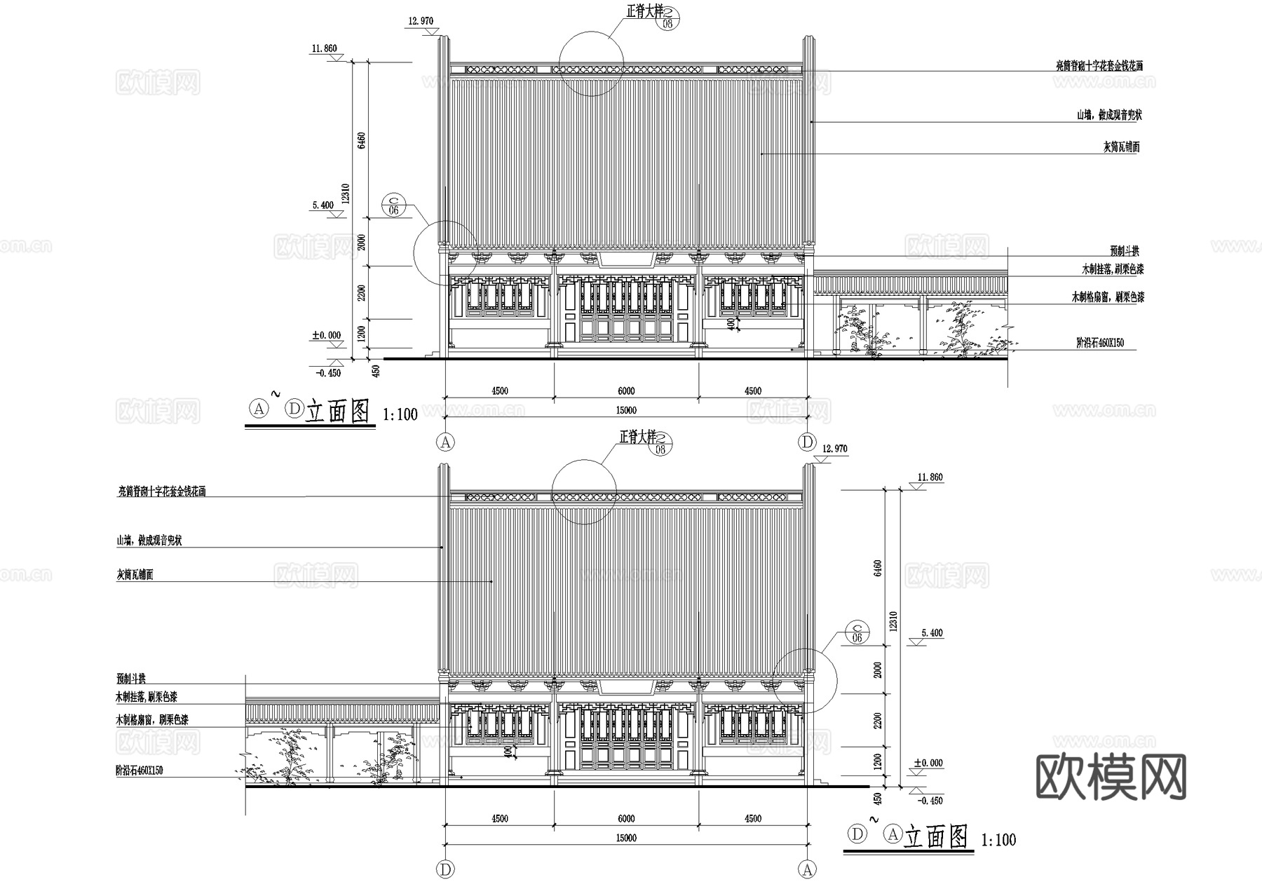
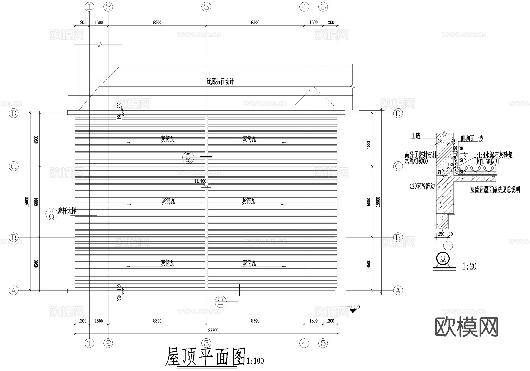
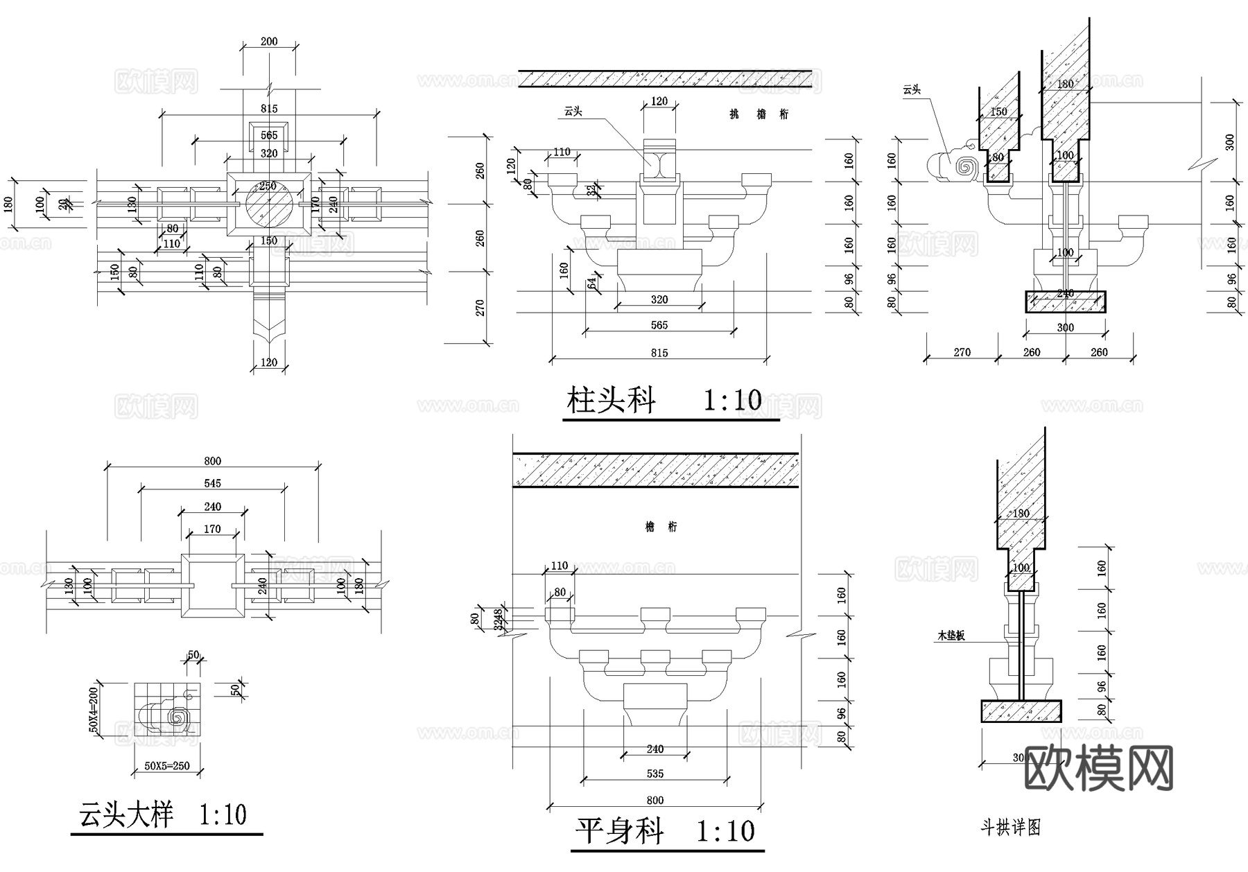
中式寺庙 单层斋堂餐厅食堂cad施工图
ID:
5412070
中式寺庙 单层斋堂餐厅食堂cad施工图 ID-5412070
所需欧币:
16
发布时间:
2026-02-24
下载请使用电脑登录欧模网,建议先收藏
收藏
分享
皮肤干燥
关注
为您推荐
中式寺庙 二层斋堂餐厅食堂cad施工图
单层食堂建筑CAD施工图cad施工图
小型食堂餐厅建筑CAD施工图集cad施工图
单层民宿建筑施工图cad施工图
中式单层四合院住宅建筑CAD施工图cad施工图
后厨平面图 员工食堂餐厅cad施工图cad施工图
后厨 食堂 平面图 餐厅 厨房cad施工图
二层职工餐厅建筑 员工餐厅食堂cad施工图
餐厅学校职工食堂厨房后厨CAD素材图库cad施工图
单层车间工业建筑CAD施工图cad施工图
餐厅学校职工食堂厨房后厨CAD素材图库cad施工图
后厨平面图 餐厅食堂饭堂厨房cad施工图
后厨 食堂 平面图 饭堂 餐厅 厨房cad施工图
单层车间厂房工业建筑CAD施工图cad施工图
单层车间厂房工业建筑CAD施工图cad施工图cad施工图
单层工地临时设施仓库办公工业建筑CAD施工图cad施工图
后厨 平面图 员工食堂餐厅饭堂 厨房cad施工图
二层食堂建筑CAD施工图集cad施工图
后厨平面图 学校食堂教师餐厅cad施工图
单层车间厂房工业建筑cad施工图
点击加载更多
分享到
复制链接
保存海报
取消
请选择收藏夹
+新增收藏夹
新增收藏夹
取消
确认
退出查看