模型详情
1/8
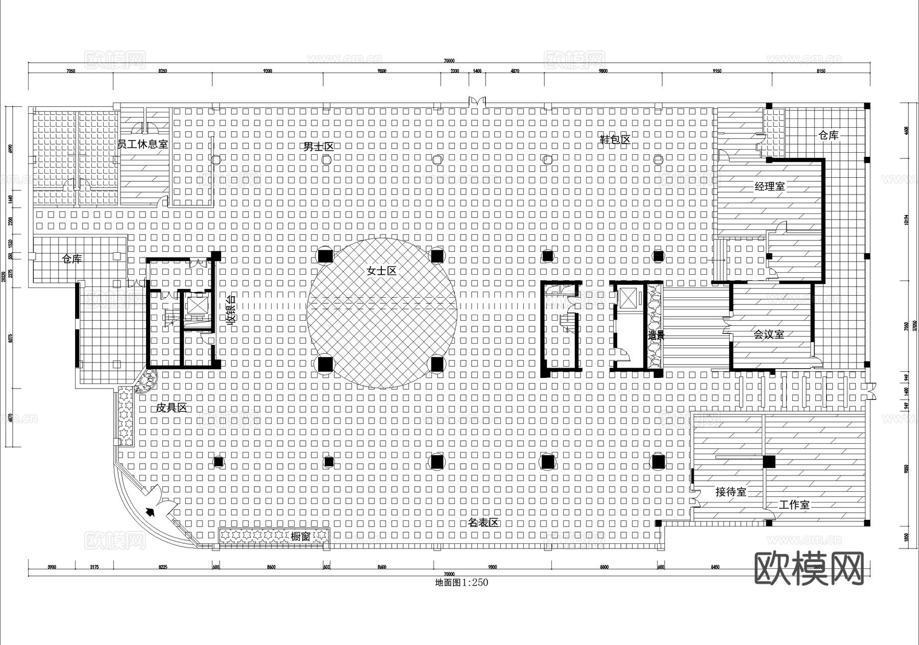
服装店 鞋包手表服饰店cad施工图
ID:
5412183
服装店 鞋包手表服饰店cad施工图 ID-5412183
所需欧币:
16
发布时间:
2026-02-24
下载请使用电脑登录欧模网,建议先收藏
收藏
分享
皮肤干燥
关注
为您推荐
服装店 服饰店cad施工图
服装店 服饰店cad施工图
服装店 商铺服饰店cad施工图
服装店 品牌服饰店cad施工图
服装店 服饰店 专卖店cad施工图
服装店 商场服饰店 专卖店cad施工图
服装店 商铺服饰店 专卖店cad施工图
服装店 服饰店 专卖店 阁楼cad施工图
服装店 商铺服饰店 专卖店cad施工图
服装店 二层服饰店 专卖店cad施工图
服装店 临街商铺服饰店 专卖店cad施工图
服装店 商铺品牌服饰店 专卖店cad施工图
服装店 商铺铺面服饰店 专卖店cad施工图
幸福一生服装服饰店室内工装CAD施工图cad施工图
服装店 鞋店 CADcad施工图
服装店衣架挂衣杆大样详图CAD施工图cad施工图cad施工图
Levis李维斯服装店全套施工图cad施工图
服装店平面布局图 服装店平面图cad施工图
鞋店服装店室内工装CAD施工图cad施工图
现代服装店平面方案图cad施工图
点击加载更多
分享到
复制链接
保存海报
取消
请选择收藏夹
+新增收藏夹
新增收藏夹
取消
确认
退出查看