模型详情
1/3
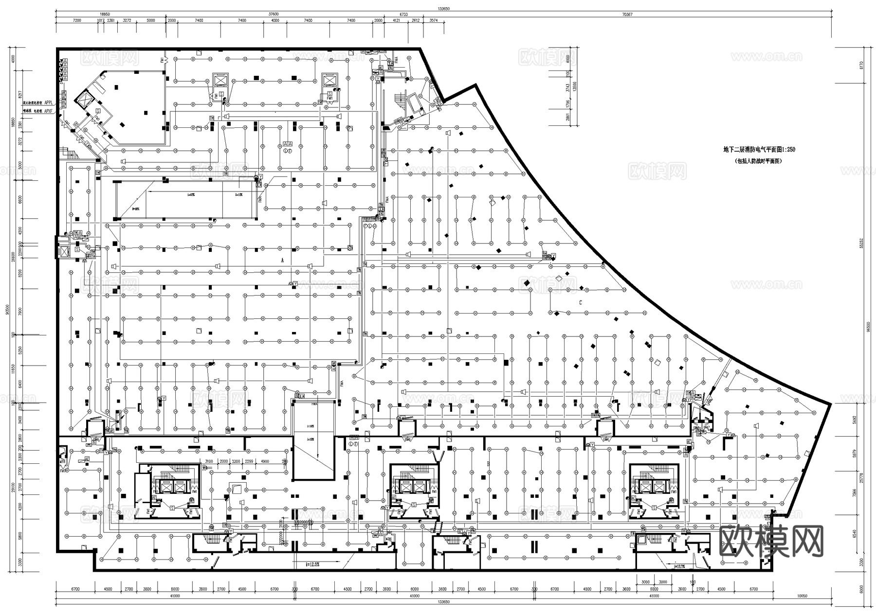
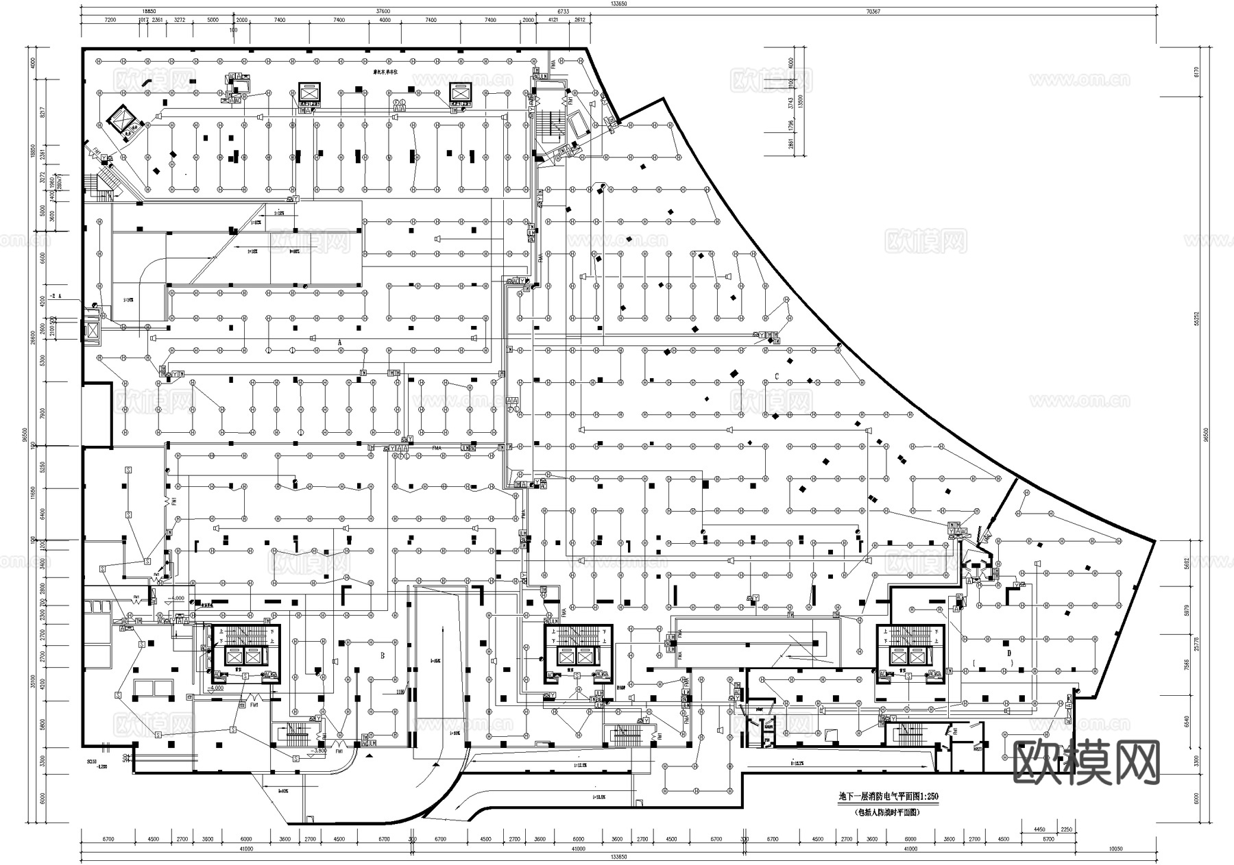
地下层消防电气平面图 报警器消防图 烟感消防图 系统图cad施工图
ID:
5412238
地下层消防电气平面图 报警器消防图 烟感消防图 系统图cad施工图 ID-5412238
所需欧币:
16
发布时间:
2026-02-24
下载请使用电脑登录欧模网,建议先收藏
收藏
分享
皮肤干燥
关注
为您推荐
地下室消防报警 平面图 报警器消防图 烟感消防图cad施工图
地下车库消防平面图 报警器消防图 烟感消防图cad施工图
报警器消防图 系统图cad施工图
消防给水平面图 机械排烟平面图 喷淋消防图 烟感消防图cad施工图
航站楼消防平面图 烟感报警系统图cad施工图cad施工图
消防图 火灾报警系统图cad施工图
地下车库人防工程消防图 火灾自动报警排烟 报警器烟感消防图cad施工图
火灾报警消防控制系统图cad施工图
报警器消防图 油罐区手动火灾报警系统平面图 报警器原理接线图cad施工图
医院宿舍 建筑电气 弱电图 系统图 基础接地防雷消防 CADcad施工图
防火消防门cad施工图
防火消防门cad施工图
消防图例安全标志疏散图cad施工图
大型写字楼建筑电气照明应急照明消防电气系统图cad施工图
战时地下层停车场监控系统平面图CAD施工图cad施工图
消防栓暗藏节点大样图cad施工图
消防指挥中心景观植物绿化平面CAD施工图cad施工图
消防安全标志图例图标图库cad施工图
消防栓隐形石材门节点cad施工图
疏散逃生通道消防设施位置及图例CAD施工图集cad施工图
点击加载更多
分享到
复制链接
保存海报
取消
请选择收藏夹
+新增收藏夹
新增收藏夹
取消
确认
退出查看