模型详情
1/2
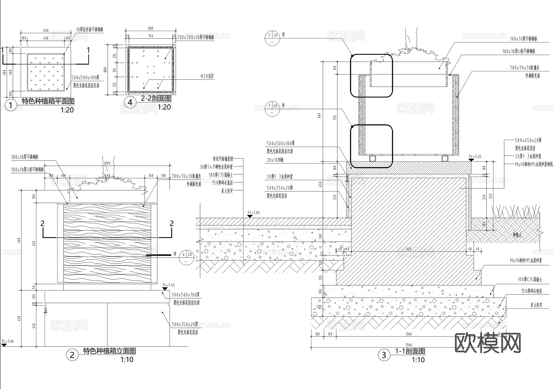
花箱 种植箱 花坛cad施工图
ID:
5412277
花箱 种植箱 花坛cad施工图 ID-5412277
所需欧币:
16
发布时间:
2026-02-24
下载请使用电脑登录欧模网,建议先收藏
收藏
分享
皮肤干燥
关注
为您推荐
花箱 种植池 花坛 CAD施工图cad施工图
花池 花箱 种植池 花坛cad施工图
花池 花箱 种植池 花坛cad施工图
花箱 移动花池 种植池 花坛cad施工图
花箱 花钵 花池 花坛 种植池cad施工图
蜂巢花箱蜜蜂雕塑 花坛 异形花池 种植池 CAD施工图cad施工图
可移动花箱 不锈钢花池 种植池 花坛 CAD施工图cad施工图
组合花箱 不锈钢花箱 CAD施工图cad施工图
移动花箱 不锈钢花池 种植池 CAD施工图cad施工图
可移动花箱 矩形方形花箱 模块化模数化花箱cad施工图cad施工图
设备箱 仪器箱 铝合金箱 运输箱 防震箱cad施工图
花箱CAD施工图cad施工图
种植池 花池 花坛cad施工图
不锈钢花池 花箱 种植池 树池 CAD施工图cad施工图
花池 种植池 花坛cad施工图
防腐木花盆 防腐木花槽 实木花箱 户外木花箱 防腐木种植箱cad施工图
树池 方形矩形树箱花池 种植池cad施工图
花箱节点CAD施工图cad施工图
不锈钢花池 可移动花池 花箱 种植池cad施工图
可移动花箱 树池 种植池 不锈钢花池 CAD施工图cad施工图
点击加载更多
分享到
复制链接
保存海报
取消
请选择收藏夹
+新增收藏夹
新增收藏夹
取消
确认
退出查看