模型详情
1/2
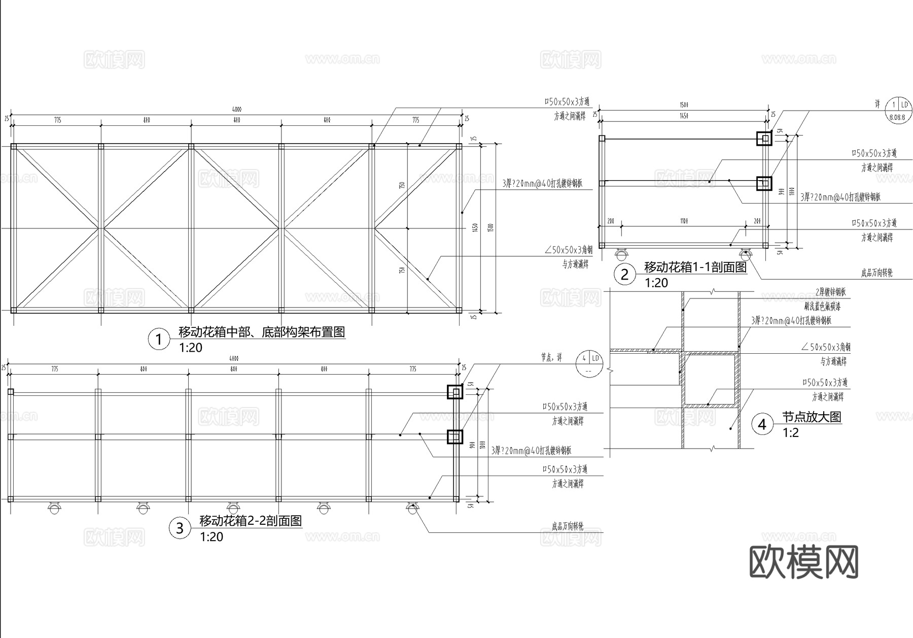
可移动花箱 穿孔板冲孔板不锈钢花池cad施工图
ID:
5412285
可移动花箱 穿孔板冲孔板不锈钢花池cad施工图 ID-5412285
所需欧币:
16
发布时间:
2026-02-24
下载请使用电脑登录欧模网,建议先收藏
收藏
分享
皮肤干燥
关注
为您推荐
不锈钢花池 可移动花池 花箱 种植池cad施工图
可移动花箱 不锈钢花池 种植池 花坛 CAD施工图cad施工图
可移动花箱 树池 种植池 不锈钢花池 CAD施工图cad施工图
移动花箱 不锈钢花池 种植池 CAD施工图cad施工图
花箱 不锈钢可移动树池 CAD施工图cad施工图
花箱 可移动花钵 CAD施工图cad施工图
可移动车挡 花箱 CAD施工图cad施工图
可移动树池 花箱 CAD施工图cad施工图
可移动花箱 盆栽 CAD施工图cad施工图
可移动花箱 矩形方形花箱 模块化模数化花箱cad施工图cad施工图
不锈钢花池 铁艺花池 穿孔钢板花池 花箱 CAD施工图cad施工图
花箱 移动花池 种植池 花坛cad施工图
可移动花箱 字母字体模块模数cad施工图
不锈钢花池 花箱 种植池 树池 CAD施工图cad施工图
可移动花箱 三角形模块模数化cad施工图
组合花箱 不锈钢花箱 CAD施工图cad施工图
穿孔板冲孔板CADcad施工图
花架 花箱 不锈钢花池 种植花篮 景观灯 CAD施工图cad施工图
花池 花箱 种植池 花坛cad施工图
开关插座 面板配电箱 可移动插座cad施工图
点击加载更多
分享到
复制链接
保存海报
取消
请选择收藏夹
+新增收藏夹
新增收藏夹
取消
确认
退出查看