模型详情
1/1
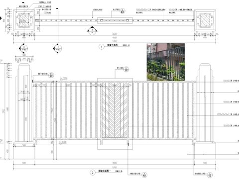
铁艺围墙景观节点大样CAD施工图cad施工图
ID:
5412907
铁艺围墙景观节点大样CAD施工图cad施工图 ID-5412907
所需欧币:
16
发布时间:
2026-02-24
下载请使用电脑登录欧模网,建议先收藏
收藏
分享
皮肤干燥
关注
为您推荐
景观围墙与道路节点大样CAD施工图cad施工图
格栅围墙 实体铁艺围墙cad施工图
铁艺栏杆围墙围栏景观节点CAD施工图集 16套cad施工图
溪涧景观节点大样CAD施工图集cad施工图
小区庭院景观围墙围挡节点大样详图CAD施工图集 9套cad施工图
缘石围墙台阶地面节点大样CAD施工图cad施工图
围墙cad施工图
围墙cad施工图
围墙cad施工图
围墙cad施工图
铁艺围墙 居住区格栅围挡 实体围墙cad施工图
景观小品节点大样汇总CAD施工图cad施工图
铁艺围墙护栏庭院围墙玻璃栏杆景观栏杆栈道栏杆素材CAD图库cad施工图
居住区景观节点大样CAD施工图集cad施工图
景观平桥节点大样详图CAD施工图cad施工图
游泳池节点大样景观详图CAD施工图cad施工图
景观道路铺装节点大样详图CAD施工图cad施工图
防腐木栈道景观节点大样CAD施工图cad施工图
景观架桥平底桥节点大样及结构CAD施工图cad施工图
假山景观置石节点大样CAD施工图cad施工图
点击加载更多
分享到
复制链接
保存海报
取消
请选择收藏夹
+新增收藏夹
新增收藏夹
取消
确认
退出查看