模型详情
1/8
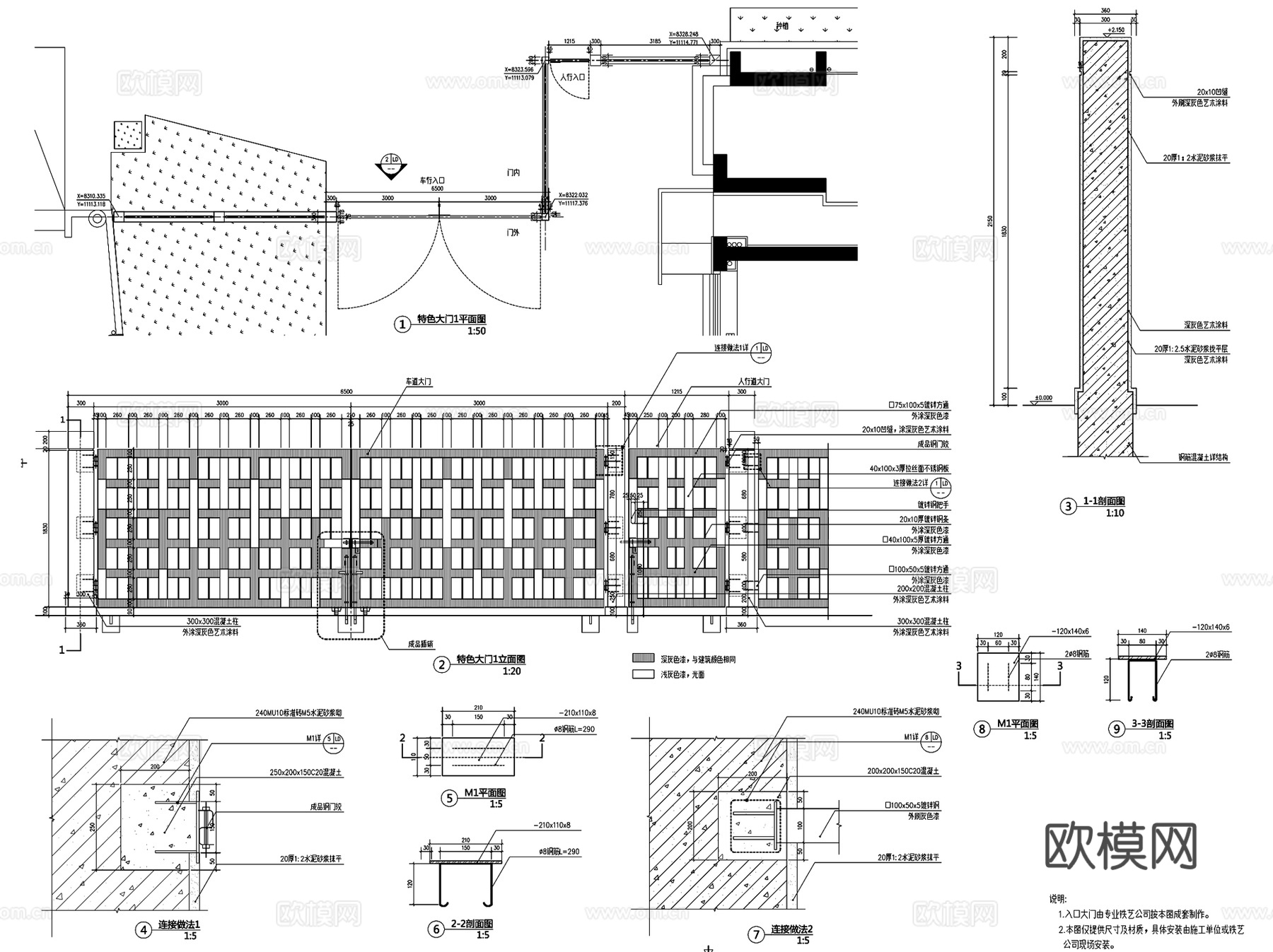
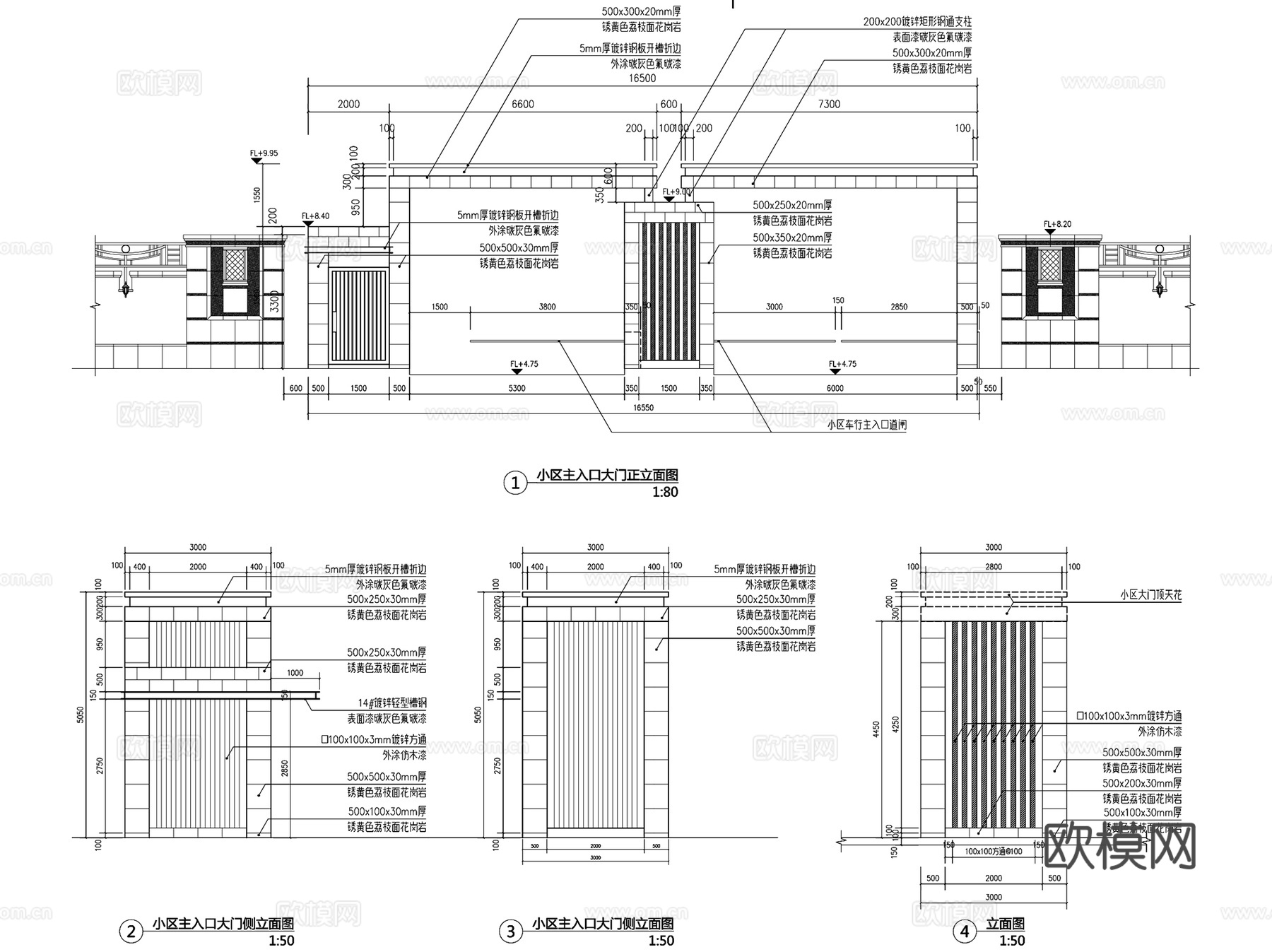
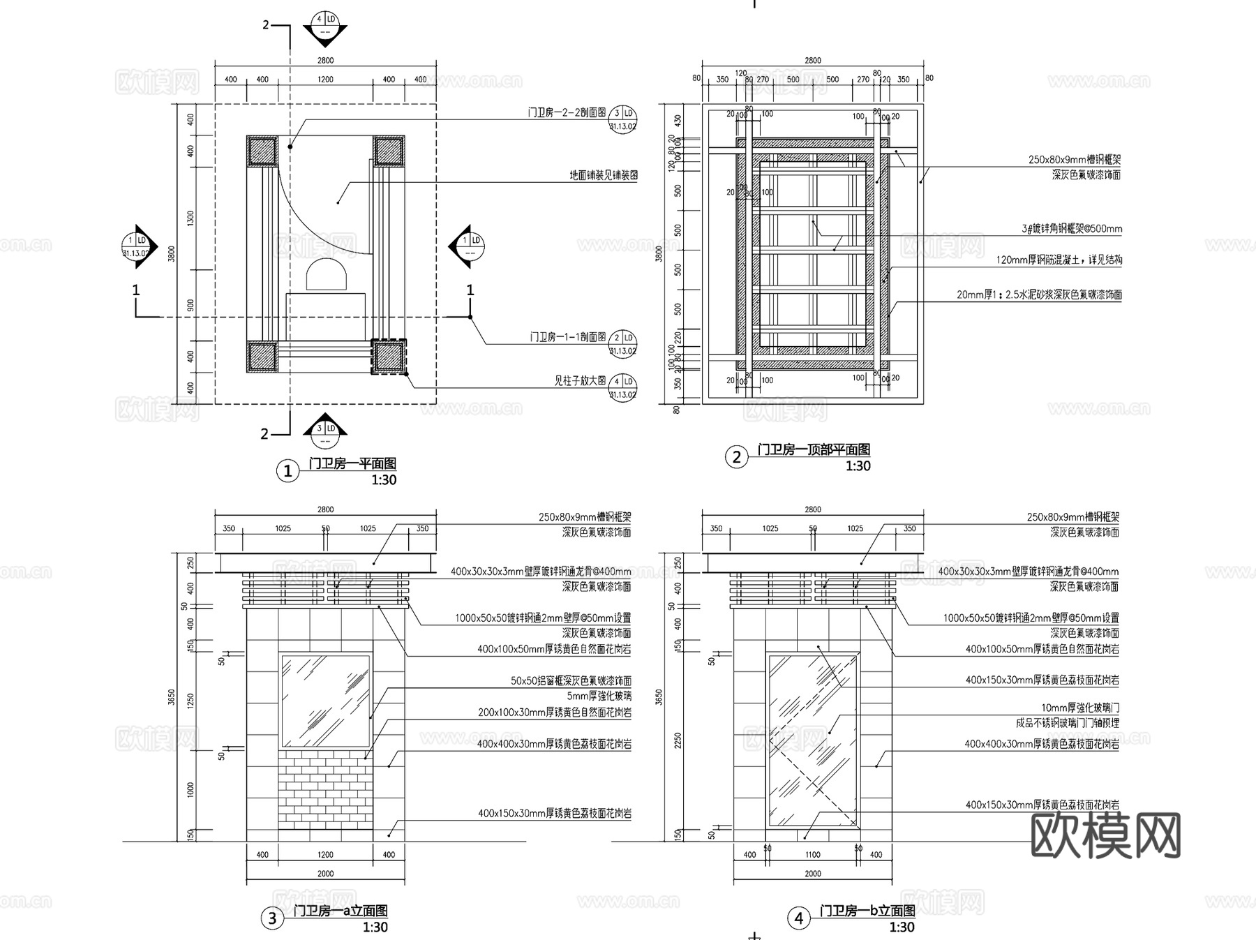
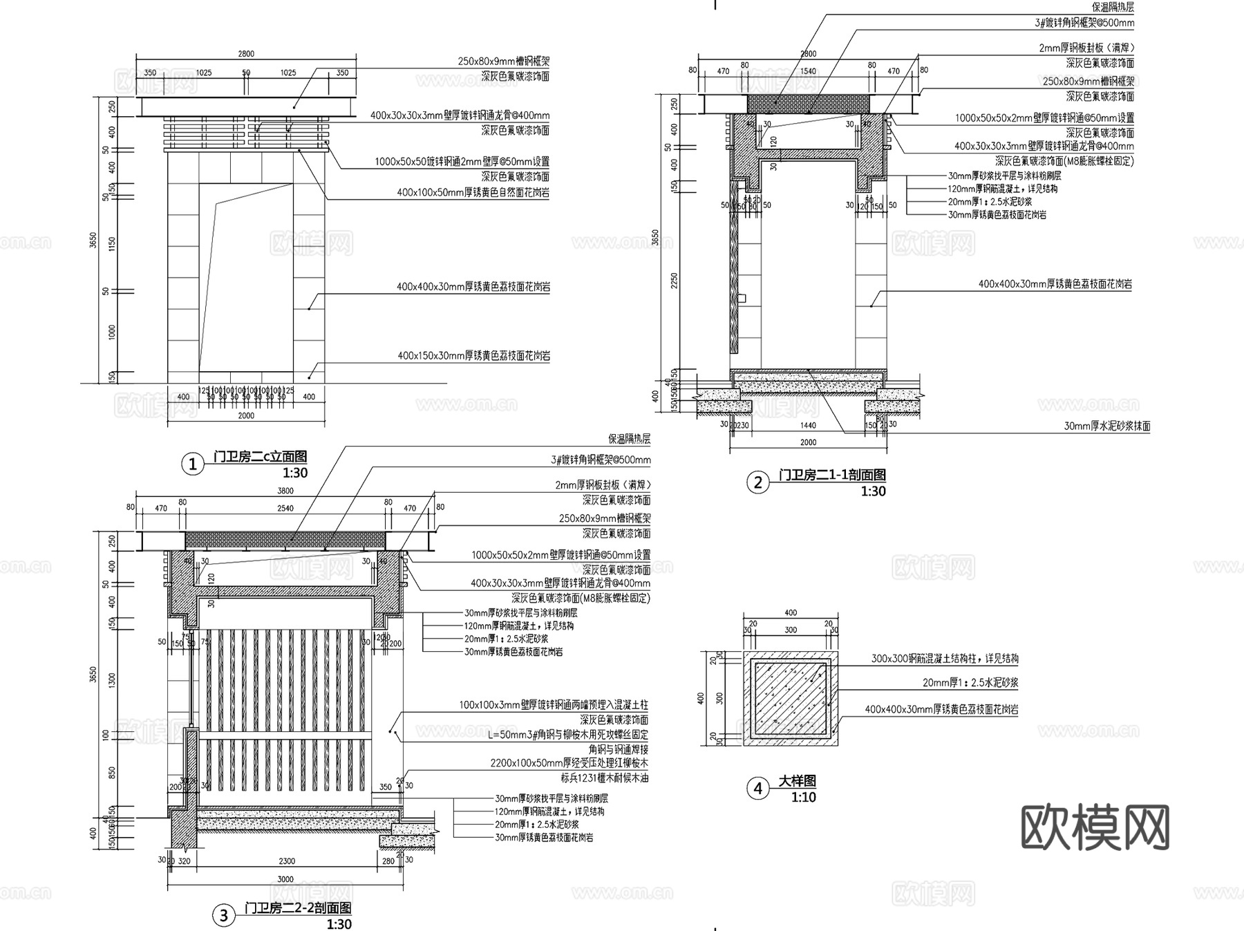
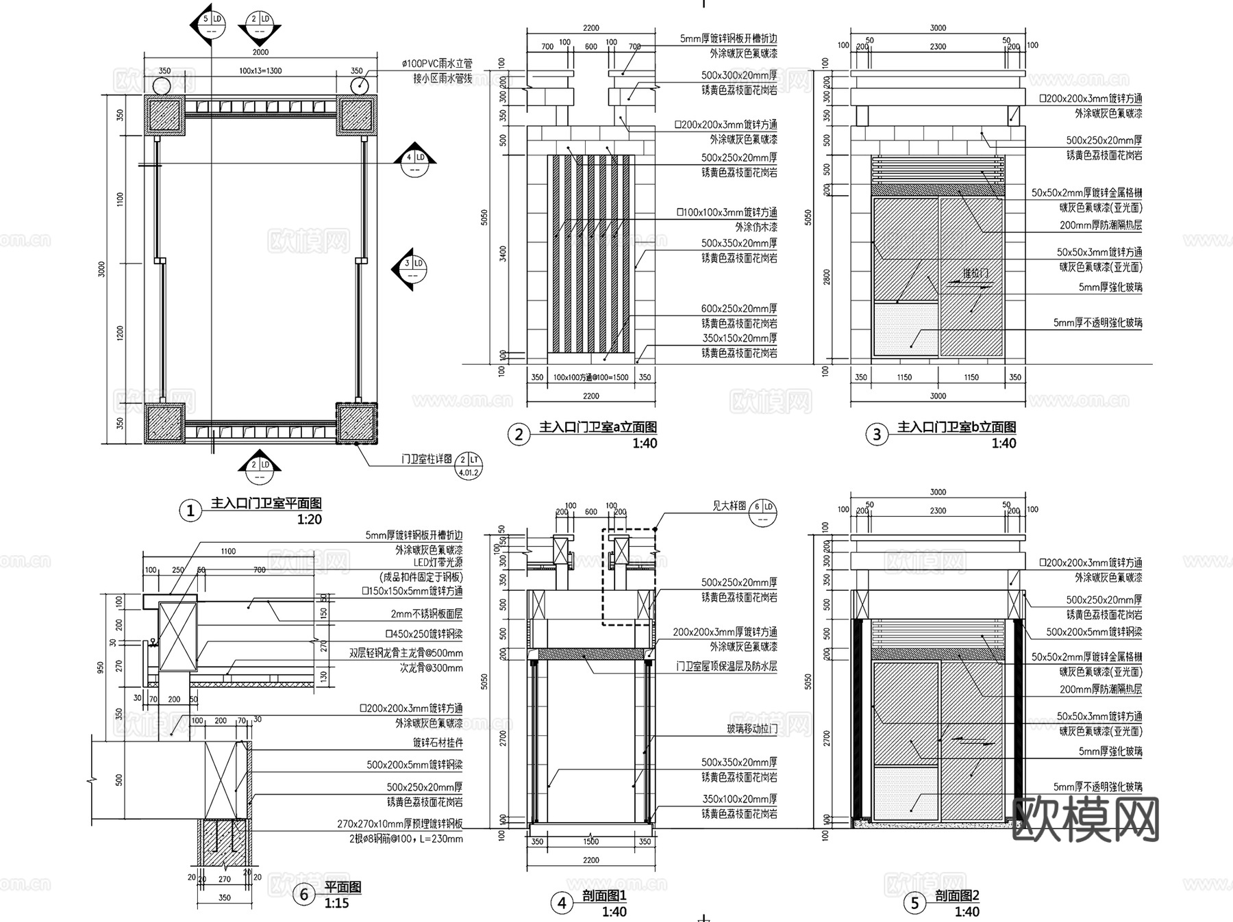
特色大门出入口门卫岗亭景观CAD施工图集 4套cad施工图
ID:
5412912
特色大门出入口门卫岗亭景观CAD施工图集 4套cad施工图 ID-5412912
所需欧币:
16
发布时间:
2026-02-24
下载请使用电脑登录欧模网,建议先收藏
收藏
分享
皮肤干燥
关注
为您推荐
入口大门及传达室门卫建筑CAD施工图集 175套cad施工图cad施工图
瞭望景观区CAD施工图集cad施工图
人防出入口建筑CAD施工详图集cad施工图
景观节点图集cadcad施工图
太阳湖公园景观CAD施工图集cad施工图
木栈桥平台景观CAD施工图集cad施工图
小庭院景观CAD施工图集cad施工图
别墅庭院大门图块图库CAD施工图集cad施工图
景观雾喷CAD施工详图集cad施工图
别墅小庭院景观CAD施工图集cad施工图
溪涧景观节点大样CAD施工图集cad施工图
点式景观绿化节点CAD施工图集cad施工图
阳台花园景观CAD施工图集cad施工图
码头景观节点详图CAD施工图集cad施工图
景观汀步CAD施工图详图集cad施工图
滨水篝火平台景观CAD施工图集cad施工图
道路景观绿化CAD施工图详图集cad施工图
田园乡村景观墙CAD施工图集cad施工图
玻璃亭景观大样CAD施工详图集cad施工图
登山木栈道景观CAD施工详图集cad施工图cad施工图
点击加载更多
分享到
复制链接
保存海报
取消
请选择收藏夹
+新增收藏夹
新增收藏夹
取消
确认
退出查看