模型详情
1/1
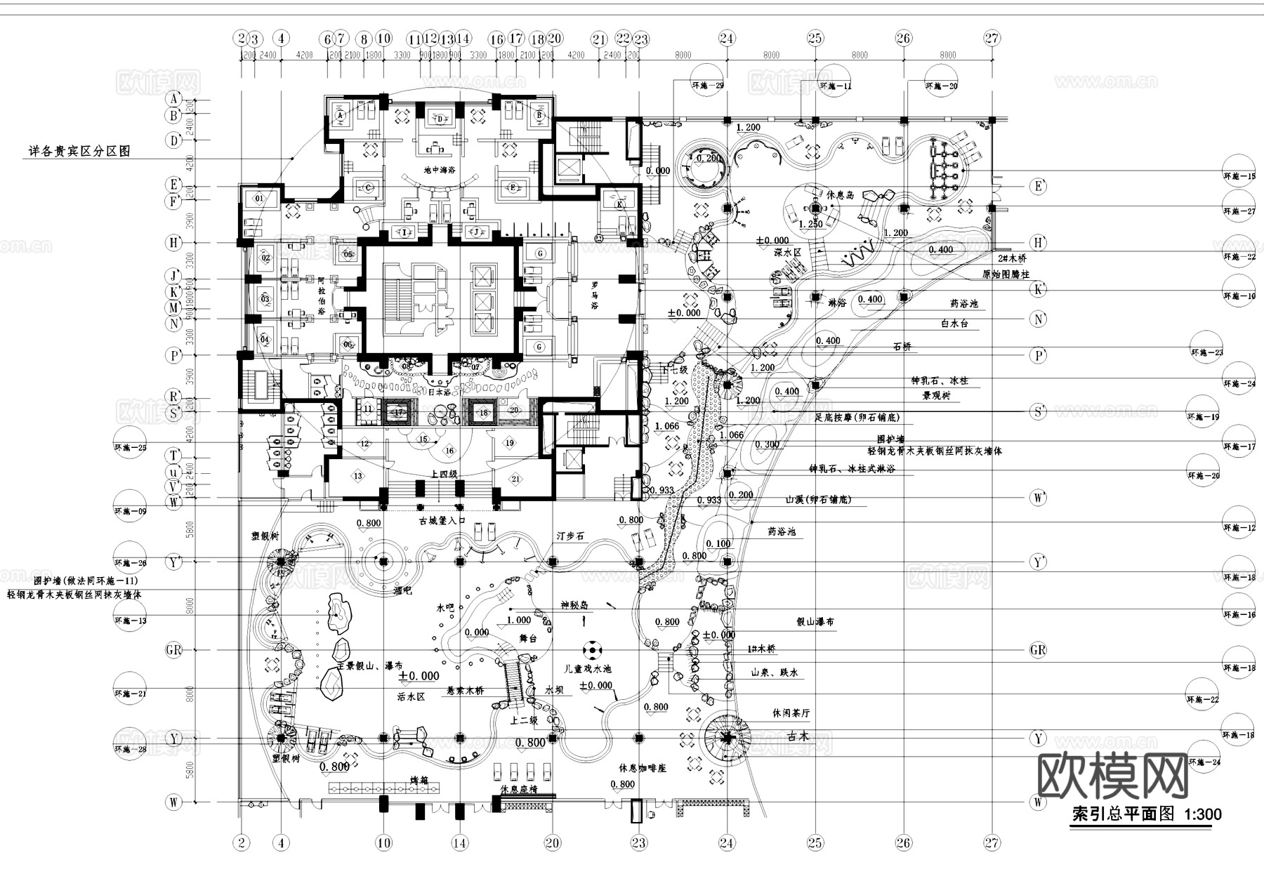
水疗洗浴中心会所景观平面CAD施工图cad施工图
ID:
5412923
水疗洗浴中心会所景观平面CAD施工图cad施工图 ID-5412923
所需欧币:
16
发布时间:
2026-02-24
下载请使用电脑登录欧模网,建议先收藏
收藏
分享
皮肤干燥
关注
为您推荐
洗浴中心会所 最新平面施工图合集cad施工图
洗浴水疗会所走廊室内装饰CAD施工图集cad施工图
水疗洗浴中心室内装饰CAD施工图cad施工图
汤泉水疗洗浴会所 最新全套施工图合集cad施工图
南方邻里中心景观平面CAD施工图cad施工图
洗浴水疗淋浴搓澡CAD图块cad施工图
洗浴水疗会所休息厅室内装饰CAD施工图集cad施工图
5套洗浴中心CAD施工图平面图立面图cad施工图
会议中心景观绿化平面及节点CAD施工图集cad施工图
消防指挥中心景观植物绿化平面CAD施工图cad施工图
140套桑拿洗浴中心CAD图纸cad施工图
餐厅会所平面施工图cad施工图
休闲会所平面施工图cad施工图
健身会所工装平面CADcad施工图
健身会所室内平面CAD施工图cad施工图cad施工图
休闲娱乐会所平面施工图cad施工图
桑拿洗浴中心吊顶天花节点CAD施工图cad施工图
工业厂房景观平面CAD施工图cad施工图
庭院景观平面CAD施工图cad施工图
生物廊景观平面CAD施工图cad施工图
点击加载更多
分享到
复制链接
保存海报
取消
请选择收藏夹
+新增收藏夹
新增收藏夹
取消
确认
退出查看