模型详情
1/2
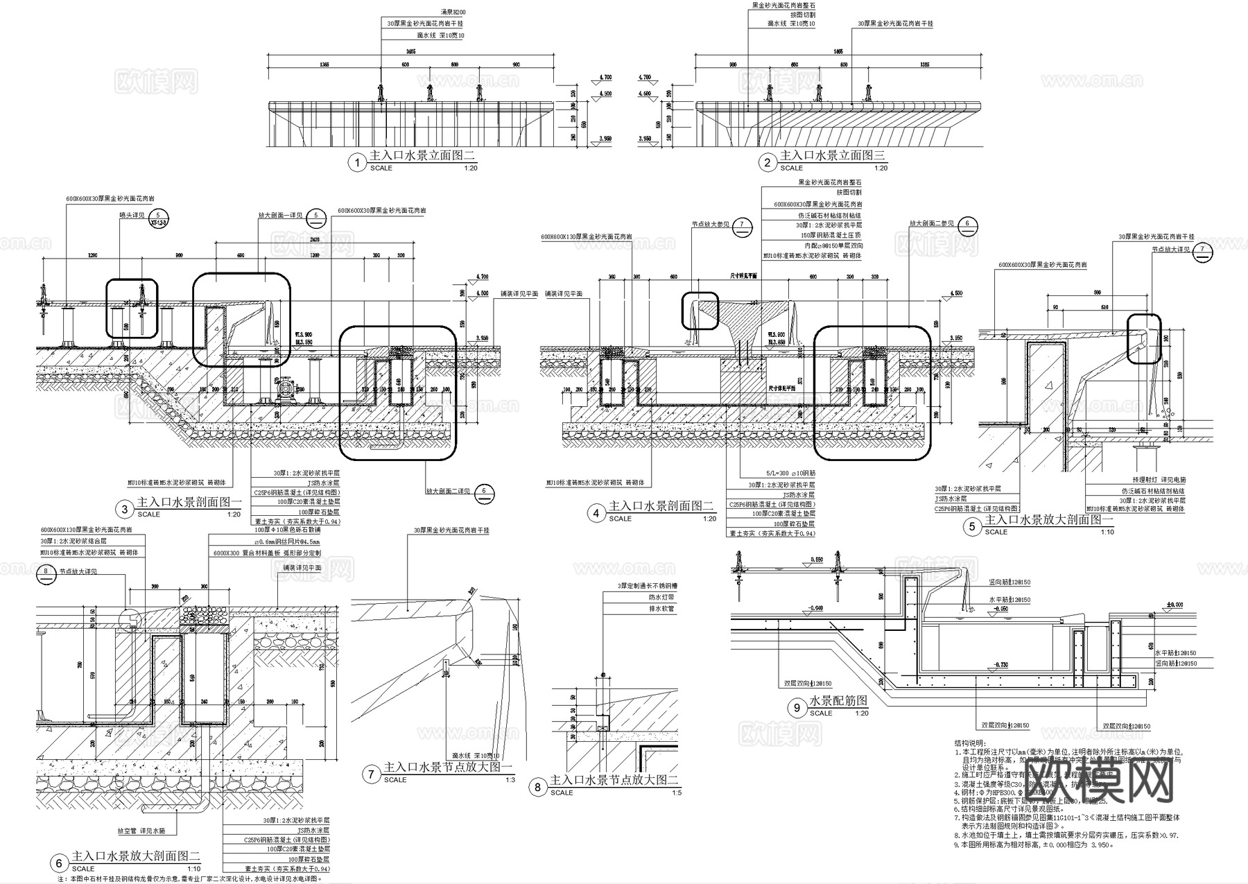
入口水景 喷泉 涌泉跌水叠水 镜面水景 水池cad施工图
ID:
5412951
入口水景 喷泉 涌泉跌水叠水 镜面水景 水池cad施工图 ID-5412951
所需欧币:
16
发布时间:
2026-02-24
下载请使用电脑登录欧模网,建议先收藏
收藏
分享
皮肤干燥
关注
为您推荐
入口水景 喷泉 镜面水景 涌泉跌水叠水 水池cad施工图
水景 喷泉 镜面水景 涌泉 跌水叠水 水池cad施工图
水景 喷泉 涌泉 跌水叠水 镜面水景 水池cad施工图
喷泉 镜面水景 雕塑 涌泉叠水跌水cad施工图
欧式水景 喷泉 涌泉雕塑 跌水叠水 水池cad施工图
入口水景 喷泉 镜面水景 涌泉跌水叠水 廊架矮墙灯箱台阶cad施工图
水景 喷泉 镜面水景 涌泉cad施工图
水景 喷泉 跌水叠水 水池cad施工图
喷泉 镜面水景 涌泉叠水跌水 水池 不锈钢十字撑cad施工图
水景 跌水叠水雕塑 镜面水景 水池cad施工图
镜面水景 跌水叠水 水池 篦子cad施工图
水景 水幕水帘景墙 喷泉 涌泉跌水叠水 水池cad施工图
水景 喷泉 涌泉跌水叠水 泵坑排水沟 种植池cad施工图
水幕悬挑雨帘水景 喷泉 叠水跌水水池cad施工图
喷泉 跌水涌泉雕塑 花钵水钵 水池 景观水景小品CAD施工图cad施工图
水池跌水叠水喷泉景观水景节点大样CAD施工图集 60套cad施工图
景观给排水入口水景 喷泉 雾喷 镜面水景 CAD施工图cad施工图cad施工图
景观喷泉涌泉水池水景节点详图CAD施工图集 20套cad施工图
喷泉跌水 水钵雕塑 水池 景观水景小品 CAD施工图cad施工图
景观叠水跌水剖面水景节点CAD施工图cad施工图
点击加载更多
分享到
复制链接
保存海报
取消
请选择收藏夹
+新增收藏夹
新增收藏夹
取消
确认
退出查看