模型详情
1/8
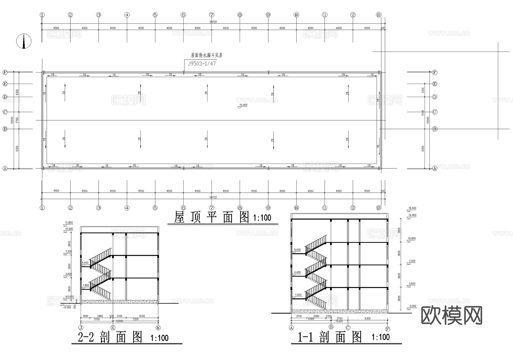
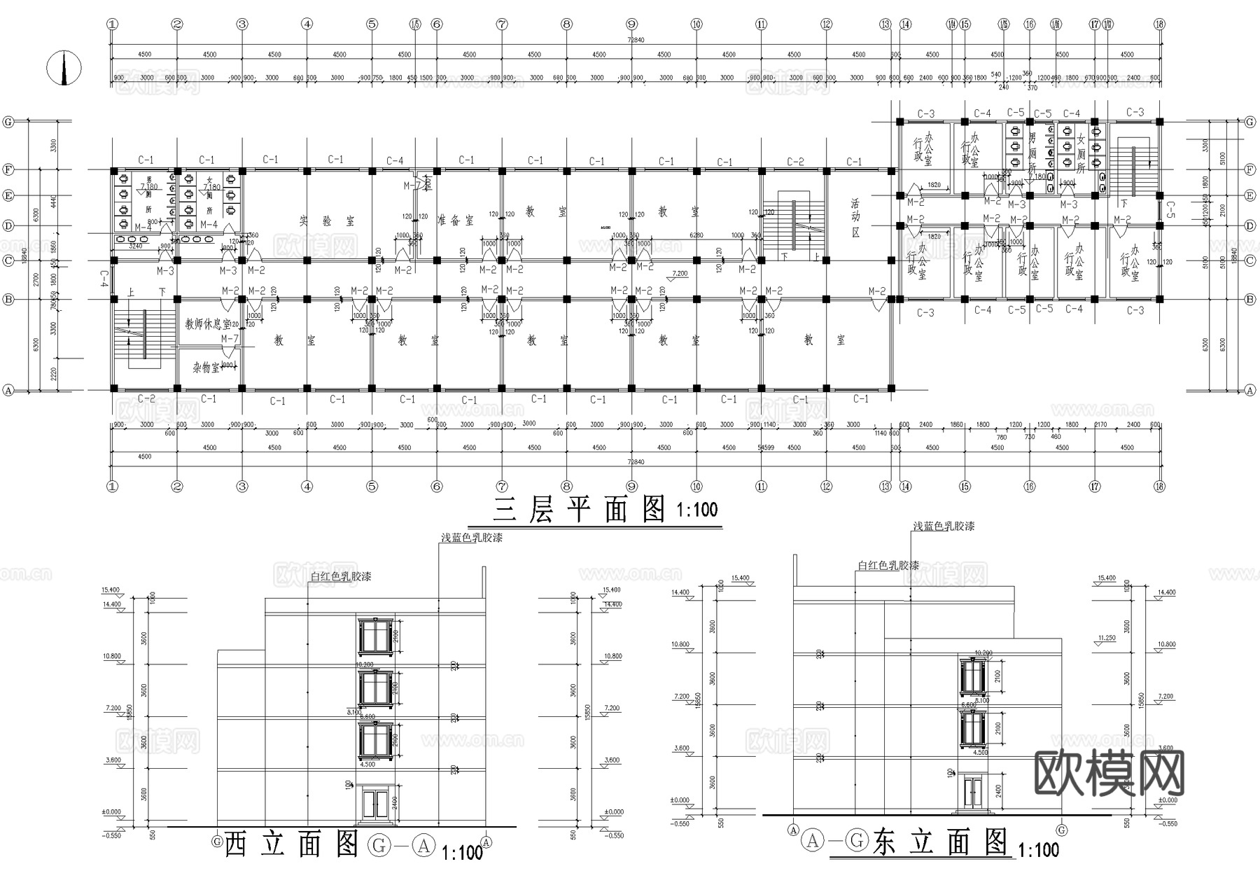
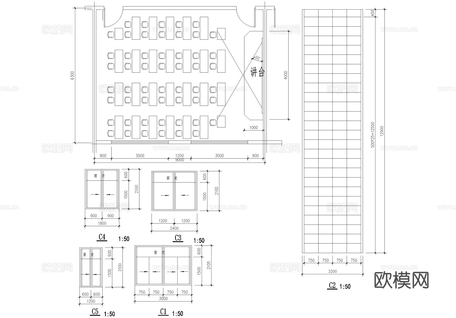
四层中学教学楼学校建筑cad施工图
ID:
5413868
四层中学教学楼学校建筑cad施工图 ID-5413868
所需欧币:
16
发布时间:
2026-02-24
下载请使用电脑登录欧模网,建议先收藏
收藏
分享
皮肤干燥
关注
为您推荐
四层中学教学楼学校建筑cad施工图
四层中学教学楼学校建筑cad施工图
欧式四层中学教学楼学校建筑cad施工图
三层中学教学楼学校建筑cad施工图cad施工图
四层中学教学楼学校建筑结构cad施工图
四层教学楼学校建筑cad施工图
四层中学实验楼学校建筑cad施工图
四层中学实验楼学校建筑cad施工图
四层教学楼学校建筑cad施工图cad施工图
四层大学教学楼学校建筑cad施工图
小学中学学校规划建筑平剖面CAD施工图cad施工图
五层大学高校教学楼学校建筑cad施工图
四层教学楼教室学校建筑cad施工图
五层高中教学楼学校建筑cad施工图
安徽职业艺术学校教学楼建筑CAD施工图cad施工图
四层大学教学楼职教中心学校建筑cad施工图
学校教学楼实验楼教育建筑结构CAD施工图集 80套cad施工图
校园景观 中学学校规划 总平面图cad施工图
万年县珠山中学建筑规划CAD施工图cad施工图
徐州国际学校幼儿园建筑CAD施工图集cad施工图
点击加载更多
分享到
复制链接
保存海报
取消
请选择收藏夹
+新增收藏夹
新增收藏夹
取消
确认
退出查看