模型详情
1/1
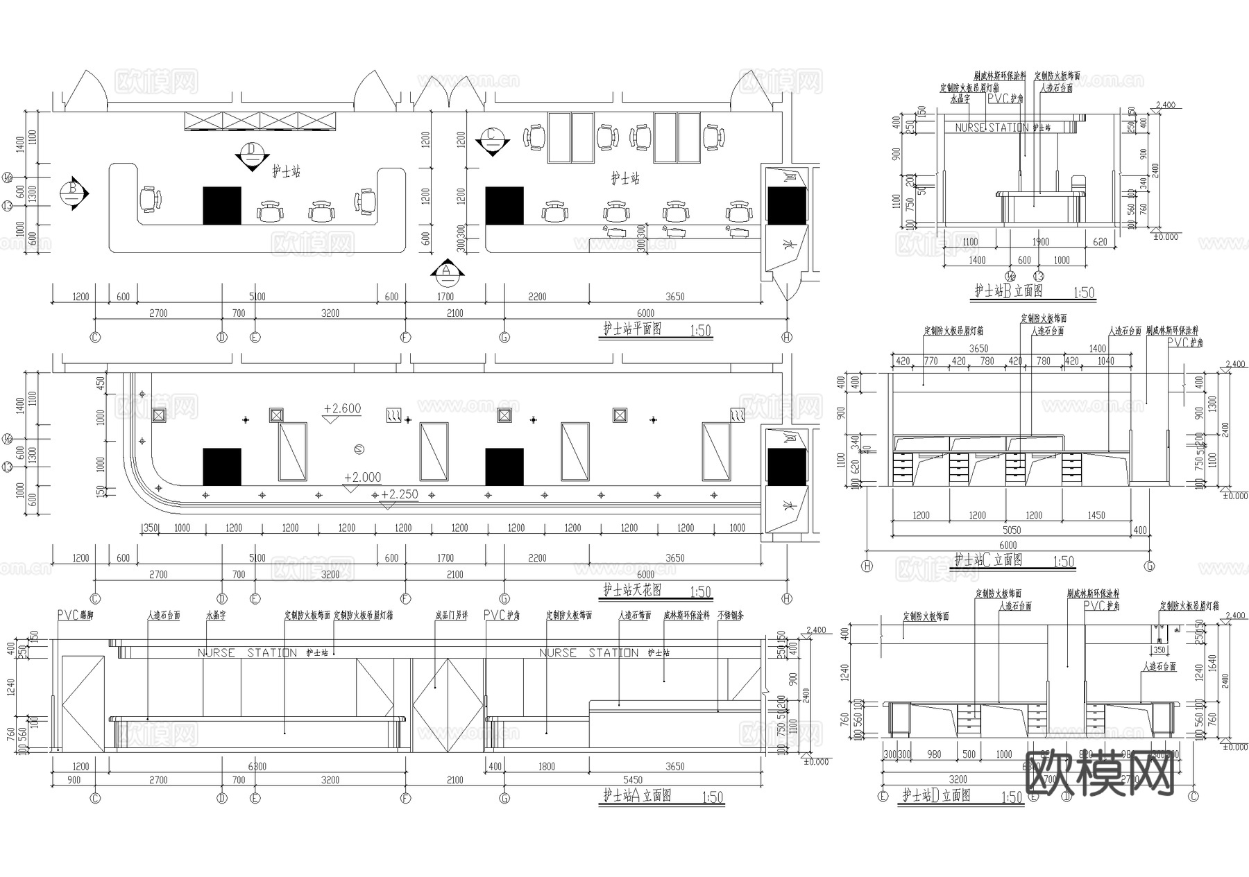
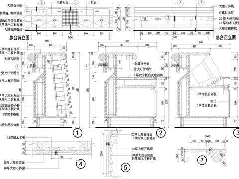
医院 护士站 服务咨询台cad施工图
ID:
5413889
医院 护士站 服务咨询台cad施工图 ID-5413889
所需欧币:
16
发布时间:
2026-02-24
下载请使用电脑登录欧模网,建议先收藏
收藏
分享
皮肤干燥
关注
为您推荐
前台节点 服务接待台咨询台cad施工图
前台节点 接待服务台咨询台cad施工图
前台节点 服务接待台咨询台cad施工图
前台节点 服务接待台咨询台cad施工图
最新现代前台、接待台、服务台、咨询台CAD图库cad施工图cad施工图
吧台节点 前台接待台服务台 咨询台cad施工图
医院咨询台导诊台接待台室内装饰CAD施工图集cad施工图
前台节点 接待台服务咨询台 剖立面图cad施工图
吧台 接待台 服务台 收银台 前台 咨询台cad施工图
前台节点 收银台剖立面 接待台服务咨询台cad施工图
前台节点 柜台接待台 服务台咨询台cad施工图
医院 最新全套施工图合集cad施工图
医院 最新全套施工图合集cad施工图
医院病房楼平面图 CAD施工图cad施工图
现代整形美容医疗医院施工图cad施工图
绍兴人民医院建筑CAD施工图集cad施工图
医院 牙科医院 医疗器材 牙科医疗设备 牙科诊所 口腔医院cad施工图
27套口腔诊所牙科医院CAD施工图cad施工图
爱尔眼科眼诊医院cad施工图
医院清洁台室内装饰CAD施工图集cad施工图
点击加载更多
分享到
复制链接
保存海报
取消
请选择收藏夹
+新增收藏夹
新增收藏夹
取消
确认
退出查看