模型详情
1/1
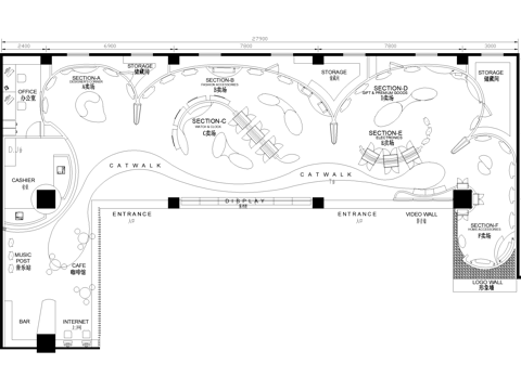
服装公司庭院设计平面图cad施工图
ID:
5414610
服装公司庭院设计平面图cad施工图 ID-5414610
所需欧币:
66
发布时间:
2026-02-24
下载请使用电脑登录欧模网,建议先收藏
收藏
分享
羅文華
关注
为您推荐
服装公司庭院设计平面图cad施工图
公司庭院景观绿化设计平面图cad施工图
公司庭院景观绿化设计平面图cad施工图
公司庭院景观绿化设计平面图cad施工图
公司庭院景观绿化设计平面图cad施工图
庭院景观设计平面图cad施工图
庭院景观设计平面图cad施工图
庭院景观设计平面图cad施工图
庭院景观设计平面图cad施工图
庭院景观绿化设计平面图cad施工图
庭院景观设计平面图cad施工图
服装店平面图合集 服装店平面图cad施工图
禅意庭院平面图cad施工图
机关单位庭院景观设计平面图cad施工图
中式庭院平面图cadcad施工图
服装礼品配饰展厅平面图cad施工图
庭院景观平面图cad施工图cad施工图
庭院 植物绿化平面图cad施工图
庭院 植物绿化平面图cad施工图
庭院 植物绿化平面图cad施工图
点击加载更多
分享到
复制链接
保存海报
取消
请选择收藏夹
+新增收藏夹
新增收藏夹
取消
确认
退出查看