模型详情
1/8
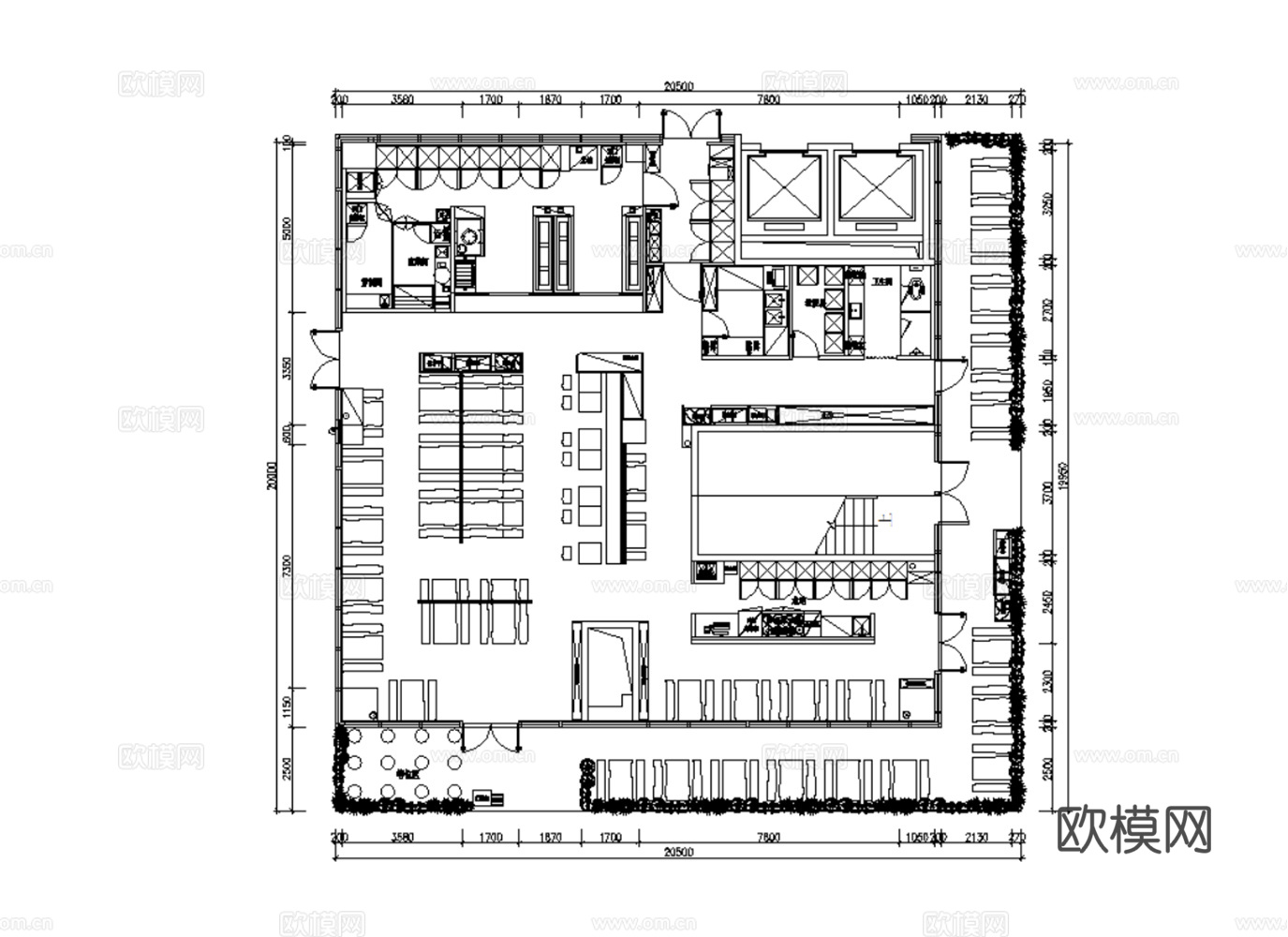
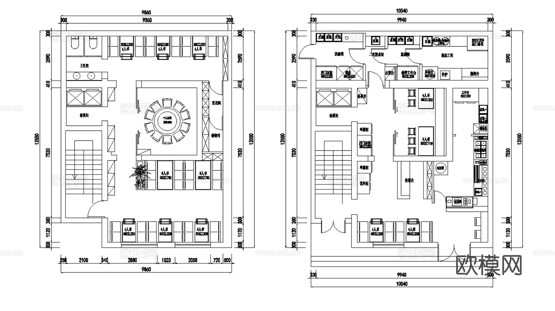
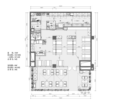
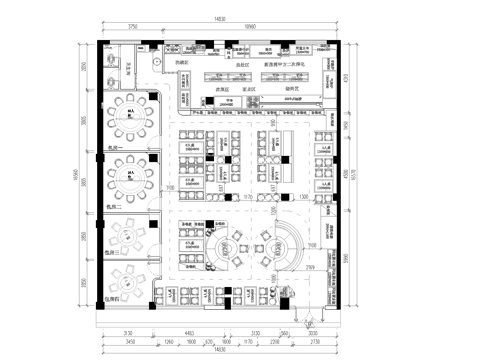
29套现代烧烤烤肉烤串店CAD平面设计方案cad施工图
ID:
5417349
29套现代烧烤烤肉烤串店CAD平面设计方案cad施工图 ID-5417349
所需欧币:
86
发布时间:
2026-02-26
下载请使用电脑登录欧模网,建议先收藏
收藏
分享
大可
关注
为您推荐
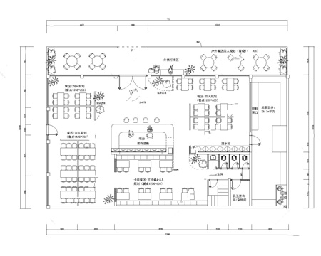
31套烧烤店 烤肉店 烤串店CAD施工图最新整理合集cad施工图
31套烧烤店 烤肉店 烤串店CAD施工图最新整理合集cad施工图
最新烧烤店平面施工图cad施工图
最新烧烤店平面施工图cad施工图
烤肉店 烧烤店 饭店 烤鱼店 自助餐 烤肉自助cad施工图
烧烤店 最新平面施工图合集cad施工图
烧烤店 最新平面施工图合集cad施工图
烧烤店 最新平面施工图合集cad施工图
烧烤店 最新平面施工图合集cad施工图
烧烤店 最新平面施工图合集cad施工图
烧烤店 最新平面施工图合集cad施工图
烧烤店 最新平面施工图合集cad施工图
烧烤店 最新平面施工图合集cad施工图
烧烤店 最新平面施工图合集cad施工图
烤肉店烧烤店烧肉店室内装饰CAD施工图集 10套cad施工图
李小太烧烤串殿木屋烧烤二把手烧烤cad施工图
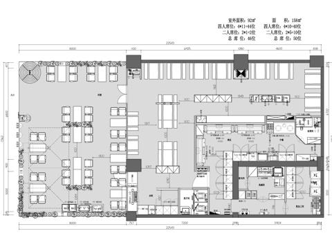
13套烧烤店大排档烤肉店CAD施工图附效果图cad施工图
烧烤架 烤炉 烧烤网 烤肉架 炭火烤架cad施工图
130套餐厅快餐店CAD平面设计方案cad施工图
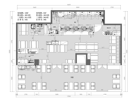
240平烧烤店 最新平面施工图合集cad施工图
点击加载更多
分享到
复制链接
保存海报
取消
请选择收藏夹
+新增收藏夹
新增收藏夹
取消
确认
退出查看