模型详情
1/5
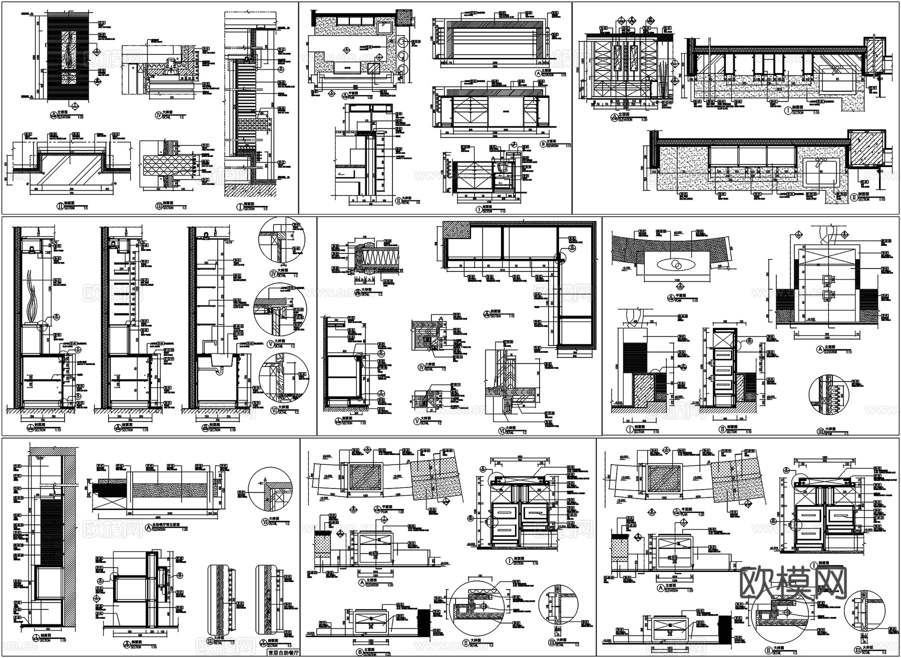
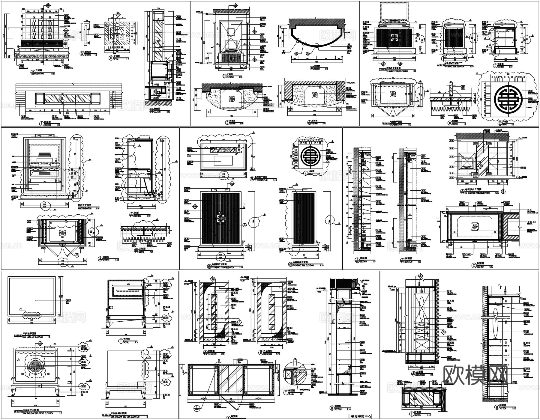
酒店柜子吧台服务台接待台客房柜电视柜节点大样图CAD素材图库cad施工图
ID:
5422639
酒店柜子吧台服务台接待台客房柜电视柜节点大样图CAD素材图库cad施工图 ID-5422639
所需欧币:
36
发布时间:
2026-03-02
下载请使用电脑登录欧模网,建议先收藏
收藏
分享
158****5924
关注
为您推荐
前台节点 接待台 吧台 服务台 CAD施工图cad施工图
驳岸自然堤岸节点大样图CAD素材图库cad施工图
柜子节点cad施工图
玻璃隔断玻璃门节点大样图CAD素材图库cad施工图
酒柜迷你吧台红酒柜剖面详图节点大样CAD素材图库cad施工图
吧台节点 前台接待台服务台 咨询台cad施工图
水吧台 石材吧台 酒吧吧台 吧台柜子 吧台节点cad施工图
天花吊顶剖面节点详图CAD素材图库cad施工图
天花吊顶剖面节点详图CAD素材图库cad施工图
工装节点大样图沙发卡座更衣柜剖面详图节点工艺图CAD素材图库cad施工图
前台节点吧台服务台接待台工作台cad施工图
天花吊顶平面剖面节点详图CAD素材图库cad施工图
天花吊顶平面剖面节点详图CAD素材图库cad施工图
天花吊顶平面剖面节点详图CAD素材图库cad施工图
玄关隔断节点 柜子cad施工图
天花吊顶平面剖面节点详图CAD素材图库cad施工图
玄关隔断节点 柜子cad施工图
天花吊顶平面剖面节点详图CAD素材图库cad施工图cad施工图
柜子节点 储藏柜 柜子类 现代柜子cad施工图
货架柜台柜子展台柜前台服务台吧台甜品面包柜台展柜CAD素材图cad施工图
点击加载更多
分享到
复制链接
保存海报
取消
请选择收藏夹
+新增收藏夹
新增收藏夹
取消
确认
退出查看