模型详情
1/3
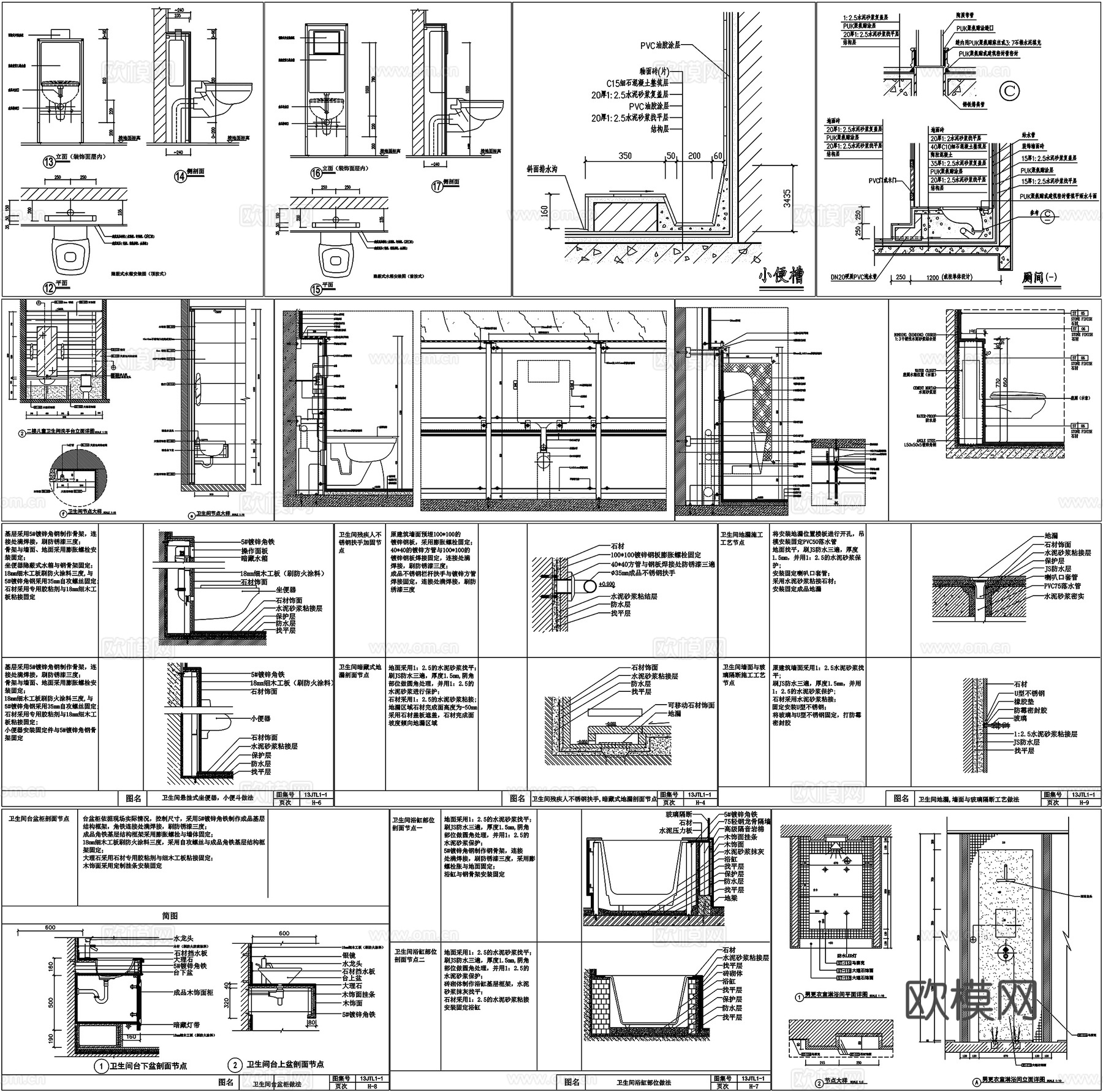
不锈钢地漏卫生间地漏坐便器小便斗浴缸洗手台盆详图节点CAD素cad施工图
ID:
5422658
不锈钢地漏卫生间地漏坐便器小便斗浴缸洗手台盆详图节点CAD素cad施工图 ID-5422658
所需欧币:
36
发布时间:
2026-03-03
下载请使用电脑登录欧模网,建议先收藏
收藏
分享
158****5924
关注
为您推荐
卫生间地面石材地漏节点cad施工图
干区地漏通用节点图cad施工图
隐形地漏(石材)节点cad施工图
工装节点图卫浴洗手台淋浴间卫生间小便斗浴缸剖面详图CAD素材cad施工图
卫浴洗手台浴缸大样卫生间详图立面剖面图节点大样CAD素材图库cad施工图
地面防水排水沟大样厕浴间浴缸防水卫生间地漏防水节点图CADcad施工图
通用节点地材墙身墙面天花大样水沟详图墙纸乳胶漆地漏工艺CADcad施工图
洗手台节点 洗手池洗手盆 卫生间节点 CAD施工图cad施工图
洗手台洗手池洗手盆浴缸大样镜子卫生间节点CADcad施工图
卫生间洗手池花洒浴缸马桶CAD图块图库cad施工图
排水沟地漏地坪地面墙面轻钢龙骨干挂石材壁纸详图节点CAD素材cad施工图
卫浴节点 镜子节点 台盆洗手盆节点 卫生间卫浴柜cad施工图
卫生间洗手台卫浴节点图台下盆剖面详图节点大样CAD素材图库cad施工图
屋檐节点 檐沟详图cad施工图
淋浴间玻璃门地面大样卫生间隔断浴缸剖面详图节点CAD素材图库cad施工图
柱子节点大样CAD施工详图cad施工图
详图屋面地面节点地毯地砖地板详图防水节点雨蓬详图CAD素材cad施工图
地漏排水沟地沟盖板详图暗沟明沟检查井雨水污水井工艺节点CADcad施工图
墙面节点大样CAD施工详图cad施工图
码头景观节点详图CAD施工图集cad施工图
点击加载更多
分享到
复制链接
保存海报
取消
请选择收藏夹
+新增收藏夹
新增收藏夹
取消
确认
退出查看