模型详情
1/4
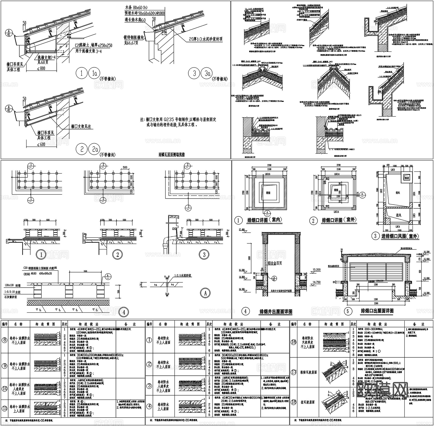
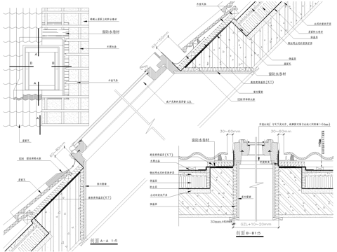
屋面彩钢板屋面构造屋顶做法剖面详图节点大样CAD素材图库cad施工图
ID:
5423476
屋面彩钢板屋面构造屋顶做法剖面详图节点大样CAD素材图库cad施工图 ID-5423476
所需欧币:
36
发布时间:
2026-03-03
下载请使用电脑登录欧模网,建议先收藏
收藏
分享
158****5924
关注
为您推荐
门详图房门推门剖面做法工艺详图节点CAD素材图库cad施工图
硬包软包壁纸墙纸涂料工艺做法剖面详图节点大样CAD素材图库cad施工图
门板房门剖面做法工艺详图节点CAD素材图库cad施工图
钛锌板屋面通用构造cad施工图
平开门详图房门推门剖面做法工艺详图节点CAD素材图库cad施工图
天花吊顶剖面节点详图CAD素材图库cad施工图
天花吊顶剖面节点详图CAD素材图库cad施工图
坡屋顶 斜屋面窗cad施工图
详图屋面地面节点地毯地砖地板详图防水节点雨蓬详图CAD素材cad施工图
外墙防水屋面防水露台防水女儿墙泛水剖面详图节点大样CAD素材cad施工图
天花吊顶平面剖面节点详图CAD素材图库cad施工图
天花吊顶平面剖面节点详图CAD素材图库cad施工图
天花吊顶平面剖面节点详图CAD素材图库cad施工图
天花吊顶平面剖面节点详图CAD素材图库cad施工图
天花吊顶平面剖面节点详图CAD素材图库cad施工图cad施工图
消防箱消火栓详图立面剖面节点CAD素材图库cad施工图
防火人防详图防火卷帘收口剖面详图节点CAD素材图库cad施工图
阳台栏杆空调机位阳台剖面详图节点大样CAD素材图库cad施工图
窗帘盒暗藏式天花吊顶剖面做法工艺详图节点CAD素材图库cad施工图
室外台阶无障碍坡道汽车坡道踏步做法剖面详图节点大样CAD素材cad施工图
点击加载更多
分享到
复制链接
保存海报
取消
请选择收藏夹
+新增收藏夹
新增收藏夹
取消
确认
退出查看