模型详情
1/5
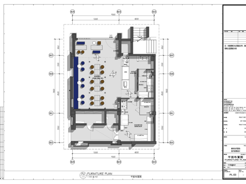
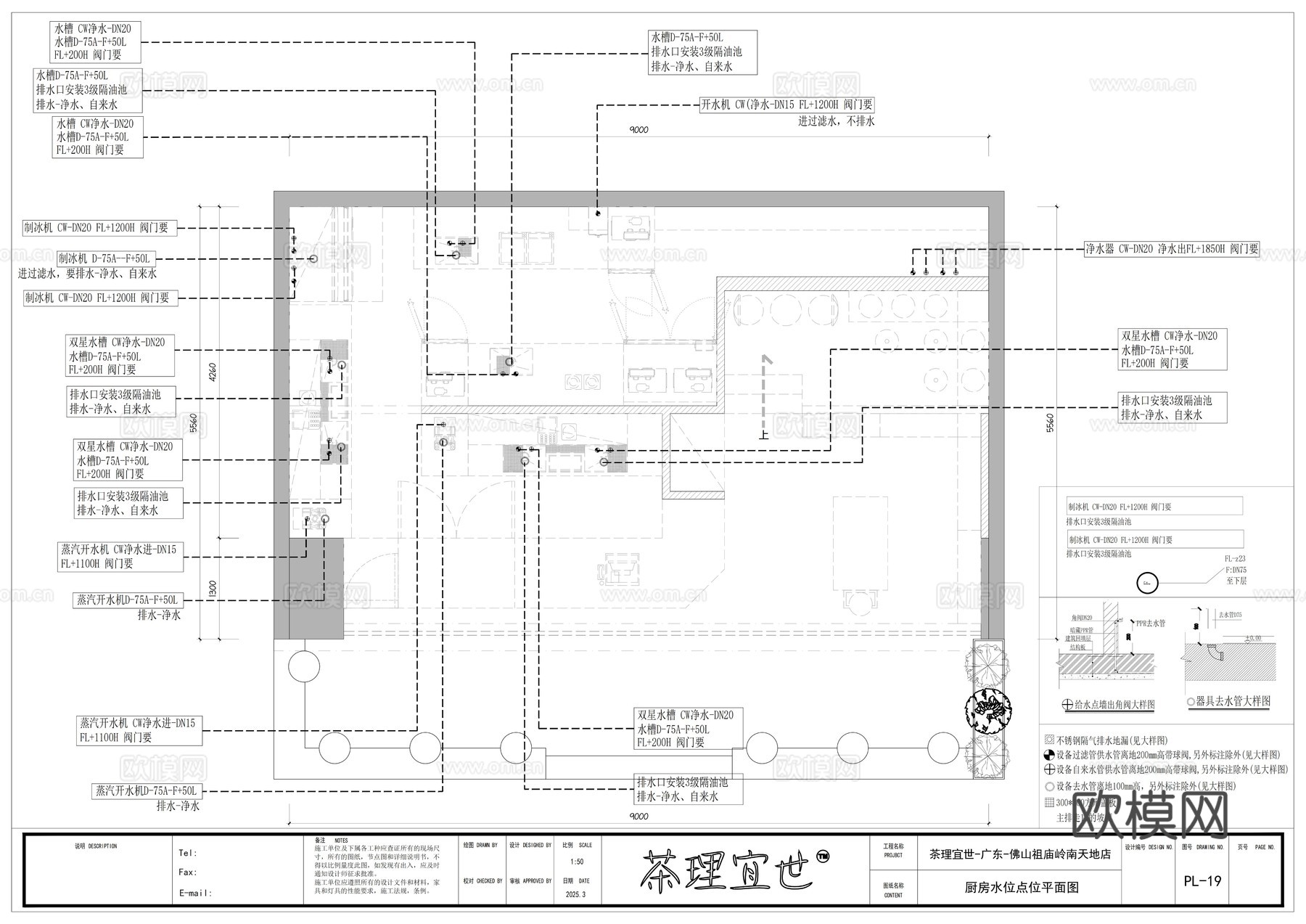
茶理宜世茶颜悦色奶茶咖啡店施工图cad施工图
ID:
5424081
茶理宜世茶颜悦色奶茶咖啡店施工图cad施工图 ID-5424081
所需欧币:
36
发布时间:
2026-03-05
下载请使用电脑登录欧模网,建议先收藏
收藏
分享
DYGFZH
关注
为您推荐
喜茶奈雪的茶霸王茶姬茶颜悦色奶茶咖啡店cad施工图
霸王茶姬奶茶咖啡店全套施工图cad施工图
奈雪的茶奶茶面包烘焙店cad施工图
COCO奶茶店喜茶奈雪的茶施工图100㎡cad施工图
布可无茶奶茶店室内工装CAD施工图cad施工图
暖心茶语奶茶店室内工装CAD施工图cad施工图
皇茶天下奶茶店室内工装CAD施工图cad施工图
现代霸王茶姬奶茶店喜茶奈雪的茶瑞幸咖啡库迪咖啡cad施工图
奈雪茶院喜茶KUMOKUMOcad施工图
潮州皇茶天下饮品奶茶店室内工装CAD施工图cad施工图
中山横栏皇茶玺店奶茶店室内工装CAD施工图cad施工图
海口京华店天下茶饮奶茶店室内工装CAD施工图cad施工图
中山南朗皇茶玺店奶茶店室内工装CAD施工图cad施工图
沙溪乐群皇茶玺店奶茶店室内工装CAD施工图cad施工图
揭阳仁港皇茶天下奶茶店室内工装CAD施工图cad施工图
折腾茶饮黑糖养生饮品奶茶店室内工装CAD施工图cad施工图
龙山购物广场皇茶天下奶茶店室内工装CAD施工图cad施工图
宜必思酒店cad施工图
赫沫法式甜品奶茶咖啡店cad施工图
奶茶店咖啡店设计CAD图库cad施工图
点击加载更多
分享到
复制链接
保存海报
取消
请选择收藏夹
+新增收藏夹
新增收藏夹
取消
确认
退出查看