模型详情
1/2
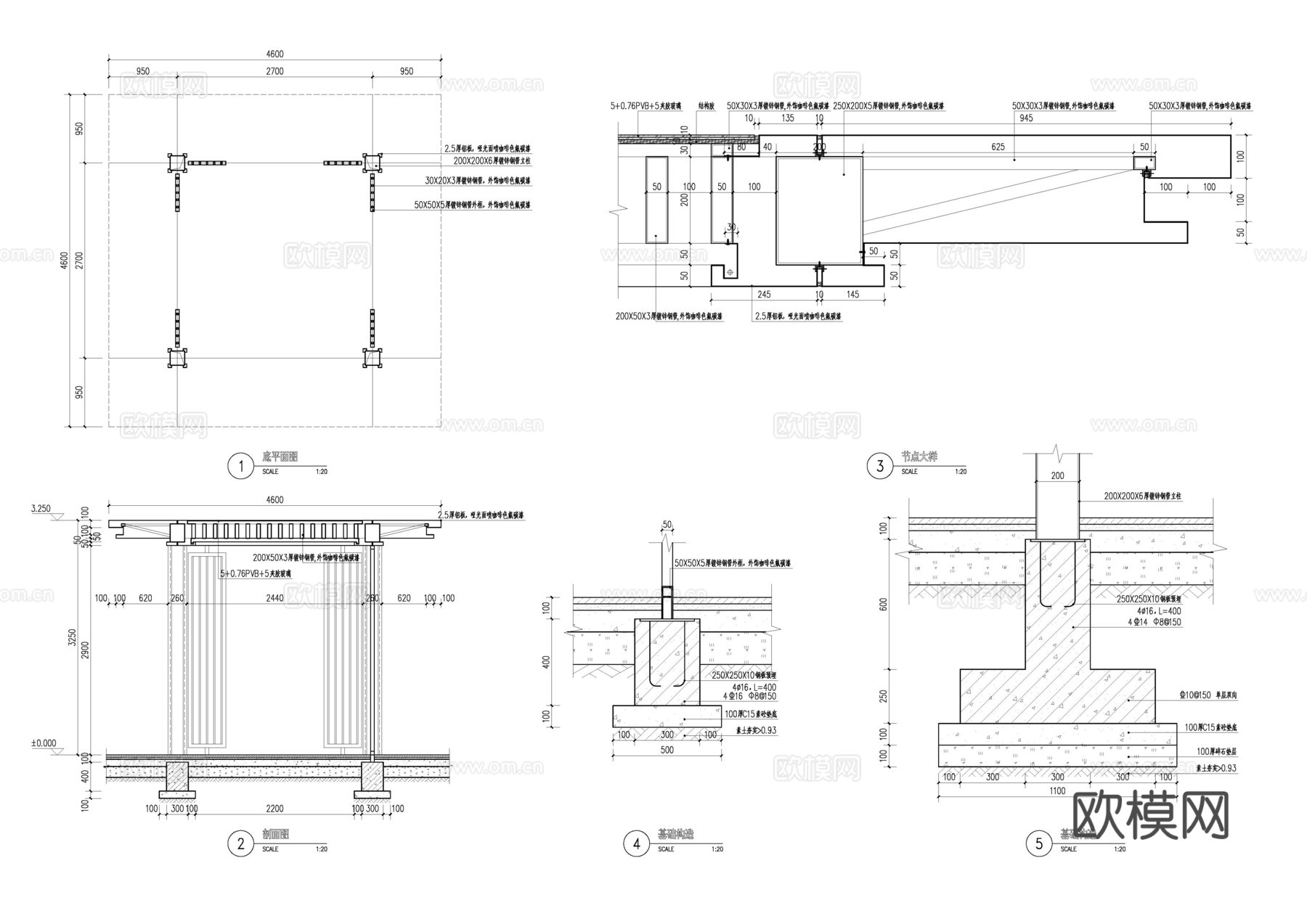
景观亭cad施工图
ID:
5424696
景观亭cad施工图 ID-5424696
所需欧币:
106
发布时间:
2026-03-05
下载请使用电脑登录欧模网,建议先收藏
收藏
分享
151****4964
关注
为您推荐
景观亭cad施工图
景观亭cad施工图
亭子 茅草亭 圆亭 木亭 景观亭 凉亭cad施工图
亭子 茅草亭 圆亭 木亭 景观亭 凉亭cad施工图
园林中式景观亭茅草亭方亭节点CAD施工图集 24套cad施工图cad施工图
亭子 茅草亭 圆亭 景观亭 凉亭 钢构架cad施工图
各式景观亭平面CAD图块cad施工图
四角亭 方亭 木亭 景观亭 凉亭cad施工图
茅草亭 四角亭 木亭 景观亭 凉亭cad施工图
茅草亭 圆亭 木亭 六角亭 景观亭cad施工图
景观半亭大样详图CAD施工图cad施工图
欧式新古典八角亭景观亭CAD施工图cad施工图
欧式亭子 圆亭 铁艺顶 景观亭 凉亭cad施工图
弧形亭 弯形凉亭 弧形廊亭 圆弧凉亭 弧形景观亭cad施工图
张拉膜亭景观结构CAD施工图cad施工图
张拉膜亭景观结构CAD施工图cad施工图
木构架休闲景观亭CAD施工详图cad施工图
玻璃亭景观大样CAD施工详图集cad施工图
新中式休闲景观亭凉亭格栅CAD施工图集cad施工图
现代异形景观亭廊架CAD施工图+SU模型cad施工图
点击加载更多
分享到
复制链接
保存海报
取消
请选择收藏夹
+新增收藏夹
新增收藏夹
取消
确认
退出查看