模型详情
1/2
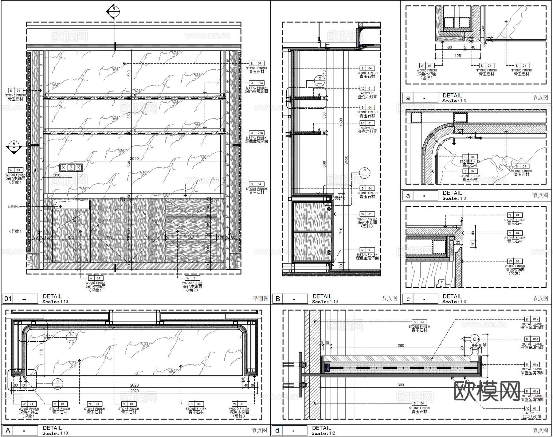
吧台区层板柜、水吧置物架、吧台背景墙柜子、开放式层板酒柜cad施工图
ID:
5432566
吧台区层板柜、水吧置物架、吧台背景墙柜子、开放式层板酒柜cad施工图 ID-5432566
所需欧币:
36
发布时间:
2026-03-11
下载请使用电脑登录欧模网,建议先收藏
收藏
分享
设计爱好姐
关注
为您推荐
层板柜 鞋柜 柜子节点 木饰面柜子cad施工图
衣柜节点 层板柜 玻璃衣柜 卧室柜子cad施工图
层板书柜 柜子大样图 敞开式书柜cad施工图
水吧台 石材吧台 酒吧吧台 吧台柜子 吧台节点cad施工图
层板柜 装饰柜 柜体节点图 转角柜cad施工图
玄关隔断节点 柜子置物架cad施工图
墙面节点 现代火炉 壁炉墙体 内嵌层板架cad施工图
柜子 酒柜 酒架 货架 柜台cad施工图
吧柜 石材吧台 水吧台 吧台平面立面图 吧台节点cad施工图cad施工图
别墅品酒区水吧台、吧台玻璃柜节点、吧台内嵌红酒柜、复古轻奢吧cad施工图
柜子节点 储藏柜 柜子类 现代柜子cad施工图
室内柜子衣柜鞋柜书柜酒柜家具图块CAD施工图集cad施工图
柜子节点cad施工图
柜子平面立面图 储物间柜子 简易柜子 柜子节点cad施工图
休息区水吧台 长方形吧台 石材吧台 吧台节点cad施工图
酒柜迷你吧台红酒柜剖面详图节点大样CAD素材图库cad施工图
衣柜 酒柜 CAD施工图cad施工图
定制柜 柜子节点 现代健身房柜子 储物柜cad施工图
柜子节点 简易柜子 敞开式衣柜 储物柜cad施工图
玄关隔断节点 柜子cad施工图
点击加载更多
分享到
复制链接
保存海报
取消
请选择收藏夹
+新增收藏夹
新增收藏夹
取消
确认
退出查看