模型详情
1/1
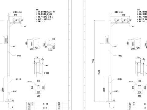
监控立杆 摄像立杆 监控支架 摄像头立杆 安防监控杆cad施工图
ID:
5433466
监控立杆 摄像立杆 监控支架 摄像头立杆 安防监控杆cad施工图 ID-5433466
所需欧币:
36
发布时间:
2026-03-12
下载请使用电脑登录欧模网,建议先收藏
收藏
分享
海量CAD素材库
关注
为您推荐
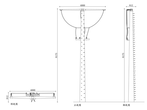
摄像头避雷针立杆大样CAD施工图cad施工图
摄像头枪机立杆节点大样CAD施工图cad施工图
铁艺栏杆 栏杆扶手cad施工图
水泥杆 电力杆 电线杆子 输电杆 线路电杆cad施工图
栏杆cad施工图
栏杆cad施工图
铁艺围墙护栏庭院围墙玻璃栏杆景观栏杆栈道栏杆素材CAD图库cad施工图
栏板 石栏杆 木栏杆 CAD施工图cad施工图
景观天桥 栈桥 栈道 铁艺栏杆 栏杆扶手cad施工图
铁艺栏杆cad施工图
玻璃栏杆cad施工图
铁艺栏杆cad施工图
中式栏杆_仿木栏杆_栏杆扶手_不锈钢扶手_镀锌方钢_楼梯栏杆cad施工图
升旗台 旗杆节点 基座基础旗杆顶cad施工图
落地灯 立式灯 立地灯 客厅立灯 书房立灯cad施工图
主卫立剖面CAD施工图cad施工图
木栏杆cad施工图
镀锌钢管不锈钢栏杆 木扶手 铁艺栏杆cad施工图
意大利Poliform图册+CAD平立侧CAD图库cad施工图
道闸车检器抓拍机 监控系统CAD 校园视频监控拓扑图cad施工图
点击加载更多
分享到
复制链接
保存海报
取消
请选择收藏夹
+新增收藏夹
新增收藏夹
取消
确认
退出查看