模型详情
1/4
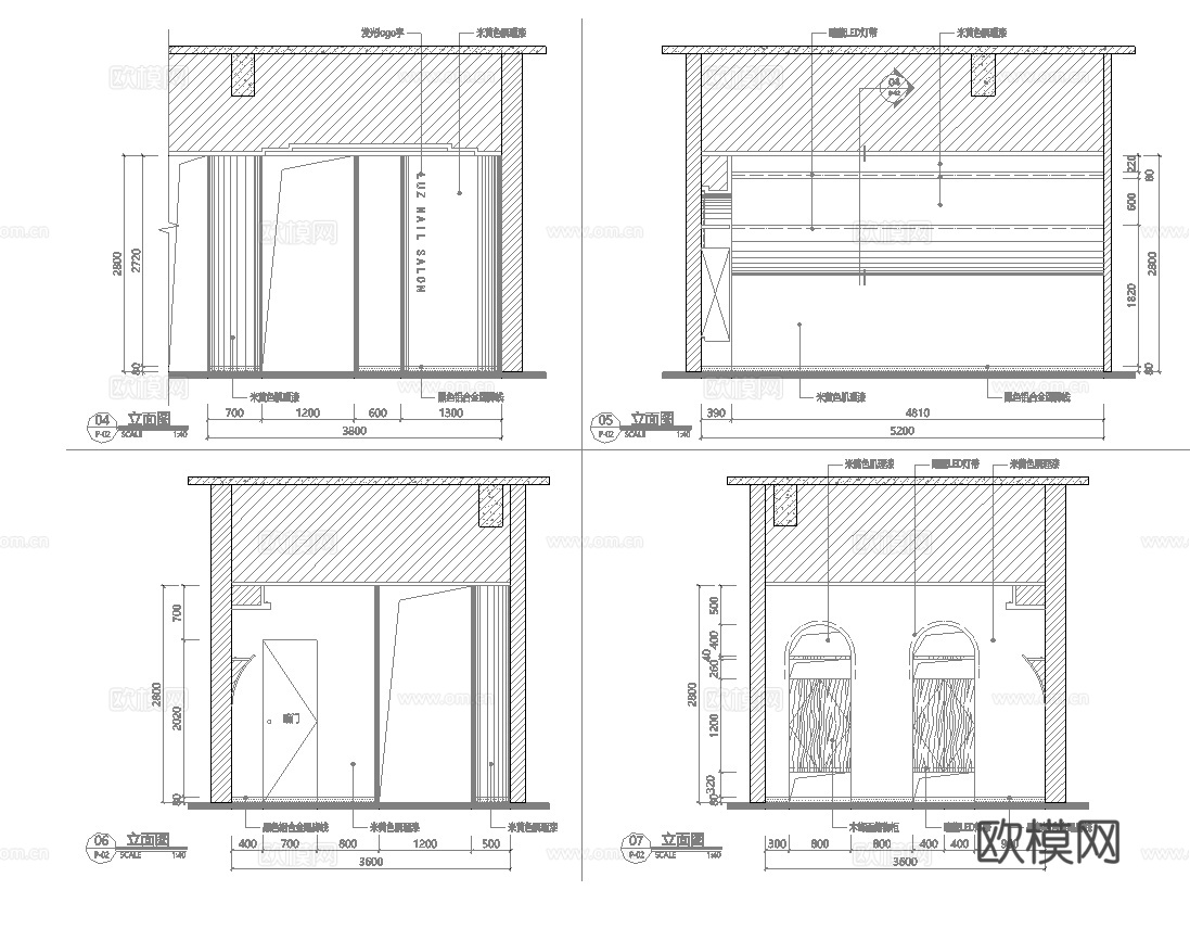
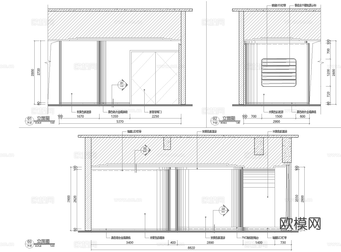
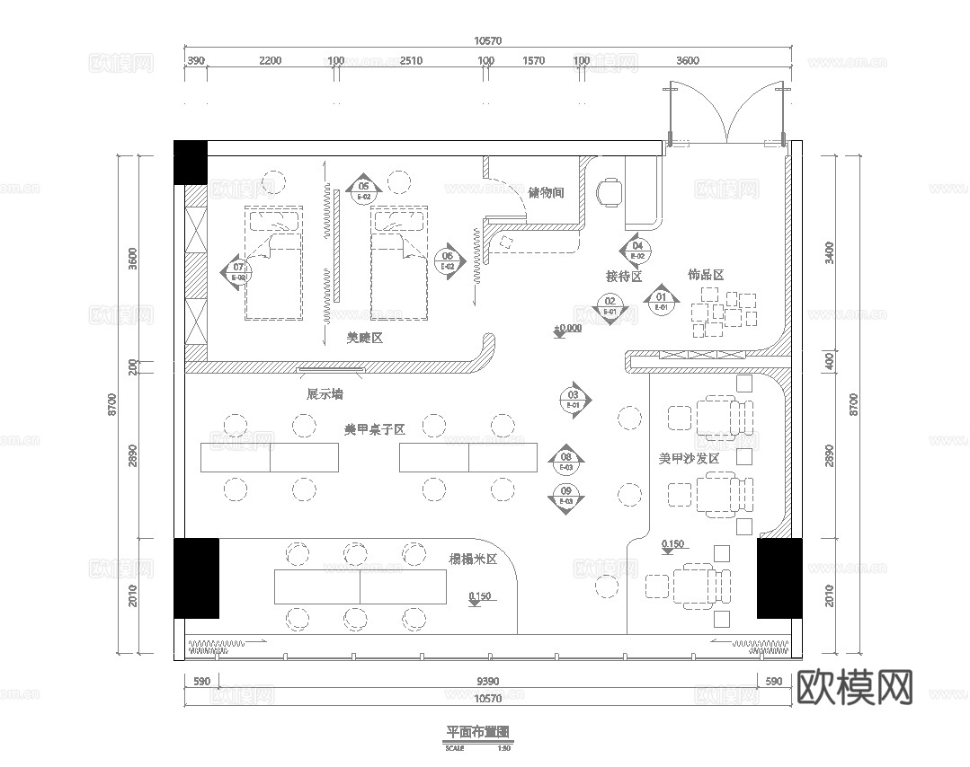
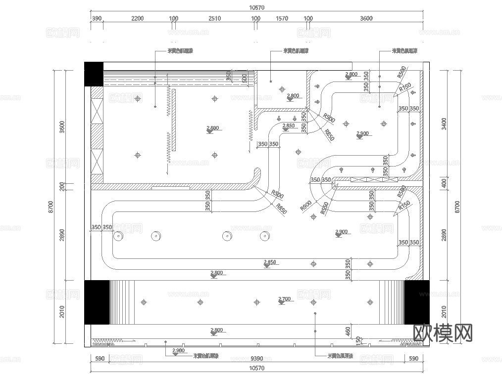
美甲美瞳 美容店 最新全套 施工图 效果图合集cad施工图
ID:
5434300
美甲美瞳 美容店 最新全套 施工图 效果图合集cad施工图 ID-5434300
所需欧币:
86
发布时间:
2026-03-13
下载请使用电脑登录欧模网,建议先收藏
收藏
分享
微笑丶纯属礼貌
关注
为您推荐
高档美发美甲美瞳 美容店 最新全套 施工图 效果图合集cad施工图
美甲美瞳店 最新全套 施工图 效果图合集cad施工图
高档美甲美瞳 美容店 最新平面施工图设计cad施工图
高档美甲美瞳 美容店 最新平面施工图设计cad施工图
高档美甲美瞳 美容店 最新平面施工图设计cad施工图
高档美甲美瞳 美容店 最新平面施工图设计cad施工图
高档美甲美瞳 美容店 最新平面施工图设计cad施工图
高档美发美甲美瞳 美容店 最新平面施工图设计cad施工图
美甲店 美容店 最新全套 施工图 效果图合集cad施工图
美甲店 美容店 最新全套 施工图 效果图合集cad施工图
美甲店 美容店 最新全套 施工图 效果图合集cad施工图
美甲店 美容店 最新全套 施工图 效果图合集cad施工图
美甲店 美容店 最新全套 施工图 效果图合集cad施工图
高档美容美甲 最新全套施工图 效果图合集cad施工图
8套高档美容美甲 最新全套施工图 效果图合集cad施工图
6套高档美容美甲 最新全套施工图 效果图合集cad施工图
13套美甲店美睫店纹绣店美容店CAD施工图最新整理合集cad施工图
6套高档美容美甲店 最新全套施工图 效果图合集cad施工图
医院 最新全套施工图合集cad施工图
医院 最新全套施工图合集cad施工图
点击加载更多
分享到
复制链接
保存海报
取消
请选择收藏夹
+新增收藏夹
新增收藏夹
取消
确认
退出查看