模型详情
1/2
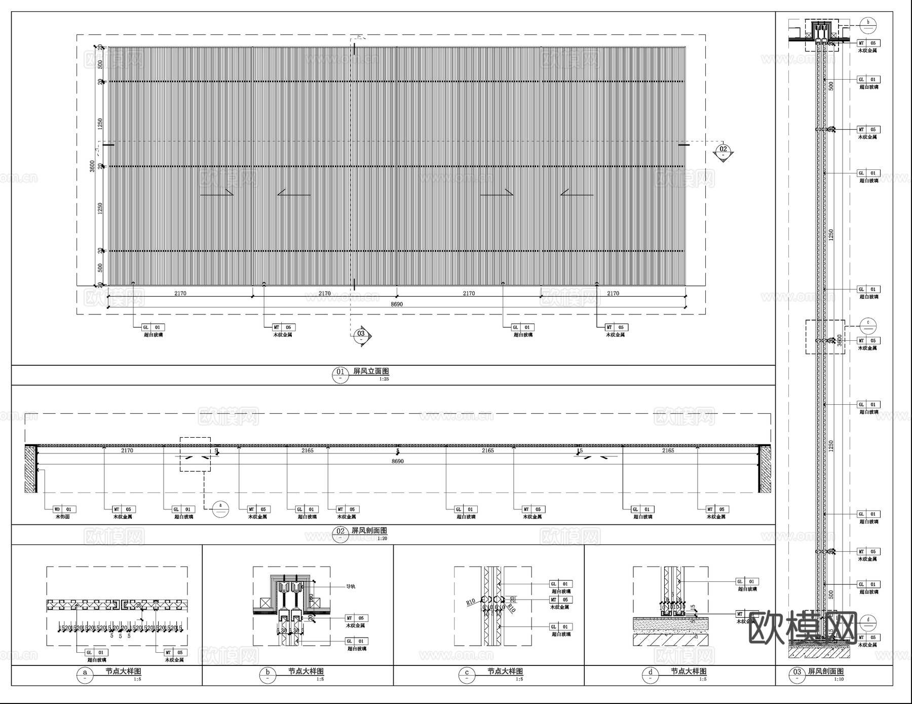
木纹金属屏风 玻璃隔断 屏风节点 屏风cad施工图
ID:
5434768
木纹金属屏风 玻璃隔断 屏风节点 屏风cad施工图 ID-5434768
所需欧币:
36
发布时间:
2026-03-14
下载请使用电脑登录欧模网,建议先收藏
收藏
分享
妮子1973
关注
为您推荐
玻璃屏风 屏风隔断 屏风节点 直排屏风cad施工图
金属玻璃屏风隔断、U型屏风隔断、透光玻璃隔断屏风、餐厅隔断屏cad施工图
金属屏风详图、隔断屏风节点、不锈钢屏风、金属镂空屏风cad施工图
中式玄关屏风隔断节点cad施工图
金属屏风详图、不锈钢屏风大样、黄铜镂空屏风、隔断屏风、屏风cad施工图
发光玻璃隔断屏风室内节点CAD施工图集 10套cad施工图
新中式玄关隔断节点 桌子屏风cad施工图
木作屏风隔断节点大样CAD施工详图cad施工图
木格栅屏风 格栅隔断 木格栅装饰 格栅节点cad施工图
钢化玻璃屏风 CAD施工图cad施工图
双层金属镂空屏风、金属屏风镂空花格、超高金属艺术屏风、不锈钢cad施工图
中式门窗屏风雕花隔断装饰图块CAD施工图集cad施工图
中式 屏风隔断 花格门窗 纹样图案 CAD施工图cad施工图
中式镂空花格格栅雕花屏风隔断CAD图库cad施工图
中式古典屏风插屏挂匾构造CAD施工图cad施工图
中式隔断格栅门窗雕花屏风图块图库CAD施工图cad施工图
中式 木格窗 花窗 屏风隔断 栏杆围挡 纹样图案 CADcad施工图
玄关隔断节点cad施工图
玻璃隔断玻璃门节点大样图CAD素材图库cad施工图
小便斗处夹丝玻璃隔断节点cad施工图
点击加载更多
分享到
复制链接
保存海报
取消
请选择收藏夹
+新增收藏夹
新增收藏夹
取消
确认
退出查看