模型详情
1/1
三轨窗户 三轨推拉窗 三轨道窗 三轨玻璃窗 三轨推拉窗口cad施工图
ID:
5444267
三轨窗户 三轨推拉窗 三轨道窗 三轨玻璃窗 三轨推拉窗口cad施工图 ID-5444267
所需欧币:
36
发布时间:
2026-03-16
下载请使用电脑登录欧模网,建议先收藏
收藏
分享
海量CAD素材库
关注
为您推荐
载货三轮车 农用三轮车 快递三轮车 三轮货车 机动三轮车cad施工图
三轮车停靠点 三轮车候车点 三轮车站点 三轮车等候区cad施工图
谷仓门 滑动门 吊轨谷仓门 移门谷仓门 轨道谷仓门cad施工图
两厅三套间一单间三层别墅建筑CAD施工图cad施工图
意大利Baxter三视图cad图库cad施工图
徽派三层别墅建筑CAD施工图cad施工图
徽派三层别墅建筑CAD施工图cad施工图
三层别墅建筑平面CAD施工图cad施工图
2026年最新窗户CAD图库CAD推拉窗CAD飘窗CAD折叠cad施工图
欧式家具平立面三视图CAD图库cad施工图
三层茶叶店平面方案cad施工图
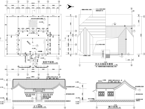
仿古建筑 三合院cad施工图
窗户推拉窗平开窗落地窗铝合金窗CAD素材图库cad施工图
三套历史革命展厅平面图cad施工图
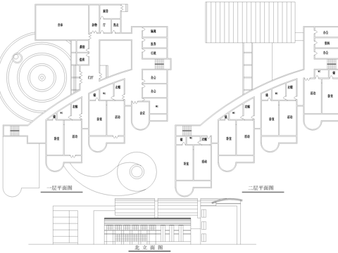
三层政府办公大楼建筑cad施工图
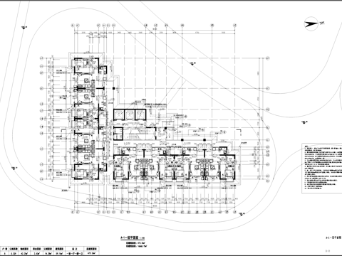
三梯八户高层居住建筑CAD施工图cad施工图
三层别墅室内家装CAD施工图cad施工图
三层框架厂房工业建筑CAD施工图cad施工图
幼儿园建筑 三层托儿所cad施工图
现代三层幼儿园建筑CAD施工图整套cad施工图
点击加载更多
分享到
复制链接
保存海报
取消
请选择收藏夹
+新增收藏夹
新增收藏夹
取消
确认
退出查看