模型详情
1/8
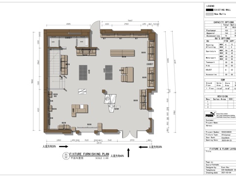
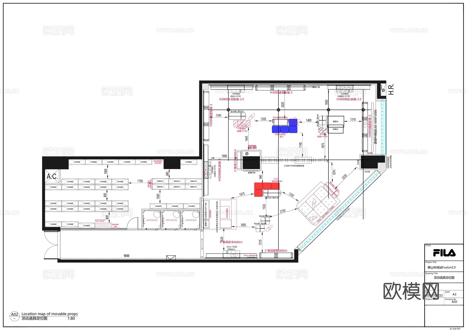
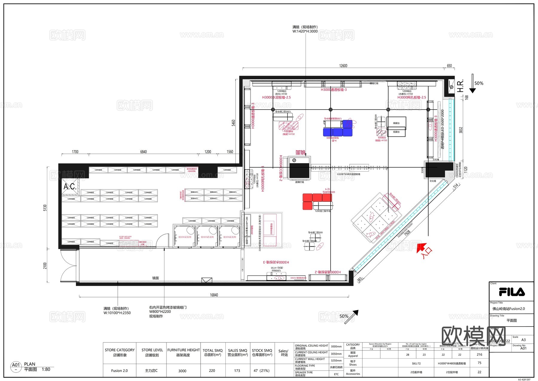
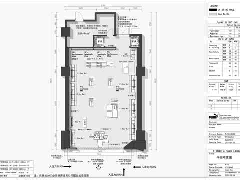
FLIA斐乐阿迪达斯耐克运动鞋服装佛山岭南站cad施工图
ID:
5445419
FLIA斐乐阿迪达斯耐克运动鞋服装佛山岭南站cad施工图 ID-5445419
所需欧币:
36
发布时间:
2026-03-16
下载请使用电脑登录欧模网,建议先收藏
收藏
分享
DYGFZH
关注
为您推荐
大快活大家乐快餐店佛山岭南站cad施工图
Vans万斯李宁361安踏斐乐运动鞋运动服装专卖店cad施工图
FILA斐乐鞋子专卖店cad施工图
KUMO KUMO-奶茶咖啡店佛山NOVA岭南站店cad施工图
海马体照相馆佛山岭南站店施工图cad施工图
Adidas阿迪达斯品牌服装专卖店cad施工图
PUMA彪马运动鞋类服装配饰专卖店cad施工图
PUMA彪马运动鞋类服装配饰专卖店cad施工图
喜茶佛山岭南天地全套施工图cad施工图
lululemon露露乐蒙运动服饰服装店平面布置图cad施工图
周大福佛山nova荟馆珠宝金子店cad施工图
敲击乐器 节奏乐器 打击乐 击打乐器 敲击乐cad施工图
喜茶茶坊-佛山岭南天地店平面方案cad施工图
乐汇城中国黄金室内工装CAD施工图cad施工图
农家乐民宿建筑 最新全套施工图设计cad施工图
服装店 鞋店 CADcad施工图
杭州现代新湖果岭2-3101复式挑空室内家装CAD施工图整套cad施工图
服装店衣架挂衣杆大样详图CAD施工图cad施工图cad施工图
服装专卖店设计施工图cad施工图
服装专卖店设计施工图cad施工图
点击加载更多
分享到
复制链接
保存海报
取消
请选择收藏夹
+新增收藏夹
新增收藏夹
取消
确认
退出查看