模型详情
1/3
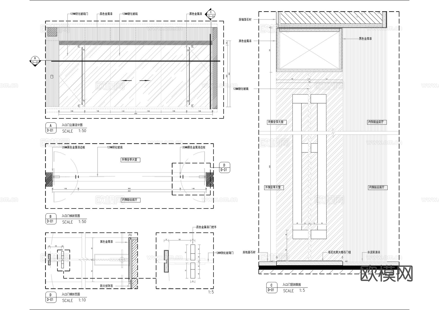
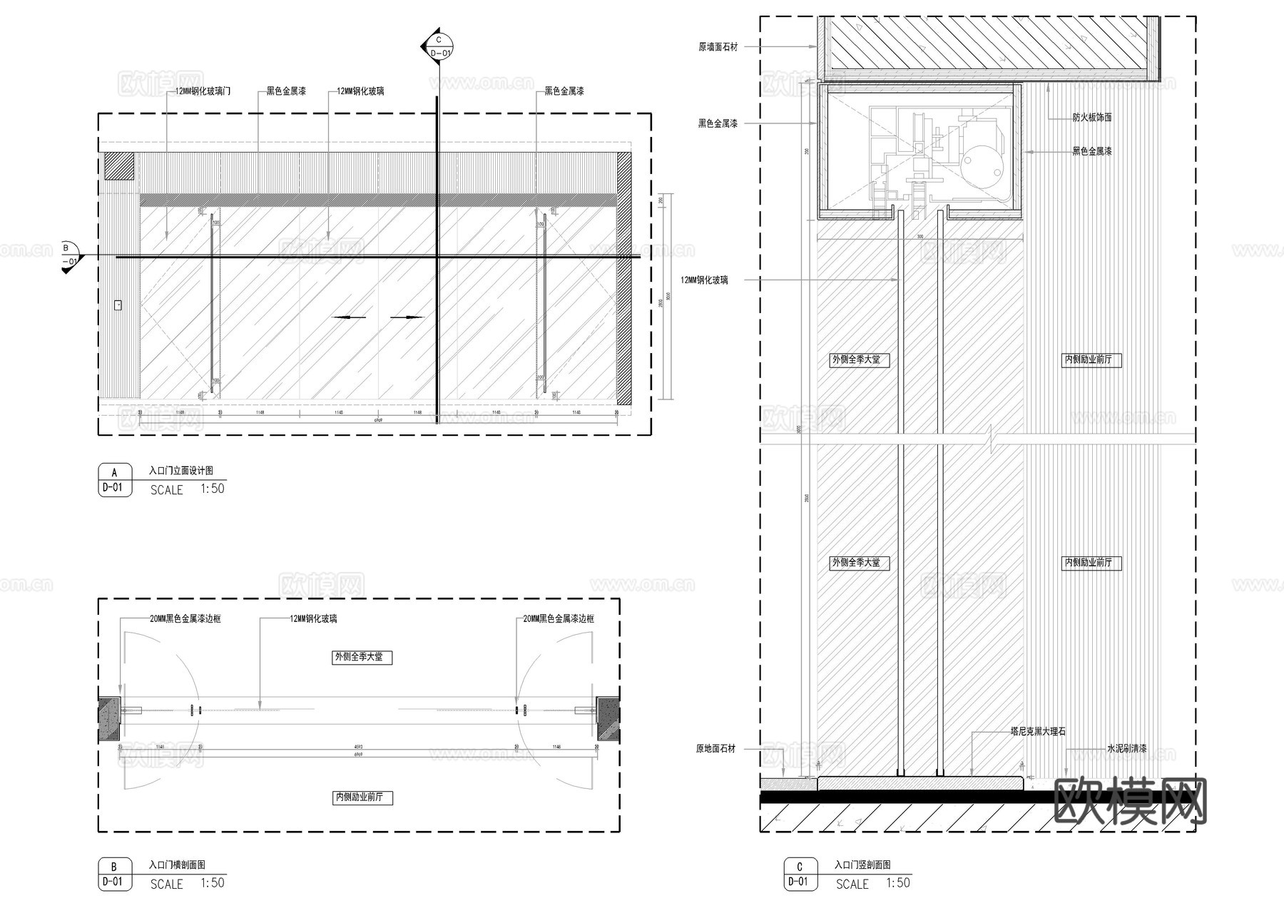
自动玻璃门节点大样图cad施工图
ID:
5449583
自动玻璃门节点大样图cad施工图 ID-5449583
所需欧币:
36
发布时间:
2026-03-17
下载请使用电脑登录欧模网,建议先收藏
收藏
分享
疾风之剑
关注
为您推荐
办公双开玻璃门节点大样图cad施工图
玻璃隔断玻璃门节点大样图CAD素材图库cad施工图
金属框玻璃门节点大样图cad施工图
电动门玻璃门节点大样图cad施工图
卫生间玻璃门 门节点 单开玻璃门节点 玻璃门cad施工图
不锈钢玻璃门节点CAD施工图cad施工图
卫生间玻璃门节点cad施工图
玻璃门 格栅门 推拉门 门大样图 门节点cad施工图
门立面节点大样图库cad施工图
梯级坐凳节点大样图cad施工图
高架地板节点大样图cad施工图
玻璃门节点 健身房玻璃门 双开玻璃门cad施工图
自动喷灌系统灌溉系统给排水节点CAD施工图集 18套cad施工图
成品门隔断节点大样图cad施工图
咖啡吧台节点大样图cad施工图
软包卡座节点大样图cad施工图
门竖剖节点大样图cad施工图
长虹玻璃门 推拉玻璃门 玻璃移门 门节点cad施工图
长虹玻璃门 推拉门 厨房玻璃门 门节点cad施工图
驳岸自然堤岸节点大样图CAD素材图库cad施工图
点击加载更多
分享到
复制链接
保存海报
取消
请选择收藏夹
+新增收藏夹
新增收藏夹
取消
确认
退出查看