模型详情
1/2
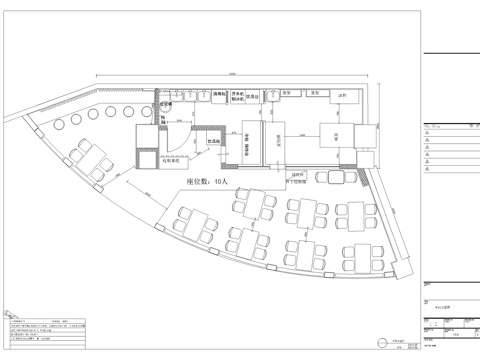
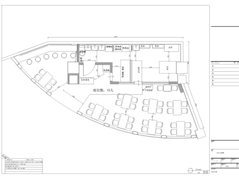
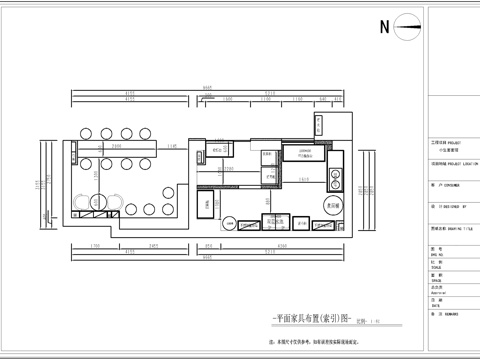
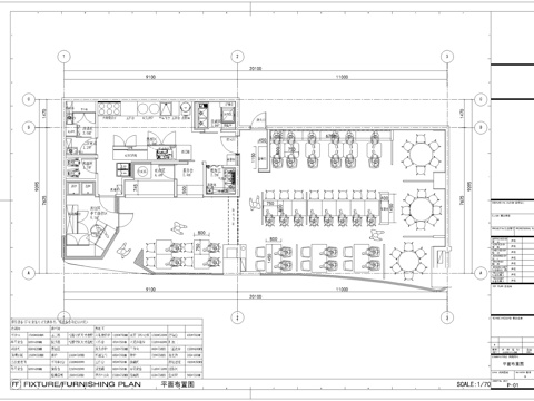
环卫所 垃圾站 办公大楼最新全套施工图cad施工图
ID:
5469736
环卫所 垃圾站 办公大楼最新全套施工图cad施工图 ID-5469736
所需欧币:
36
发布时间:
2026-03-17
下载请使用电脑登录欧模网,建议先收藏
收藏
分享
om_aEIWI9
关注
为您推荐
集团办公大楼 最新全套施工图 效果图合集cad施工图
民宿 最新全套施工图设计cad施工图
面馆 最新全套施工图cad施工图
医院 最新全套施工图合集cad施工图
医院 最新全套施工图合集cad施工图
面馆 最新全套施工图cad施工图
面馆 最新全套施工图cad施工图
酒吧 最新全套施工图设计cad施工图
肯德基 最新全套施工图设计cad施工图
高档会所 最新全套施工图设计cad施工图
面馆 最新全套施工图合集cad施工图
面馆 最新全套施工图合集cad施工图
面馆 最新全套施工图合集cad施工图
面馆 最新全套施工图合集cad施工图
小面馆 最新全套施工图cad施工图
健身会所 最新全套施工图合集cad施工图
健身会所 最新全套施工图合集cad施工图
美容院 最新全套施工图设计cad施工图
复古酒吧 最新全套施工图设计cad施工图
复古酒吧 最新全套施工图设计cad施工图
点击加载更多
分享到
复制链接
保存海报
取消
请选择收藏夹
+新增收藏夹
新增收藏夹
取消
确认
退出查看