模型详情
1/1
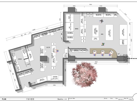
面包店 蛋糕店 烘焙店 甜品店 奶茶店 咖啡店cad施工图
ID:
5538237
面包店 蛋糕店 烘焙店 甜品店 奶茶店 咖啡店cad施工图 ID-5538237
所需欧币:
86
发布时间:
2026-03-30
下载请使用电脑登录欧模网,建议先收藏
收藏
分享
T_T
关注
为您推荐
蛋糕店 烘焙店 西饼店 甜品店 面包店 糕点店 西点店 餐厅cad施工图
蛋糕店 烘焙店 西饼店 甜品店 面包店 糕点店 西点店 餐厅cad施工图
32套蛋糕店面包店烘焙店CAD图纸cad施工图
8套现代甜品店现代奶茶店现代咖啡店现代糕点店cad施工图
奶茶店咖啡店设计CAD图库cad施工图
蛋糕店甜品店室内装饰平面CAD施工图cad施工图
13套糖水铺奶茶店甜品店咖啡店CAD施工图附效果图cad施工图
9套面包店 蛋糕店 最新全套 施工图合集cad施工图
9套面包店 蛋糕店 最新全套 施工图合集cad施工图
面包店平面图 甜品烘焙坊 咖啡厅cad施工图
2套甜品店 蛋糕店 最新全套 效果图 施工图设计cad施工图
12套面包店 蛋糕店 最新全套 施工图 效果图合集cad施工图
215㎡烘焙面包甜品饮品咖啡店平面布置图cad施工图
奶茶店 咖啡厅 甜品店 咖啡馆 饮品店 餐厅家具cad施工图
最新7套咖啡店奶茶店全套 效果图 施工图设计cad施工图
最新10套咖啡店奶茶店全套 效果图 施工图设计cad施工图
去茶山奶茶面包烘焙店cad施工图
好利来面包烘焙店cad施工图
最新6套咖啡店奶茶店全套 效果图 施工图设计cad施工图
9套现代风格西饼店蛋糕店面包店施工图效果图最新整理合集cad施工图
点击加载更多
分享到
复制链接
保存海报
取消
请选择收藏夹
+新增收藏夹
新增收藏夹
取消
确认
退出查看