模型详情
1/8
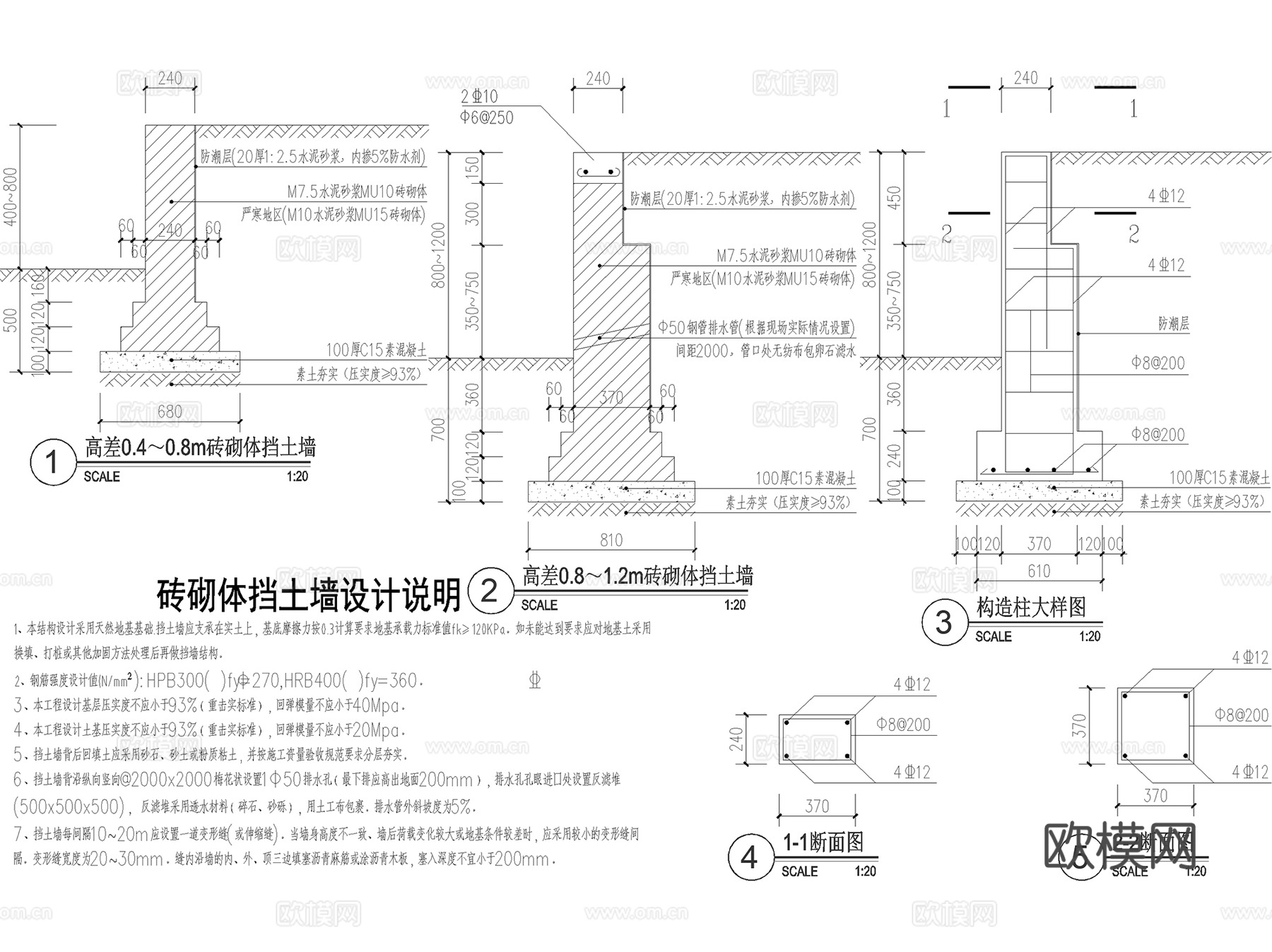
毛石砖砌体钢混挡土墙俯斜式重力式直立式悬臂式矮墙景墙节点cad施工图
ID:
5560269
毛石砖砌体钢混挡土墙俯斜式重力式直立式悬臂式矮墙景墙节点cad施工图 ID-5560269
所需欧币:
36
发布时间:
2026-04-09
下载请使用电脑登录欧模网,建议先收藏
收藏
分享
皮肤干燥
关注
为您推荐
毛石挡土墙 矮墙 毛石景墙cad施工图
点式景观绿化节点CAD施工图集cad施工图
叠落式台阶道路景观节点CAD施工图cad施工图
砖砌体结构砖墙cad施工图
壁挂架 悬空架 吊式架 挂墙架 悬式置物架cad施工图
玻璃雨棚 悬臂式框雨篷 钢结构雨棚 遮阳棚cad施工图
砖砌体结构砖墙cad施工图
美丽乡村景墙矮墙景观节点大样CAD施工图集 20套cad施工图
新中式乡村矮墙青砖景墙文化格栅瓦片景墙cad施工图
挡土墙节点CAD施工图cad施工图
毛石墙 石材景墙 柏坡黄碎拼景墙 文化景墙 干挂景墙 挡土墙cad施工图
下沉式广场平剖面cad施工图
大型厢式货车 全厢式货车 大厢货车 重型厢式货车cad施工图
金螳螂欧式罗马柱式节点工艺做法CAD施工图集cad施工图
轨道灯节点嵌入式格栅轨道射灯CADcad施工图cad施工图
新中式乡村民俗矮墙围墙 青砖文化景墙cad施工图
建筑柱子柱式装饰详图CAD施工图cad施工图
嵌入式LED线性灯CADcad施工图
乡村民俗景墙矮墙座凳雕塑景观小品节点CAD施工图集 20套cad施工图
logo景墙入口标识牌矮墙立体字节点CAD施工图集 17套cad施工图
点击加载更多
分享到
复制链接
保存海报
取消
请选择收藏夹
+新增收藏夹
新增收藏夹
取消
确认
退出查看