模型详情
1/2
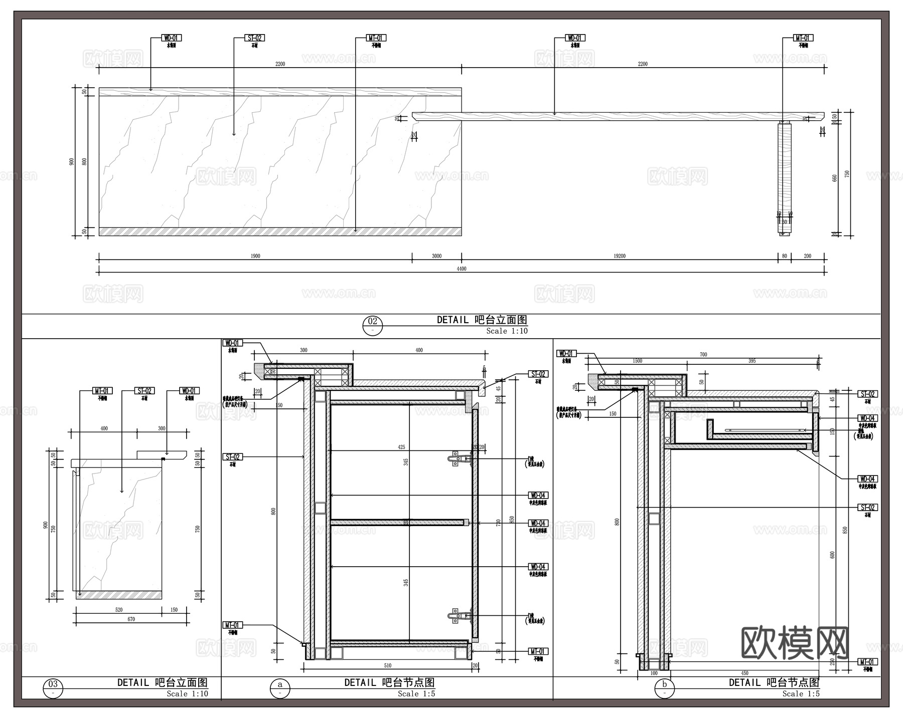
吧台节点 吧台 厨房岛台 水吧台cad施工图
ID:
5569719
吧台节点 吧台 厨房岛台 水吧台cad施工图 ID-5569719
所需欧币:
36
发布时间:
2026-04-17
下载请使用电脑登录欧模网,建议先收藏
收藏
分享
妮子1973
关注
为您推荐
水吧台 石材吧台 酒吧吧台 吧台柜子 吧台节点cad施工图
高脚吧台 吧台柜台 高吧台 立式吧台 柜台吧台cad施工图
水吧台 休闲区吧台 水吧台节点 茶水区cad施工图
法式吧台节点详图cad施工图
2026年最新吧台服务台水吧台CAD图库cad施工图
前台节点 接待台 吧台 服务台 CAD施工图cad施工图
吧台cad施工图
前台节点吧台服务台接待台工作台cad施工图
吧台节点 前台接待台服务台 咨询台cad施工图
别墅品酒区水吧台、吧台玻璃柜节点、吧台内嵌红酒柜、复古轻奢吧cad施工图
样板间吧台平面立面节点.cad施工图
实木吧台 实木酒柜台 实木调酒台 实木吧台桌 实木休闲吧台cad施工图
咖啡吧台节点大样图cad施工图
收银台 迎宾台 接待台 吧台 服务桌cad施工图
茶桌茶台吧台西厨岛台麻将桌象棋桌围棋桌餐桌岛台素材CAD图库cad施工图
23套前台接待台吧台CAD节点大样施工图最新整理合集cad施工图
室内吧台茶桌厨房中岛台图块图库详图CAD施工图集 6套cad施工图
样板间岛台节点cad施工图
迷你吧台盆柜自助餐台接待台洗手台剖面详图节点大样CAD素材图cad施工图
收银台椅 吧台凳 前台凳 收银凳 服务台凳cad施工图
点击加载更多
分享到
复制链接
保存海报
取消
请选择收藏夹
+新增收藏夹
新增收藏夹
取消
确认
退出查看