模型详情
1/1
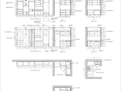
衣柜 室内储物柜 衣橱 卧室家具 服装柜cad施工图
ID:
3970375
衣柜 室内储物柜 衣橱 卧室家具 服装柜cad施工图 ID-3970375
所需欧币:
36
发布时间:
2025-02-11
下载请使用电脑登录欧模网,建议先收藏
收藏
分享
海量CAD素材库
关注
为您推荐
衣柜服装CAD图块cad施工图
多种衣柜服装CAD图库cad施工图
北京Fimes衣柜展厅室内工装CAD施工图cad施工图
衣柜子 储藏柜cad施工图
室内柜子衣柜酒柜电视柜鞋柜CAD施工图集 16套cad施工图
柜子立面图 卧室衣柜 玻璃衣柜 柜子节点图cad施工图
卧室衣柜 双开门衣柜 现代轻奢衣柜 柜子节点图 平立面图cad施工图
卧室衣柜 定制衣柜 柜子立面图 玻璃柜子cad施工图
卧室玻璃衣柜详图、衣柜玻璃门详图、固装衣柜深化图纸、衣帽间玻cad施工图
卧室衣柜 推拉玻璃门衣柜 小吧台柜子 柜子节点图cad施工图
定制橱柜衣柜拆单安装图cad施工图
全屋定制衣柜 卧室衣柜 水吧台柜子 柜子节点图cad施工图
免把手定制衣柜CAD拆单图cad施工图
全屋定制衣柜 现代轻奢衣柜 柜子平立面图 柜子节点图cad施工图
衣柜鞋柜书柜酒柜橱柜各种柜类详图CAD施工图集cad施工图
全屋定制衣柜拆单施工图cad施工图
衣柜 书柜 装饰柜 窗帘 动态图块cad施工图
PASQUIER柏诗姬专柜服装店室内工装CAD施工图cad施工图
2025全屋定制衣柜厨柜拆单图cad施工图
2025年全屋定制免把手衣柜橱柜施工图cad施工图
点击加载更多
分享到
复制链接
保存海报
取消
请选择收藏夹
+新增收藏夹
新增收藏夹
取消
确认
退出查看