模型详情
1/4
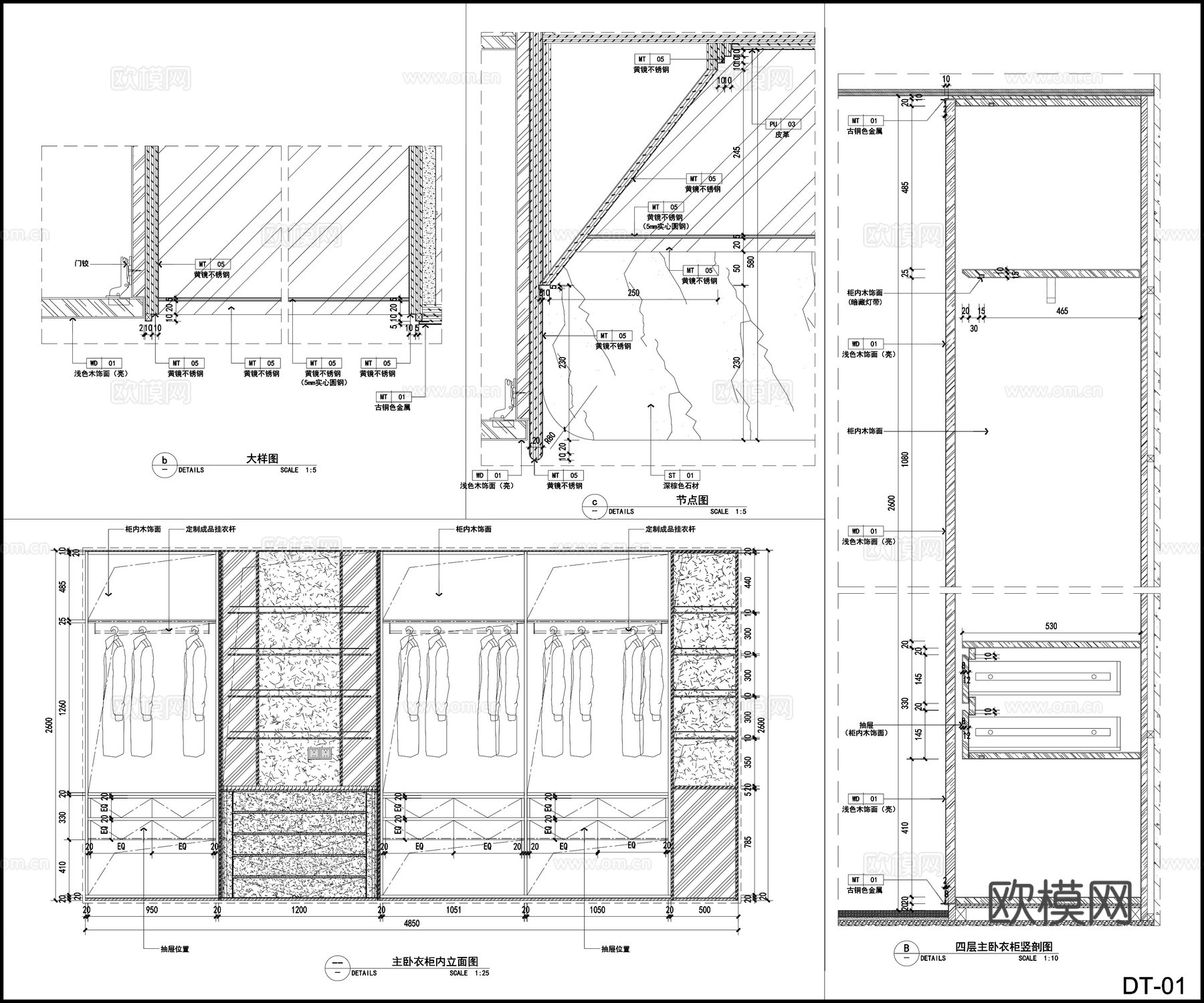
卧室衣柜 双开门衣柜 现代轻奢衣柜 柜子节点图 平立面图cad施工图
ID:
5205106
卧室衣柜 双开门衣柜 现代轻奢衣柜 柜子节点图 平立面图cad施工图 ID-5205106
所需欧币:
36
发布时间:
2025-12-02
下载请使用电脑登录欧模网,建议先收藏
收藏
分享
妮子1973
关注
为您推荐
全屋定制衣柜 现代轻奢衣柜 柜子平立面图 柜子节点图cad施工图
柜子立面图 卧室衣柜 玻璃衣柜 柜子节点图cad施工图
卧室衣柜 定制衣柜 柜子立面图 玻璃柜子cad施工图
全屋定制衣柜 立面衣柜 卧室衣柜 柜子节点cad施工图
衣柜 柜体节点 柜子立面图 CAD施工图cad施工图
卧室衣柜 推拉玻璃门衣柜 小吧台柜子 柜子节点图cad施工图
衣帽间平立面图 敞开式衣柜 现代衣帽间 衣柜节点cad施工图
全屋定制衣柜 卧室衣柜 水吧台柜子 柜子节点图cad施工图
柜子节点 简易柜子 敞开式衣柜 储物柜cad施工图
2026年最新衣柜衣橱衣帽间柜子CAD图库cad施工图
卫浴柜子 洗手台 台盆镜子 洗衣柜 柜子节点图cad施工图
厨房平立面图 现代厨房 厨房布局节点 墙面节点cad施工图
衣柜服装CAD图块cad施工图
衣柜 酒柜 CAD施工图cad施工图
柜子平面立面图 储物间柜子 简易柜子 柜子节点cad施工图
衣柜 鞋柜 书架 CAD施工图cad施工图
多种衣柜服装CAD图库cad施工图
卫浴节点 卫浴柜子节点 卫生间立面图 墙面节点cad施工图
衣柜 储物柜 置物柜 CAD施工图cad施工图
厨房墙面布局 墙面节点 厨房平立面图 现代厨房cad施工图
点击加载更多
分享到
复制链接
保存海报
取消
请选择收藏夹
+新增收藏夹
新增收藏夹
取消
确认
退出查看