模型详情
1/1
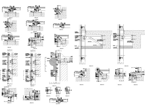
公卫坐便器安装节点图cad施工图
ID:
4499597
公卫坐便器安装节点图cad施工图 ID-4499597
所需欧币:
36
发布时间:
2025-06-10
下载请使用电脑登录欧模网,建议先收藏
收藏
分享
风行
关注
为您推荐
公卫平面布局 卫浴节点 卫生间立面图 墙面节点cad施工图
超高超重门安装节点大样详图CAD施工图cad施工图
蹲便器安装节点 隐藏明装水箱cad施工图
HM型门安装详图 CAD施工图cad施工图
主卫立剖面CAD施工图cad施工图
花箱节点CAD施工图cad施工图
铝板幕墙节点CAD施工图cad施工图
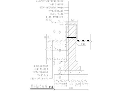
挡土墙节点CAD施工图cad施工图
门节点cad施工图
检查井筒安全网 安全防坠网安装图 给排水节点cad施工图
五金配件安装图块图库CAD施工图cad施工图
快速取水器取水阀安装大样给排水节点cad施工图
节点详图cad施工图
沙盘节点cad施工图
景观节点cad施工图
天花吊顶节点CAD施工图cad施工图
发光玻璃地面节点CAD施工图cad施工图
雨水湿地节点CAD施工图cad施工图
沙发背台节点 CAD施工图cad施工图
幕墙节点大样CAD施工图cad施工图
点击加载更多
分享到
复制链接
保存海报
取消
请选择收藏夹
+新增收藏夹
新增收藏夹
取消
确认
退出查看