模型详情
1/7
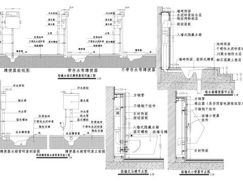
蹲便器安装节点 隐藏明装水箱cad施工图
ID:
5408747
蹲便器安装节点 隐藏明装水箱cad施工图 ID-5408747
所需欧币:
16
发布时间:
2026-02-13
下载请使用电脑登录欧模网,建议先收藏
收藏
分享
皮肤干燥
关注
为您推荐
暗藏蹲便器水箱节点cad施工图
蹲便器暗藏水箱式 明装水箱管 挂墙式马桶小便器 卫生间节点cad施工图
推拉门节点 单扇明装玻璃cad施工图
暗藏马桶水箱节点cad施工图
超高超重门安装节点大样详图CAD施工图cad施工图
景观园路道路铺装节点CAD施工图cad施工图
铺装通用节点大样详图CAD施工图cad施工图
砾石地面铺装收边节点CAD施工图cad施工图
景观道路铺装节点大样详图CAD施工图cad施工图
HM型门安装详图 CAD施工图cad施工图
快速取水器取水阀安装大样给排水节点cad施工图
青瓦砾石铺装景观节点详图CAD施工图cad施工图
青瓦铺装收边交接景观节点详图CAD施工图cad施工图cad施工图
景观园路铺装挡土墙驳岸节点CAD施工图cad施工图
景观台阶铺装坐凳小品亭子CAD节点施工图合集cad施工图
铺装通用做法花池挡墙节点CAD施工图cad施工图
喷灌喷头安装详图 地埋式旋转喷头 给排水节点cad施工图
景观道路铺装地面工艺做法节点大样详图CAD施工图cad施工图
瓦片分隔节点景观地面铺装收边交接详图CAD施工图cad施工图
检查井筒安全网 安全防坠网安装图 给排水节点cad施工图
点击加载更多
分享到
复制链接
保存海报
取消
请选择收藏夹
+新增收藏夹
新增收藏夹
取消
确认
退出查看