模型详情
1/8
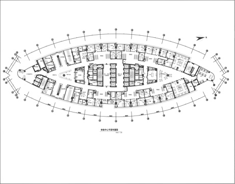
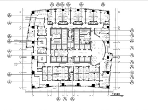
医院 体检中心 健康体检中心 医院体检中心 社区医院cad施工图
ID:
4867625
医院 体检中心 健康体检中心 医院体检中心 社区医院cad施工图 ID-4867625
所需欧币:
86
发布时间:
2025-08-20
下载请使用电脑登录欧模网,建议先收藏
收藏
分享
T_T
关注
为您推荐
医院 体检中心施工图5000㎡cad施工图
医院 体检中心平立面 大样图cad施工图
内蒙通辽市医院体检中心室内装饰CAD施工图整套cad施工图
体检中心平面施工图cad施工图
体检中心平面施工图cad施工图
体检中心平面布置图cad施工图
医院院区门 医院大门 医院入口门 医院正门 分诊区门cad施工图
医院 诊所cad施工图
医院防撞扶手安装、医院无障碍扶手、养老院走廊扶手 、医院走道cad施工图
儿童医院cad施工图
医院施工图cad施工图
泸州市中医院城南医院建筑CAD施工图全套cad施工图
宠物医院CAD平面cad施工图
医院 建筑 诊所 医疗建筑cad施工图
妇产科医院施工图cad施工图
建筑立面 建筑别墅 牙科诊所 医院cad施工图
献县中医医院康复楼建筑CAD施工图全套cad施工图
医院疗养院诊所建筑设计CAD施工图集cad施工图
北京平煤集团总医院建筑CAD施工图全套cad施工图
最新8套 医院 检察院 施工图合集cad施工图
点击加载更多
分享到
复制链接
保存海报
取消
请选择收藏夹
+新增收藏夹
新增收藏夹
取消
确认
退出查看