模型详情
1/3
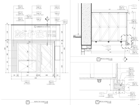
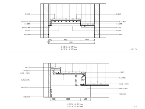
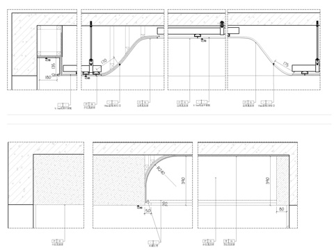
餐厅天花电动门大样图cad施工图
ID:
4889137
餐厅天花电动门大样图cad施工图 ID-4889137
所需欧币:
36
发布时间:
2025-08-29
下载请使用电脑登录欧模网,建议先收藏
收藏
分享
LL设计
关注
为您推荐
餐饮招牌天花大样图cad施工图
工装软膜天花吊顶大样图cad施工图
弧面天花造型大样图cad施工图
灯箱布天花大样图cad施工图
餐厅地面钢架大样图cad施工图
方通穿孔板天花大样图cad施工图
6套铝板天花吊顶节点大样图星空顶CAD施工图cad施工图
100个通用天花吊顶节点大样图CAD详图图库cad施工图
铝板天花吊顶CADcad施工图
天花隐形检修口CADcad施工图
天花地面节点库cad施工图
病房天花输液轨道、天花隔帘轨道、病房天花拉帘轨道cad施工图
套装门大样图cad施工图cad施工图
客厅天花造型节点详图cad施工图
挡土墙大样图cad施工图
地面造景大样图cad施工图
园桥大样图cad施工图
暗藏消防箱CAD大样图cad施工图
天花叠级剖面详图、圆形天花造型节点、天花叠级灯槽cad施工图
天花吊顶顶棚大样详图室内CAD施工图集cad施工图
点击加载更多
分享到
复制链接
保存海报
取消
请选择收藏夹
+新增收藏夹
新增收藏夹
取消
确认
退出查看