模型详情
1/3
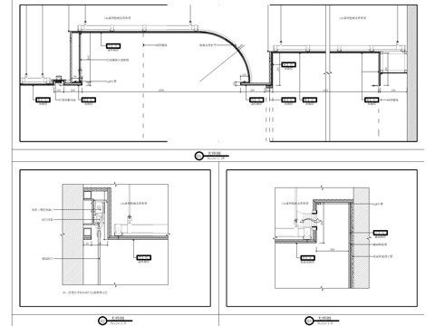
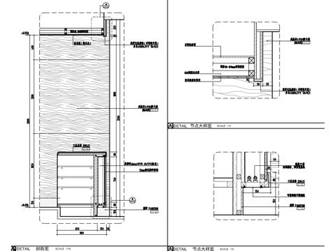
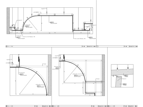
餐厅地面钢架大样图cad施工图
ID:
4889133
餐厅地面钢架大样图cad施工图 ID-4889133
所需欧币:
36
发布时间:
2025-08-29
下载请使用电脑登录欧模网,建议先收藏
收藏
分享
LL设计
关注
为您推荐
钢架墙壁龛墙身大样图cad施工图
钢架吊顶CAD节点cad施工图
地面造景大样图cad施工图
钢架转换层节点图cad施工图
幕墙地面藏灯大样图cad施工图
装饰地面节点大样图cad施工图
天棚吊顶钢架转换层做法cad施工图
多种地面节点大样图cad施工图
轻钢龙骨隔墙 钢结构隔墙 钢架隔墙 钢架墙节点cad施工图
餐厅矮墙围栏遮挡、餐厅矮墙玻璃隔断、半高钢架护栏隔墙、矮隔断cad施工图
地面收口CAD节点cad施工图
地面铺装CAD节点cad施工图
套装门大样图cad施工图cad施工图
地面拼花cad施工图
吊顶节点 轻钢龙骨吊顶 钢架吊顶 钢架转换层节点 石膏板吊顶cad施工图
挡土墙大样图cad施工图
园桥大样图cad施工图
暗藏消防箱CAD大样图cad施工图
餐厅天花电动门大样图cad施工图
景观地面节点图cad施工图
点击加载更多
分享到
复制链接
保存海报
取消
请选择收藏夹
+新增收藏夹
新增收藏夹
取消
确认
退出查看