模型详情
1/3
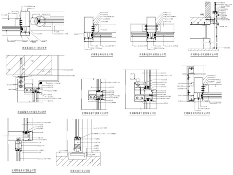
幕墙地面藏灯大样图cad施工图
ID:
4889205
幕墙地面藏灯大样图cad施工图 ID-4889205
所需欧币:
36
发布时间:
2025-08-29
下载请使用电脑登录欧模网,建议先收藏
收藏
分享
LL设计
关注
为您推荐
地面造景大样图cad施工图
餐厅地面钢架大样图cad施工图
装饰地面节点大样图cad施工图
多种地面节点大样图cad施工图
广州半藏客堂茶酒室会所室内工装CAD施工图cad施工图
各类幕墙节点大样CAD施工图详图集cad施工图
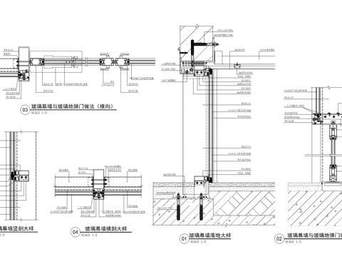
玻璃幕墙结构详图cad施工图
玻璃幕墙结构详图cad施工图
玻璃幕墙结构详图cad施工图
建筑幕墙工程设计CAD施工图制图规范图集cad施工图
玻璃幕墙结构详图cad施工图
幕墙结构节点大样详图CAD施工图集 10套cad施工图
幕墙螺丝螺栓螺母螺钉钢材图块CAD施工图例集cad施工图
建筑装饰幕墙节点安装大样详图CAD施工图集 60套cad施工图cad施工图
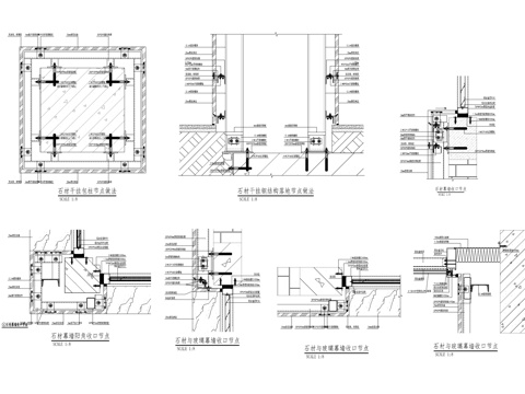
地面收口CAD节点cad施工图
铝板铝塑板幕墙安装节点大样CAD施工图集 80套cad施工图
幕墙设计标准件大全cad施工图
地面铺装CAD节点cad施工图
套装门大样图cad施工图cad施工图
地面拼花cad施工图
点击加载更多
分享到
复制链接
保存海报
取消
请选择收藏夹
+新增收藏夹
新增收藏夹
取消
确认
退出查看