模型详情
1/8
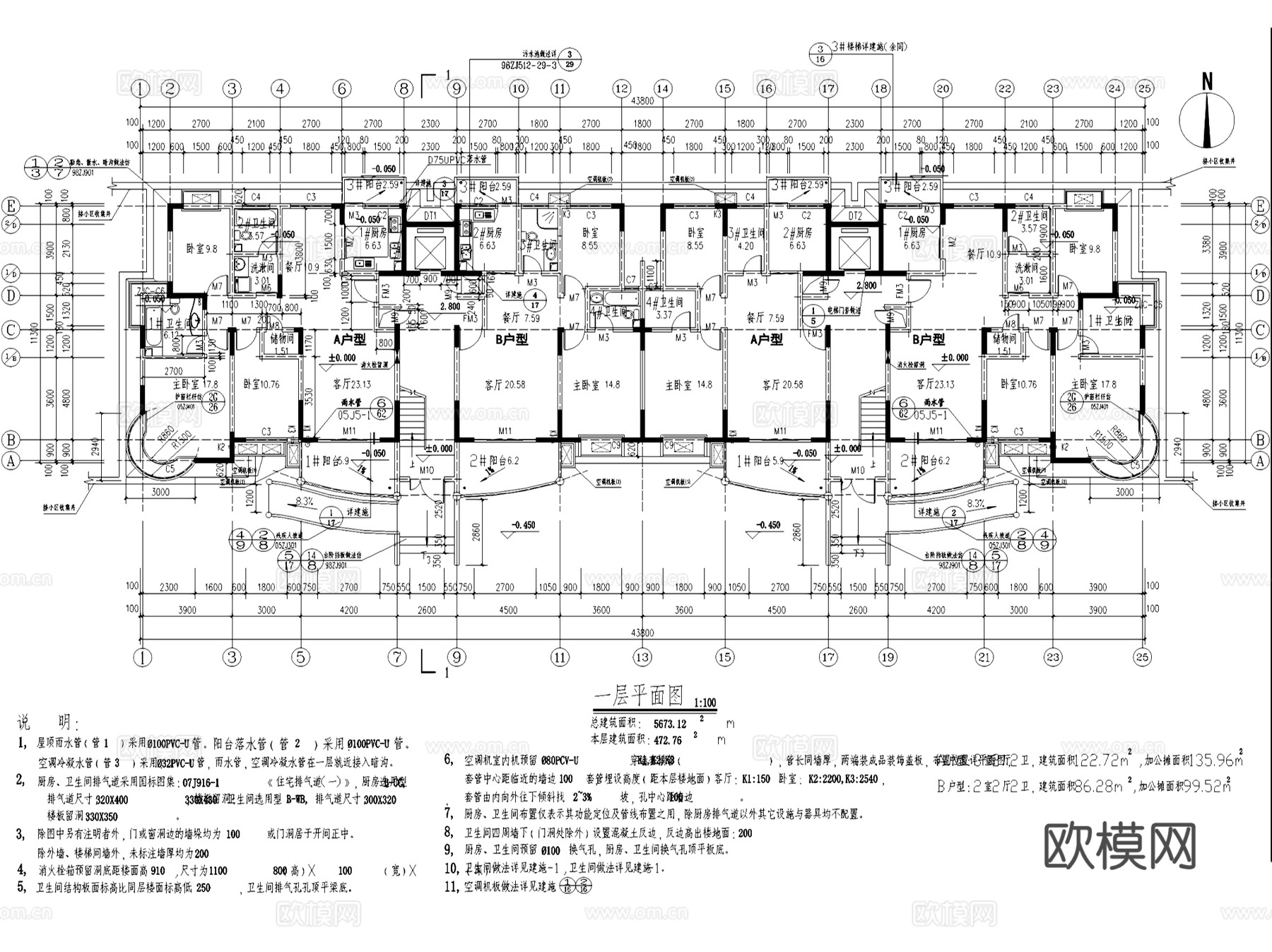
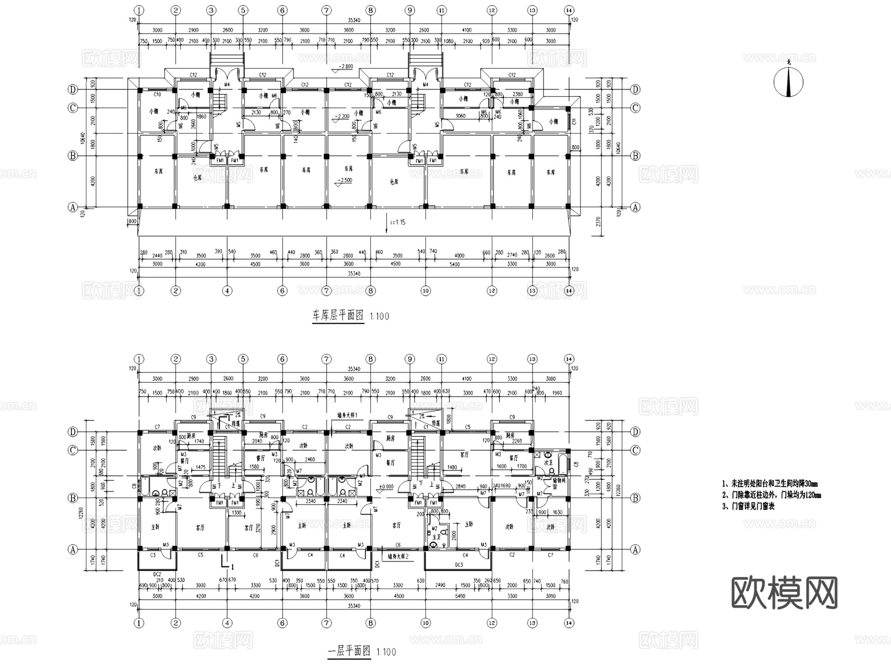
多层小高层各结构住宅楼建筑CAD施工图集 70套cad施工图
ID:
4988256
多层小高层各结构住宅楼建筑CAD施工图集 70套cad施工图 ID-4988256
所需欧币:
36
发布时间:
2025-09-28
下载请使用电脑登录欧模网,建议先收藏
收藏
分享
皮肤干燥
关注
为您推荐
各结构类型化粪池结构CAD施工图集 9套cad施工图
冷库冰库建筑结构暖通各专业CAD施工图集 20套cad施工图
洋房多层高层公寓平层住宅建筑户型图CAD施工图集 40套cad施工图
多层高层办公楼写字楼建筑CAD施工图集 84套cad施工图
钢结构桁架结构设计CAD施工图集 20套cad施工图
各材质墙面大样节点做法室内CAD施工图集 15套cad施工图
道路波形护栏防撞栏结构大样CAD施工图集cad施工图
中小学校教学综合楼建筑及各专业CAD施工图集 15套cad施工图
土建类各专业建电水暖图例图块CAD施工图集cad施工图
高层钢结构厂房施工图cad施工图
多层厂房建筑施工图cad施工图
幕墙结构节点大样详图CAD施工图集 10套cad施工图
建筑景观CAD填充图案施工图集 1470个cad施工图
各风格卫生间室内装饰CAD施工图集 50套cad施工图
护栏CAD图集cad施工图
建筑通用节点CAD施工图库详图集 336套cad施工图
工地临时活动板房建筑CAD施工图集 8套cad施工图
管理用房建筑CAD施工图详图集 15套cad施工图
徽派风格建筑CAD施工图详图集 23套cad施工图
日光温室蔬菜大棚建筑CAD施工图集cad施工图
点击加载更多
分享到
复制链接
保存海报
取消
请选择收藏夹
+新增收藏夹
新增收藏夹
取消
确认
退出查看