模型详情
1/8
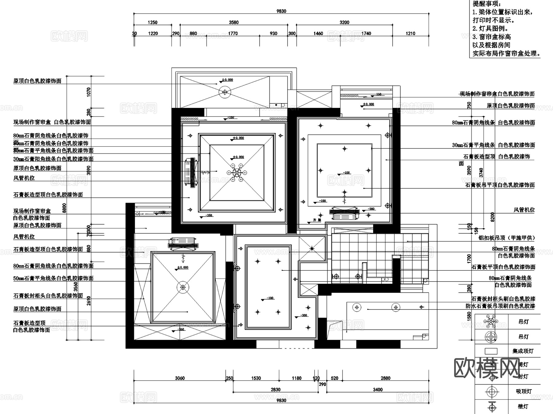
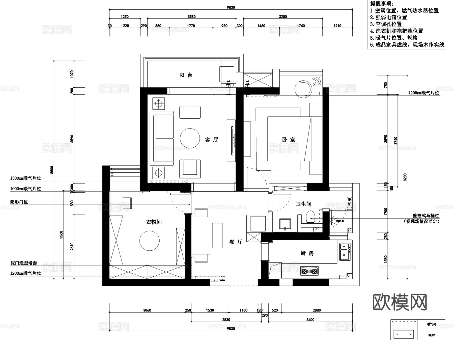
复地东湖水岸国际两室两厅室内家装CAD施工图cad施工图
ID:
5019221
复地东湖水岸国际两室两厅室内家装CAD施工图cad施工图 ID-5019221
所需欧币:
36
发布时间:
2025-10-09
下载请使用电脑登录欧模网,建议先收藏
收藏
分享
皮肤干燥
关注
为您推荐
复地东湖国际欧式三室两厅两卫室内家装CAD施工图cad施工图
武汉复地东湖国际住宅室内家装CAD施工图全套cad施工图
两室两厅两卫美式室内家装CAD施工图cad施工图
香槟水岸18#501四室两厅两卫室内家装CAD施工图cad施工图
现代简约两室两厅两卫室内家装CAD施工图cad施工图
现代简约两室两厅两卫室内家装CAD施工图cad施工图
现代简约两室两厅两卫室内家装CAD施工图cad施工图
水岸清华北欧风三室两厅两卫室内家装CAD施工图cad施工图
两室两厅两卫平层住宅室内家装CAD施工图cad施工图
国际百纳三室两厅两卫私宅雅居室内家装CAD施工图cad施工图
美式四室两厅两卫室内家装CAD施工图cad施工图cad施工图
美式三室两厅两卫室内家装CAD施工图cad施工图
美式四室两厅两卫私宅室内家装CAD施工图cad施工图
两室两厅一卫中式室内家装CAD施工图cad施工图
天虹国际3#2604三室两厅室内家装CAD施工图cad施工图
现代简约四室两厅两卫私宅室内家装CAD施工图cad施工图
欧式三室两厅两卫私宅室内家装CAD施工图cad施工图
新中式三室两厅两卫室内家装CAD施工图cad施工图
三室两厅两卫大平层室内家装CAD施工图cad施工图
欧式三室两厅两卫私宅室内家装CAD施工图cad施工图
点击加载更多
分享到
复制链接
保存海报
取消
请选择收藏夹
+新增收藏夹
新增收藏夹
取消
确认
退出查看