模型详情
1/8
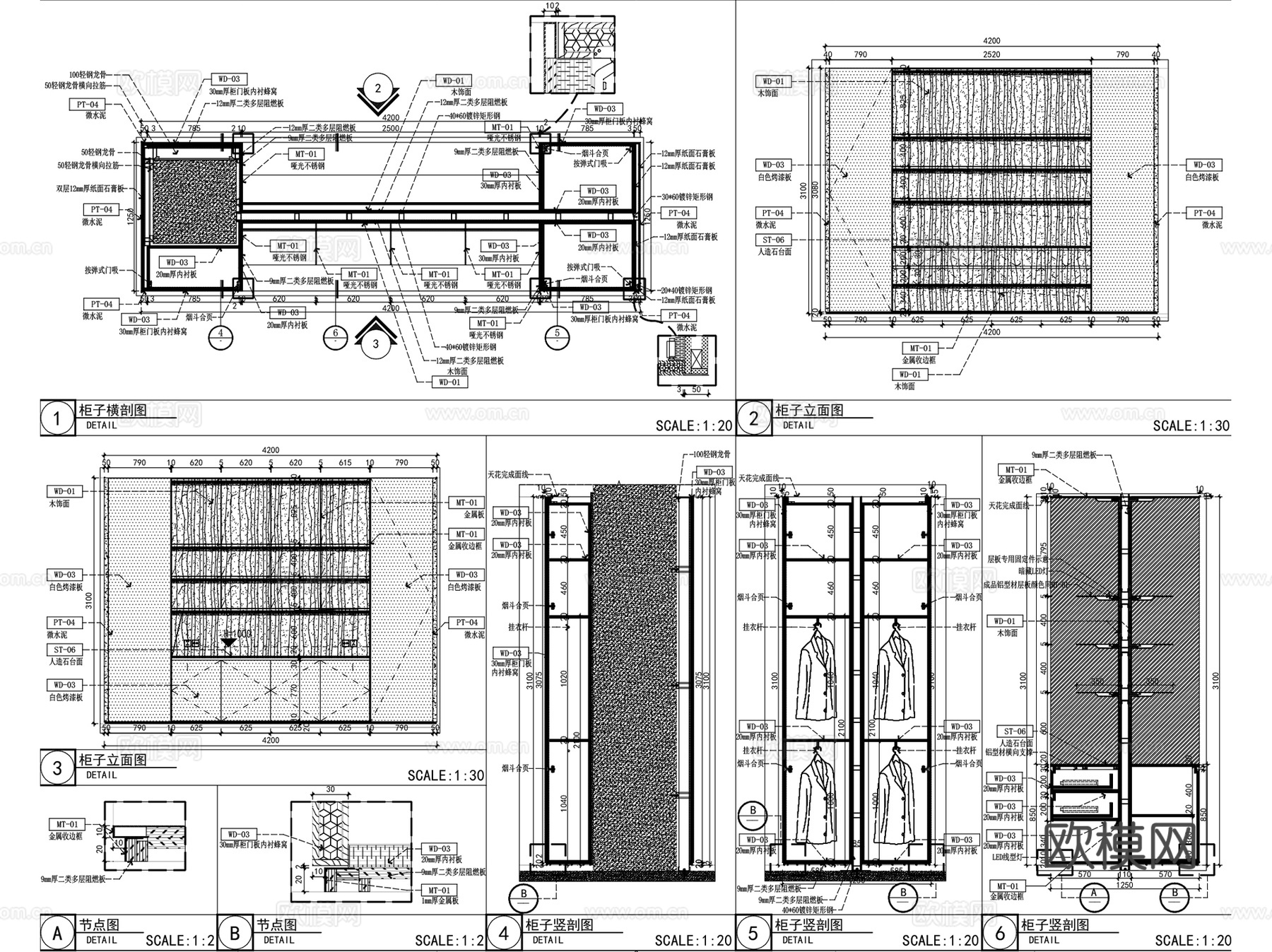
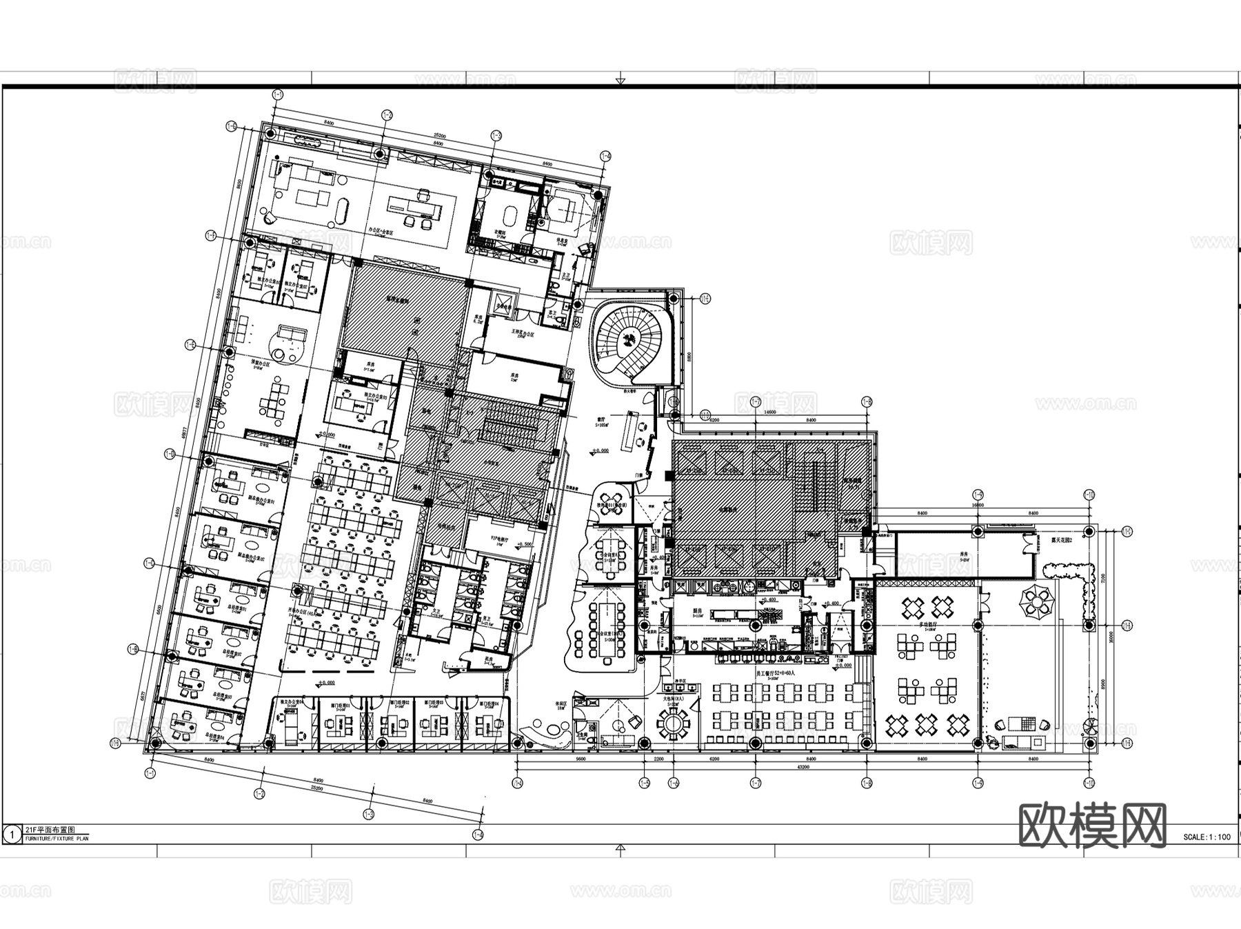
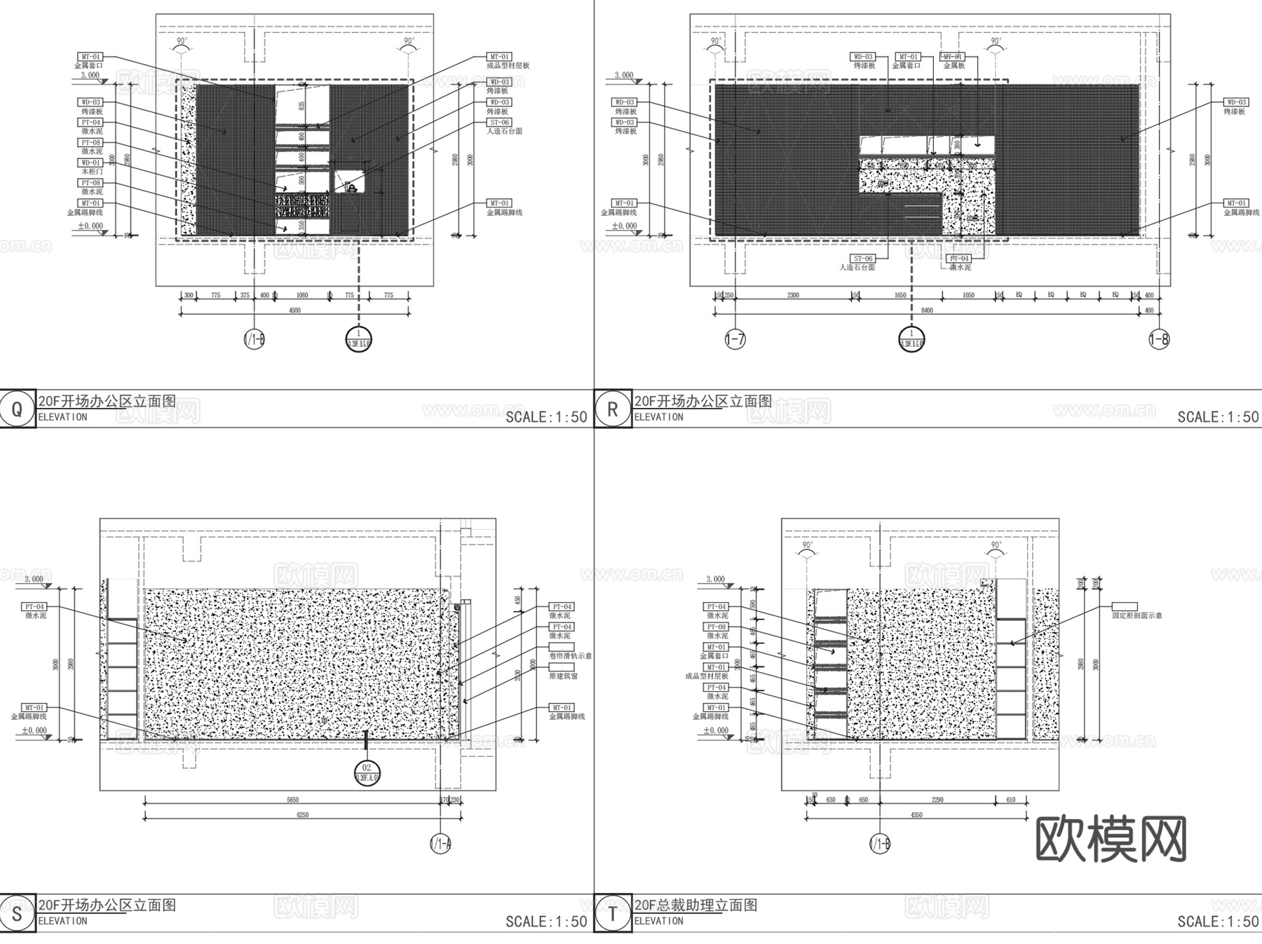
鸿瑞集团惠宝煤业办公空间室内装饰CAD施工图整套+文本cad施工图
ID:
5090628
鸿瑞集团惠宝煤业办公空间室内装饰CAD施工图整套+文本cad施工图 ID-5090628
所需欧币:
36
发布时间:
2025-10-22
下载请使用电脑登录欧模网,建议先收藏
收藏
分享
皮肤干燥
关注
为您推荐
南山宝湾物流中心南开大厦办公室室内工装CAD施工图整套+文本cad施工图
苏州澳华集团中式办公楼室内工装CAD施工图整套cad施工图
办公空间cad施工图
重庆轨道集团李子坝展厅室内工装CAD施工图整套cad施工图
金翔集团新加坡有限公司办公室室内工装CAD施工图整套cad施工图
武汉矿业集团有限公司办公室室内工装CAD施工图整套cad施工图
万仟蛋糕甜品店室内装饰CAD施工图整套cad施工图
戴姆勒中国研发中心办公楼室内工装CAD施工图整套+文本cad施工图
重庆万科办公室室内工装CAD施工图整套+文本cad施工图
成都SAP现代办公室室内工装CAD施工图整套+文本cad施工图
棋牌室休闲娱乐会所室内装饰CAD施工图整套cad施工图
苏州大汉富邦办公室室内装饰CAD施工图+文本+SUcad施工图
上海国际财富中心办公楼室内工装CAD施工图整套+文本cad施工图
新力中心13层办公室室内工装CAD施工图整套+文本cad施工图
惠州龙惠华铭府样板房无主灯室内家装CAD施工图整套cad施工图
苏州英沃形象美容店室内装饰CAD施工图整套cad施工图
60平办公空间施工图cad施工图
INVSON应尚服饰展厅室内工装CAD施工图整套+文本cad施工图
长沙洞庭鱼谣餐厅室内工装CAD施工图整套+文本cad施工图
汉堡王上海嘉定宝龙店餐厅室内工装CAD施工图整套cad施工图
点击加载更多
分享到
复制链接
保存海报
取消
请选择收藏夹
+新增收藏夹
新增收藏夹
取消
确认
退出查看