模型详情
1/8
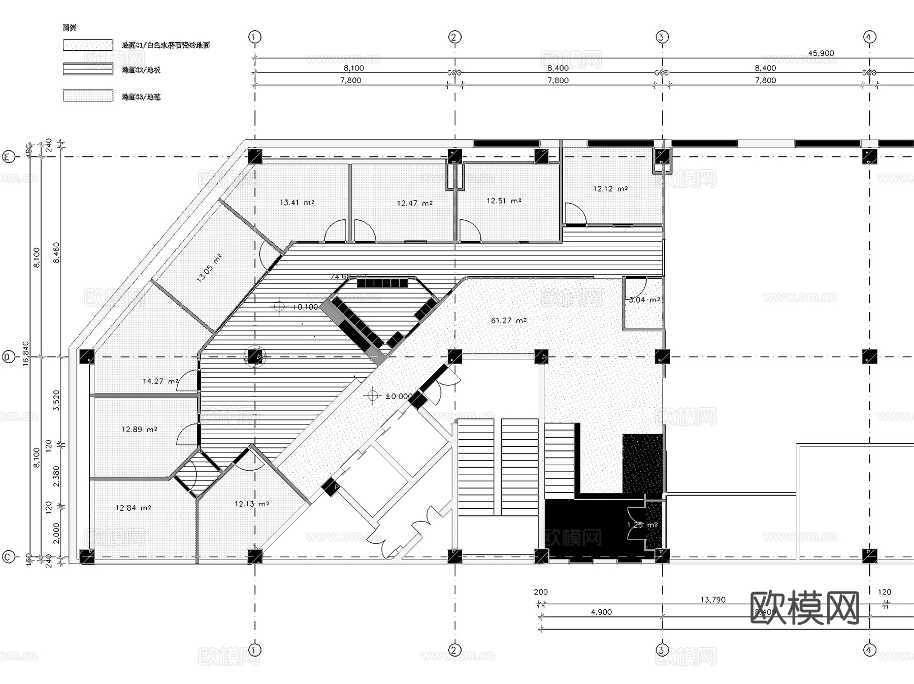
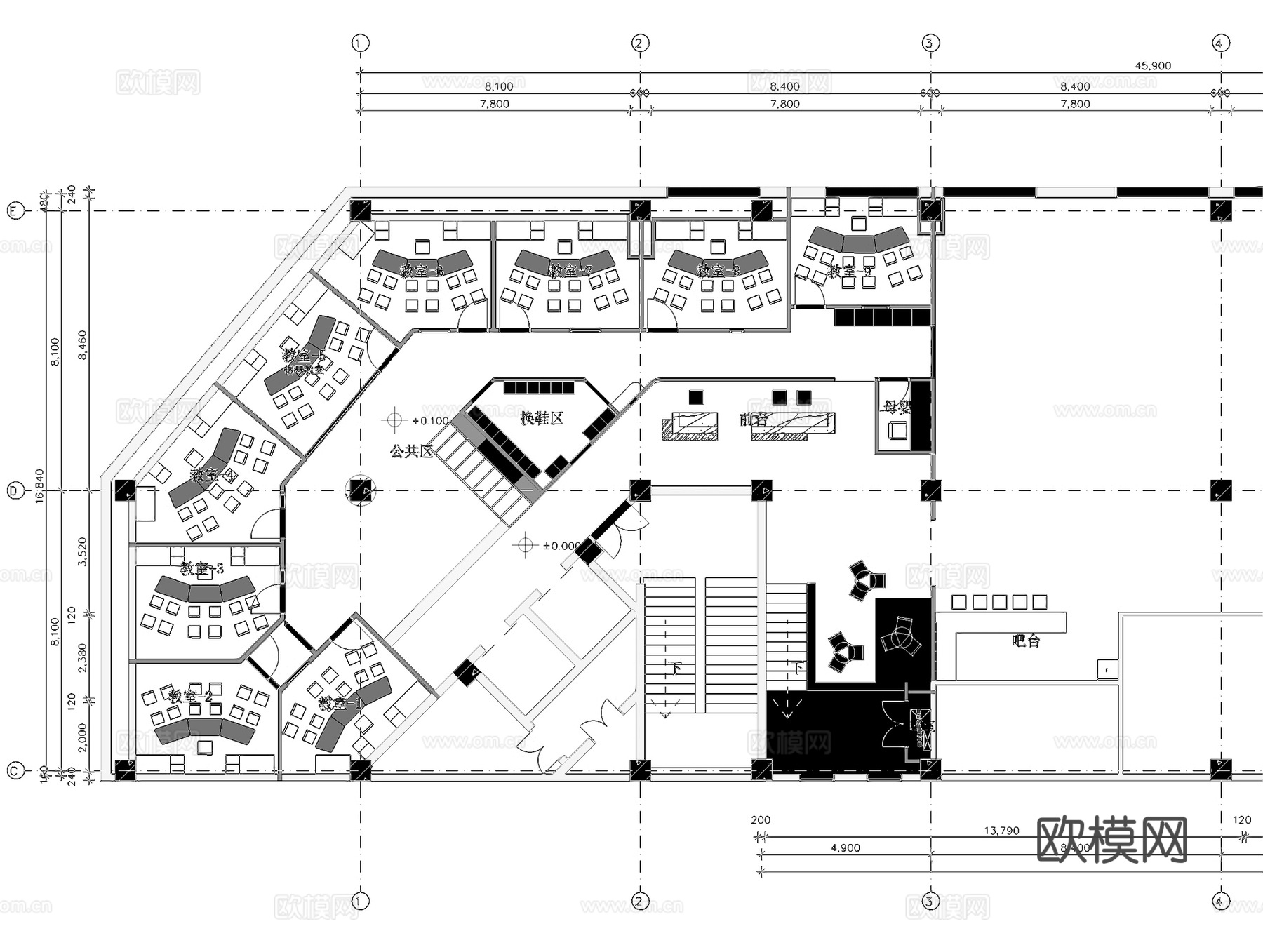
科贝乐早教培训丹东万达店室内工装CAD施工图cad施工图
ID:
5091787
科贝乐早教培训丹东万达店室内工装CAD施工图cad施工图 ID-5091787
所需欧币:
36
发布时间:
2025-10-23
下载请使用电脑登录欧模网,建议先收藏
收藏
分享
皮肤干燥
关注
为您推荐
Babilou早教培训中心室内工装CAD施工图cad施工图
哇哈哈未来城儿童培训中心室内工装CAD施工图cad施工图
新东方培训学校岭南复建大厦校区室内工装CAD施工图cad施工图
启德国际K12学术堂教育培训室内工装CAD施工图cad施工图
迈格森国际教育培训学校文德路校区室内工装CAD施工图cad施工图
廊坊万达逸林酒店室内工装CAD施工图cad施工图
万达淮安酒店全日制餐厅室内工装CAD施工图cad施工图
昆明万达文华酒店客房室内工装CAD施工图cad施工图
煌品三汁焖锅东营万达店餐厅室内工装CAD施工图cad施工图
鑫客家万达店客家菜餐厅室内工装CAD施工图整套cad施工图
Leer乐尔实木门专卖店室内工装CAD施工图cad施工图
20套培训中心CAD平面图cad施工图
仁怀炮台儿幼儿园室内工装CAD施工图cad施工图
保定长城幼儿园室内工装CAD施工图cad施工图
品格蒙特梭利幼儿园室内工装CAD施工图cad施工图cad施工图
颛桥万达儿童主题商业街室内工装CAD施工图cad施工图
温州龙岗万达广场瑞幸咖啡店室内工装CAD施工图整套cad施工图
MIEN STUNNING服装店室内工装CAD施工图cad施工图
VAMPIR婚纱专卖店室内工装CAD施工图cad施工图
潘多拉珠宝店室内工装CAD施工图cad施工图
点击加载更多
分享到
复制链接
保存海报
取消
请选择收藏夹
+新增收藏夹
新增收藏夹
取消
确认
退出查看